Ashley Milton says ..
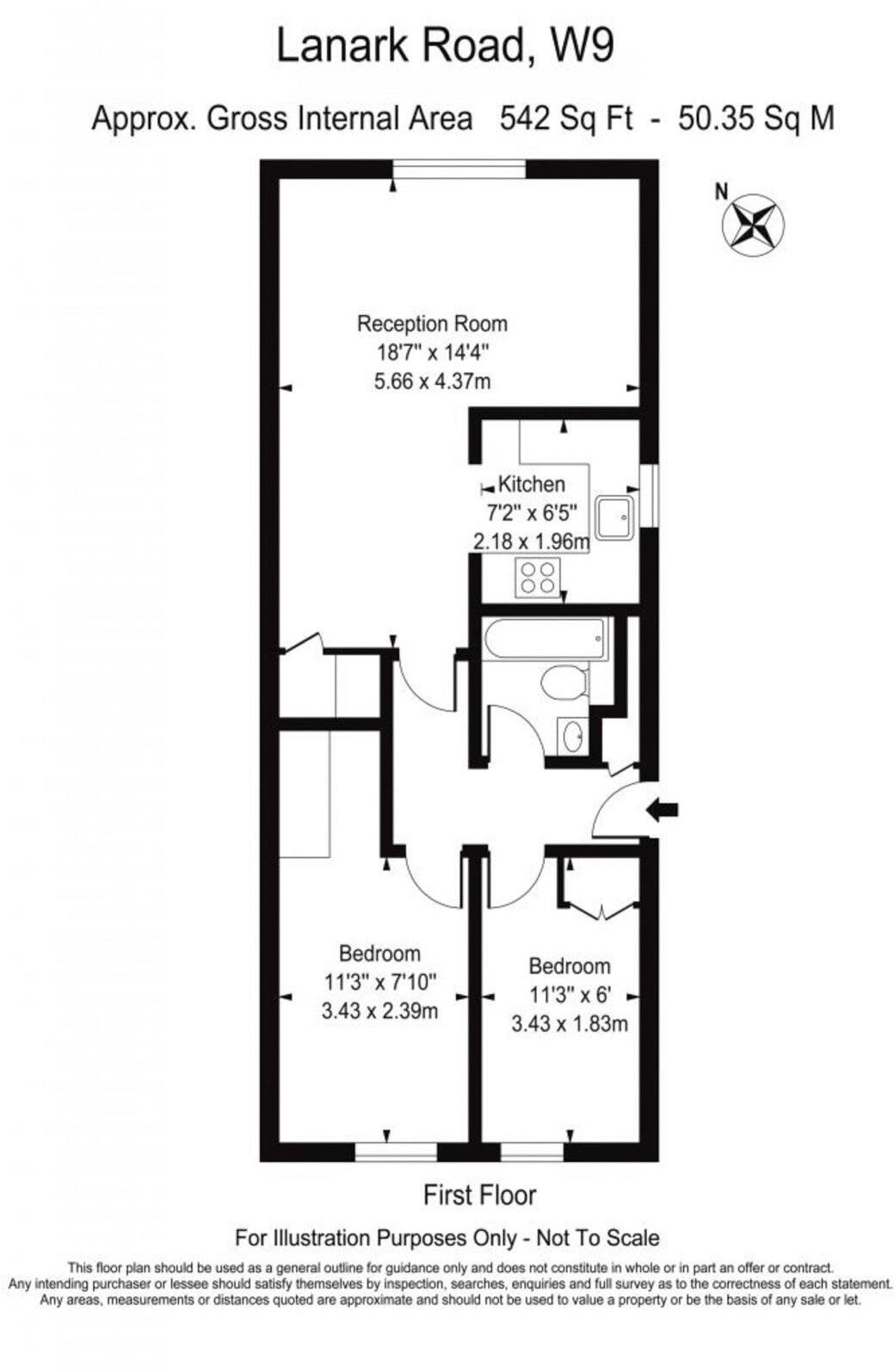
Two-Bedroom First Floor Flat in Prime Maida Vale LocationOffered in good condition, this well-presented two-bedroom first floor flat is located in a highly sought-after area of Maida Vale, just moments from local shops, Dentist, GP and the open green spaces of nearby Paddington Recreation Ground ...
Property Oracle says ..
Therefore, we give this property 5 / 10. *Disclaimer: This is our option and does constitute a recommendation or financial advice. Do your own research. *
- Price
- 7
- Condition
- 6
- Location
- 8
- Land
- 1
- Bedrooms
- 2
- Bathrooms
- 1
- Sqft (est)
- 541.96
The heatmap indicates the level of crime in the area. The color of the heatmap indicates the crime severity and recency.
Metrics Year-on-Year
- Average area value
- 630,000.00 £Decreased by 29.87 %
- Est sale value
- 490,473.80 £Decreased by 9.59 %
- Average area rental value
- 2,249.00 £/moDecreased by 5.58 %
- Est letting value
- 1,625.88 £/moIncreased by 50.00 %
- Est rental Yield
- 4.28 %Increased by 34.59 %
- Crime Rate
- 6.00 %Unchanged by 0.00 %
from 898,380.00 £
from 542,501.96 £
from 2,382.00 £/mo
from 1,083.92 £/mo
from 3.18 %
from 6.00 %
Agent Activity
Ashley Milton created the listing.
Nearby Schools
| Name | Type | Ofsted | Distance |
|---|---|---|---|
| St George'S Catholic School | Academy Converter | Outstanding | 0.24 KM |
| Naima Jewish Preparatory School | Other Independent School | 0.52 KM | |
| St Joseph'S Rc Primary School | Voluntary Aided School | Good | 0.64 KM |
| St Augustines Federated Schools: Cofe Primary School | Voluntary Aided School | Requires improvement | 0.67 KM |
| Maida Vale Children'S Centre | Children's Centre Linked Site | 0.67 KM |
Images
Nearby Streets
| Name | Average Price | Average Sqft | Distance |
|---|---|---|---|
| The Lane | £ 1,225,000 | 0 | 0.00 KM |
| Randolph Road | £ 0 | 0 | 0.00 KM |
| Clifton Hill Studios | £ 0 | 0 | 0.00 KM |
| Ryder's Terrace | £ 0 | 0 | 0.00 KM |
| Oxford Road | £ 0 | 0 | 0.00 KM |
Nearby Transport
| Name | NLC | TLC | Distance |
|---|---|---|---|
| Kilburn High Road | 1415 | KBN | 0.92 KM |
| South Hampstead | 1451 | SOH | 1.42 KM |
| West Hampstead | 1421 | WHD | 1.88 KM |
| West Hampstead Thameslink | 1525 | WHP | 2.01 KM |
| Paddington | 3087 | PAD | 2.05 KM |
Nearby Listings
| Address | Price | Type | Score | Distance |
|---|---|---|---|---|
| Lanark Road, London | £ 599,950 | BUY | 5 / 10 | 0.00 KM |
| Maida Vale, Maida Vale, London, W9 | £ 425,000 | BUY | 7 / 10 | 0.03 KM |
| Lanark Road, Maida Vale, W9 | £ 725,000 | BUY | 7 / 10 | 0.03 KM |
| Randolph Avenue, Maida Vale | £ 675,000 | BUY | 5 / 10 | 0.05 KM |
| Randolph Avenue, Maida Vale, London, W9 | £ 1,375,000 | BUY | Unknown | 0.06 KM |
Nearby Properties
| Address | Price | Distance |
|---|---|---|
| 189b Lanark Road | £ 495,000 | 0.01 KM |
| 181a Lanark Road | £ 537,500 | 0.01 KM |
| 185c Lanark Road | £ 410,000 | 0.01 KM |
| 177a Lanark Road | £ 420,000 | 0.01 KM |
| 195c Lanark Road | £ 563,000 | 0.01 KM |