Pangbourne Street, Reading, Berkshire, RG30
By Winkworth
£ 300,000
Reviews
2 out of 5 stars
Winkworth says ..
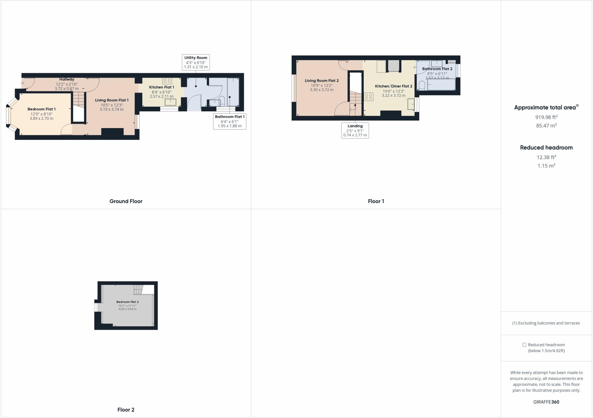
A converted Victorian terrace house consisting of two 1 bedroom apartments each with their own gas and electric supplies and meters and separate council tax accounts. Set in this convenient location just over a mile to the west of Reading town centre and close to local amenities, including, Prosp...
Property Oracle says ..
This two-bedroom, two-bathroom property located on Pangbourne Street in Reading, Berkshire, is listed at £300,000. The property is a terraced house, as shown in the provided photographs, and appears to be in reasonable condition with a small rear garden including a deck. The house is situated in the Kentwood area of Reading which is convenient to local amenities. While the interior design and finishes could benefit from updating, the property seems structurally sound and well-maintained from the exterior. The proximity to Reading West train station and several primary and secondary schools contributes positively to its appeal. Further information is needed to understand the specific features of the property and its neighbourhood in more detail for a more thorough assessment. More comparable data on pricing per square foot in the area is also needed for a more specific pricing analysis.
Therefore, we give this property 5 / 10. *Disclaimer: This is our option and does constitute a recommendation or financial advice. Do your own research. *
- Price
- 7
- Condition
- 5
- Location
- 6
- Land
- 4
- Bedrooms
- 2
- Bathrooms
- 2
- Sqft (est)
- 919.99
The heatmap indicates the level of crime in the area. The color of the heatmap indicates the crime severity and recency.
Metrics Year-on-Year
- Average area value
- 488,333.00 £Increased by 27.76 %
- Est sale value
- 703,792.35 £Increased by 62.77 %
- Average area rental value
- 1,463.00 £/moIncreased by 8.13 %
- Est letting value
- 1,839.98 £/moIncreased by 100.00 %
- Est rental Yield
- 3.60 %Decreased by 15.29 %
- Crime Rate
- 6.00 %Unchanged by 0.00 %
Agent Activity
Winkworth marked this listing as sold.
Winkworth created the listing.
Nearby Schools
| Name | Type | Ofsted | Distance |
|---|---|---|---|
| Wilson Primary School | Community School | Good | 0.78 KM |
| Ranikhet Academy | Academy Sponsor Led | Good | 1.04 KM |
| Ranihket Children'S Centre | Children's Centre | 1.04 KM | |
| Battle Primary Academy | Academy Sponsor Led | Good | 1.41 KM |
| Cranbury College | Academy Alternative Provision Converter | 1.45 KM |
Images
Nearby Streets
| Name | Average Price | Average Sqft | Distance |
|---|---|---|---|
| Thornton Road | £ 0 | 0 | 0.00 KM |
| Riverside Park | £ 0 | 0 | 0.00 KM |
| Richmond Road | £ 350,000 | 0 | 0.00 KM |
| Oxford Road cyclepath | £ 0 | 0 | 0.00 KM |
| Selborne Gardens | £ 350,000 | 0 | 0.00 KM |
Nearby Transport
| Name | NLC | TLC | Distance |
|---|---|---|---|
| Reading West | 3160 | RDW | 2.14 KM |
| Tilehurst | 3154 | TLH | 2.61 KM |
| Reading | 3149 | RDG | 4.08 KM |
| Theale | 3153 | THE | 7.95 KM |
| Pangbourne | 3036 | PAN | 9.44 KM |
Nearby Listings
| Address | Price | Type | Score | Distance |
|---|---|---|---|---|
| Tidmarsh Street, Reading, RG30 | £ 315,000 | BUY | 6 / 10 | 0.05 KM |
| Tidmarsh Street, Reading, Berkshire, RG30 | £ 330,000 | BUY | 5 / 10 | 0.05 KM |
| Tidmarsh Street, Reading | £ 350,000 | BUY | 6 / 10 | 0.07 KM |
| Tidmarsh Street, Reading, Berkshire | £ 220,000 | BUY | 5 / 10 | 0.08 KM |
| Sandford Court, 15 Tidmarsh Street, Reading | £ 250,000 | BUY | 6 / 10 | 0.09 KM |
Nearby Properties
| Address | Price | Distance |
|---|---|---|
| 25 Pangbourne Street | £ 175,000 | 0.01 KM |
| 15 Pangbourne Street | £ 159,950 | 0.02 KM |
| 13 Pangbourne Street | £ 145,000 | 0.02 KM |
| 43 Pangbourne Street | £ 54,500 | 0.02 KM |
| 33 Pangbourne Street | £ 113,500 | 0.02 KM |