JP
Orchard Way, Thorpe Willoughby, YO8
By JP Harll
£ 290,000
Reviews
3 out of 5 stars
JP Harll says ..
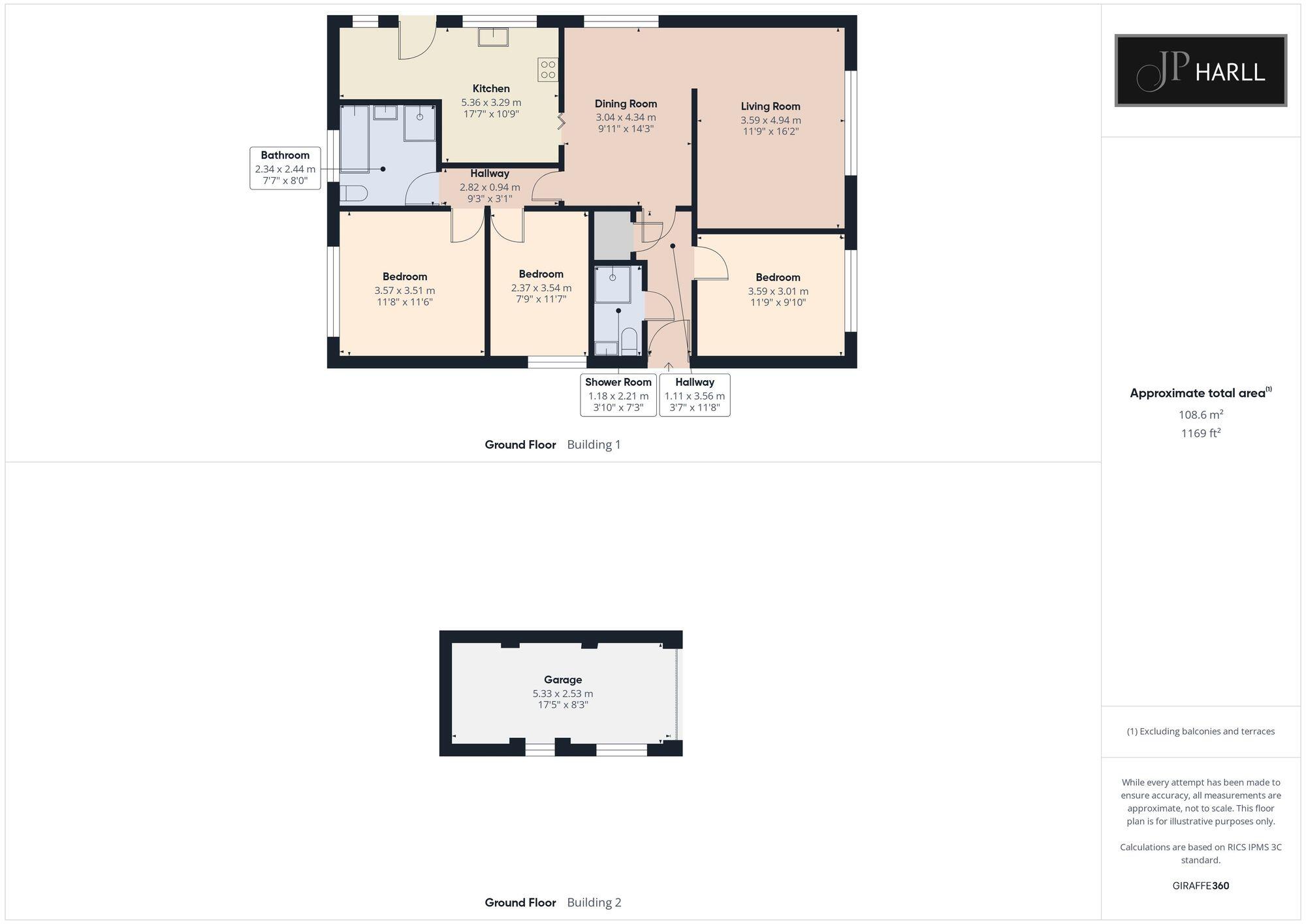
Nestled within the heart of this sought-after residential area, this well-presented three-bedroom detached bungalow offers a tranquil retreat.
Property Oracle says ..
Therefore, we give this property 6 / 10. *Disclaimer: This is our option and does constitute a recommendation or financial advice. Do your own research. *
- Price
- 6
- Condition
- 7
- Location
- 7
- Land
- 7
- Bedrooms
- 3
- Bathrooms
- 2
The heatmap indicates the level of crime in the area. The color of the heatmap indicates the crime severity and recency.
Metrics Year-on-Year
- Average area value
- 227,143.00 £Decreased by 21.02 %
- Average area rental value
- 1,237.00 £/moIncreased by 11.34 %
- Est rental Yield
- 6.54 %Increased by 40.95 %
- Crime Rate
- 67.00 %Unchanged by 0.00 %
from 287,585.00 £
from 1,111.00 £/mo
from 4.64 %
from 67.00 %
Agent Activity
JP Harll marked this listing as sold.
JP Harll created the listing.
Nearby Schools
| Name | Type | Ofsted | Distance |
|---|---|---|---|
| Thorpe Willoughby Community Primary School | Community School | Requires improvement | 0.78 KM |
| Brayton Church Of England Primary School | Academy Sponsor Led | 3.82 KM | |
| Brayton Academy | Academy Sponsor Led | Outstanding | 4.25 KM |
| Chapel Haddlesey Church Of England Voluntary Controlled Primary School | Voluntary Controlled School | Good | 4.36 KM |
| Hambleton Church Of England Voluntary Controlled Primary School | Voluntary Controlled School | Good | 4.37 KM |
Images
Nearby Streets
| Name | Average Price | Average Sqft | Distance |
|---|---|---|---|
| Brumby Close | £ 0 | 0 | 0.00 KM |
| Sable Close | £ 0 | 0 | 0.00 KM |
| Chestnut Drive | £ 0 | 0 | 0.00 KM |
| Chestnut Road | £ 0 | 0 | 0.00 KM |
| Maykath View | £ 0 | 0 | 0.00 KM |
Nearby Transport
| Name | NLC | TLC | Distance |
|---|---|---|---|
| Selby | 8201 | SBY | 6.58 KM |
| Hensall | 8129 | HEL | 8.08 KM |
| Whitley Bridge | 8130 | WBD | 8.92 KM |
Nearby Listings
| Address | Price | Type | Score | Distance |
|---|---|---|---|---|
| Orchard Way, Thorpe Willoughby, YO8 | £ 290,000 | BUY | 6 / 10 | 0.00 KM |
| Orchard Way, Thorpe Willoughby, Selby | £ 280,000 | BUY | 7 / 10 | 0.07 KM |
| Orchard Way, Thorpe Willoughby, Selby, North Yorkshire, YO8 | £ 300,000 | BUY | 7 / 10 | 0.09 KM |
| Field Avenue, Thorpe Willoughby, Selby | £ 175,000 | BUY | 6 / 10 | 0.12 KM |
| Field Avenue, Thorpe Willoughby, Selby, YO8 9PS | £ 165,000 | BUY | 6 / 10 | 0.15 KM |
Nearby Properties
| Address | Price | Distance |
|---|---|---|
| 58 Orchard Way | £ 171,000 | 0.07 KM |
| 50 Orchard Way | £ 124,000 | 0.07 KM |
| 67 Orchard Way | £ 170,000 | 0.07 KM |
| 75 Orchard Way | £ 280,000 | 0.07 KM |
| 46 Orchard Way | £ 270,000 | 0.07 KM |