Hopewell says ..
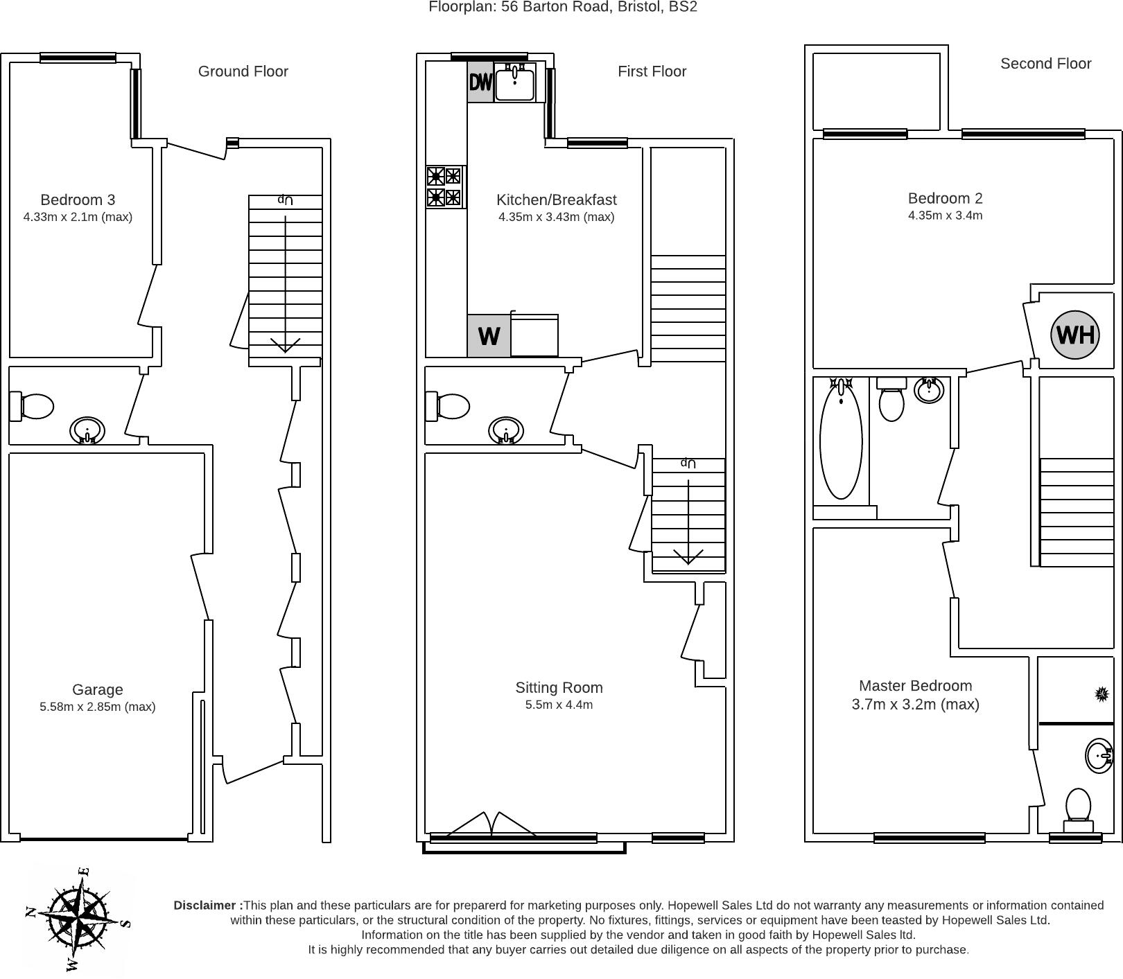
A superb, modern townhouse featuring three spacious double bedrooms, ideally located just a short walk from Bristol's vibrant Temple Quay area, Bristol Temple Meads station, and Cabot Circus. This property also benefits from an integral garage and is being offered to the market chain-free.
Property Oracle says ..
This three-bedroom, four-bathroom property located on Barton Road, Bristol, presents a mixed bag of appealing and less appealing features. The property is within walking distance of Bristol Temple Meads, offering excellent connectivity. Nearby schools, including Hannah More Primary School (rated ‘Good’), further enhance its family-friendly aspects. The interior, shown in the provided photographs, appears modern, clean, and well-maintained. However, the lack of outdoor space, a significant drawback for many, is a considerable consideration. The absence of garden space is highlighted by the listed plot size of 0.00 sqft. Also there is a lack of transparency regarding sq footage with conflicting data given, a crucial element for determining overall value. The property benefits from an integral garage, another positive feature. The pricing of £480,000 requires further investigation to ascertain its competitiveness relative to comparable properties in the area, given the inconsistent data available on nearby properties. Further investigation would be required to fully assess value and condition.
Therefore, we give this property 5 / 10. *Disclaimer: This is our option and does constitute a recommendation or financial advice. Do your own research. *
- Price
- 6
- Condition
- 7
- Location
- 7
- Land
- 1
- Bedrooms
- 3
- Bathrooms
- 4
- Sqft (est)
- 965.20
The heatmap indicates the level of crime in the area. The color of the heatmap indicates the crime severity and recency.
Metrics Year-on-Year
- Average area value
- 250,313.00 £Decreased by 14.86 %
- Est sale value
- 395,732.00 £Increased by 4.86 %
- Average area rental value
- 1,834.00 £/moIncreased by 13.07 %
- Est letting value
- 2,895.60 £/moIncreased by 50.00 %
- Est rental Yield
- 8.79 %Increased by 32.78 %
- Crime Rate
- 5.00 %Unchanged by 0.00 %
Agent Activity
Hopewell created the listing.
Nearby Schools
| Name | Type | Ofsted | Distance |
|---|---|---|---|
| Hannah More Primary School | Community School | Good | 0.26 KM |
| Rosemary Early Years Centre | Children's Centre | 0.69 KM | |
| Rosemary Nursery School And Children'S Centre | Local Authority Nursery School | Outstanding | 0.69 KM |
| Andalusia Academy Bristol | Other Independent School | Inadequate | 0.75 KM |
| St Nicholas Of Tolentine Catholic Primary School | Academy Converter | Special Measures | 0.84 KM |
Images
Nearby Streets
| Name | Average Price | Average Sqft | Distance |
|---|---|---|---|
| Oxford Street | £ 0 | 0 | 0.00 KM |
| Midland Street | £ 0 | 0 | 0.00 KM |
| Horton Street | £ 350,000 | 0 | 0.00 KM |
| Saint Philips Road | £ 0 | 0 | 0.00 KM |
| Gas Lane | £ 0 | 0 | 0.00 KM |
Nearby Transport
| Name | NLC | TLC | Distance |
|---|---|---|---|
| Bristol Temple Meads | 3231 | BRI | 0.55 KM |
| Lawrence Hill | 3225 | LWH | 1.57 KM |
| Stapleton Road | 3250 | SRD | 2.10 KM |
| Montpelier | 3203 | MTP | 2.17 KM |
| Bedminster | 3245 | BMT | 2.29 KM |
Nearby Listings
| Address | Price | Type | Score | Distance |
|---|---|---|---|---|
| Barton Road, Bristol | £ 480,000 | BUY | 5 / 10 | 0.00 KM |
| Barton Road, Temple Quay | £ 240,000 | BUY | 7 / 10 | 0.04 KM |
| Barton Road, Temple Quay | £ 250,000 | BUY | 6 / 10 | 0.04 KM |
| Birkin Street, Bristol | £ 325,000 | BUY | 4 / 10 | 0.04 KM |
| Anvil Street, Old Market | £ 260,000 | BUY | 6 / 10 | 0.05 KM |
Nearby Properties
| Address | Price | Distance |
|---|---|---|
| 64 Barton Road | £ 410,000 | 0.00 KM |
| 50 Barton Road | £ 375,000 | 0.00 KM |
| 58 Barton Road | £ 297,000 | 0.00 KM |
| 56 Barton Road | £ 261,500 | 0.00 KM |
| 54 Barton Road | £ 369,000 | 0.02 KM |