Featherstone Lane, Featherstone, Pontefract
By Castle Dwellings Ltd
£ 230,000
Reviews
3 out of 5 stars
Castle Dwellings Ltd says ..
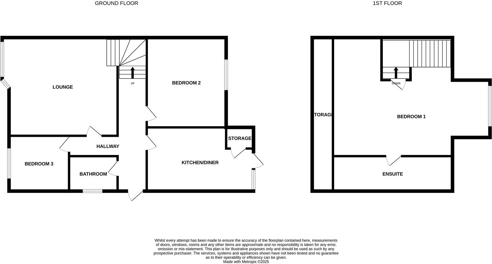
Crown Estate Agents are proud to present this Three Bedroom Semi-Detached Dormer Style Bungalow to the market. Located to an array of local amenities, public transport links and motorways, this property really does appeal to a variety of buyers. With the main bedroom on the first floor with an en...
Property Oracle says ..
This is a 3-bedroom semi-detached bungalow in Featherstone, Pontefract. The property benefits from a modern kitchen and bathrooms, and a decent-sized garden. The property is located within a reasonable distance of local schools and transportation links. Overall, this property presents a good opportunity for potential buyers looking for a well-maintained home in a convenient location. The listing price appears fair given the property’s features and the local market conditions. The property is located close to Park Lane, Ivy Street, The Links, Muirfield Avenue and Miller Road.
Therefore, we give this property 6 / 10. *Disclaimer: This is our option and does constitute a recommendation or financial advice. Do your own research. *
- Price
- 7
- Condition
- 7
- Location
- 6
- Land
- 7
- Bedrooms
- 3
- Bathrooms
- 2
- Sqft (est)
- 912.00
The heatmap indicates the level of crime in the area. The color of the heatmap indicates the crime severity and recency.
Metrics Year-on-Year
- Average area value
- 309,000.00 £Increased by 37.86 %
- Est sale value
- 293,664.00 £Increased by 55.56 %
- Average area rental value
- 543.00 £/moDecreased by 27.11 %
- Est letting value
- 0.00 £/mo
- Est rental Yield
- 2.11 %Decreased by 47.12 %
- Crime Rate
- 21.00 %Unchanged by 0.00 %
Agent Activity
Castle Dwellings Ltd created the listing.
Nearby Schools
| Name | Type | Ofsted | Distance |
|---|---|---|---|
| Featherstone North Featherstone Junior And Infant School | Community School | Good | 0.62 KM |
| Featherstone All Saints Cofe Academy | Academy Converter | Good | 0.72 KM |
| St Wilfrid'S Catholic High School & Sixth Form College: A Voluntary Academy | Academy Converter | Good | 1.08 KM |
| Featherstone Purston St Thomas Church Of England Voluntary Controlled Junior School | Voluntary Controlled School | Good | 1.58 KM |
| Featherstone Purston Infant School | Community School | Good | 1.74 KM |
Images
Nearby Streets
| Name | Average Price | Average Sqft | Distance |
|---|---|---|---|
| Park Lane | £ 250,000 | 0 | 0.00 KM |
| Ivy Street | £ 0 | 0 | 0.00 KM |
| The Links | £ 0 | 0 | 0.00 KM |
| Muirfield Avenue | £ 240,000 | 0 | 0.00 KM |
| The Copse | £ 0 | 0 | 0.00 KM |
Nearby Transport
| Name | NLC | TLC | Distance |
|---|---|---|---|
| Featherstone | 8544 | FEA | 1.13 KM |
| Glasshoughton | 8360 | GLH | 2.68 KM |
| Castleford | 8359 | CFD | 3.95 KM |
| Pontefract Tanshelf | 8541 | POT | 4.02 KM |
| Streethouse | 8543 | SHC | 5.19 KM |
Nearby Listings
| Address | Price | Type | Score | Distance |
|---|---|---|---|---|
| Featherstone Lane, Featherstone, Pontefract | £ 230,000 | BUY | 6 / 10 | 0.00 KM |
| Featherstone Lane, Featherstone, WF7 | £ 210,000 | BUY | Unknown | 0.11 KM |
| Featherstone Lane, Featherstone, Pontefract | £ 250,000 | BUY | 7 / 10 | 0.12 KM |
| Featherstone Lane, Featherstone, Pontefract | £ 140,000 | BUY | Unknown | 0.12 KM |
| Vicarage Gardens, Pontefract, WF7 | £ 80,000 | BUY | 6 / 10 | 0.13 KM |
Nearby Properties
| Address | Price | Distance |
|---|---|---|
| 22 Kingsley Avenue | £ 180,000 | 0.10 KM |
| 13 Kingsley Avenue | £ 109,000 | 0.10 KM |
| 8 Kingsley Avenue | £ 170,002 | 0.10 KM |
| 7 Kingsley Avenue | £ 63,500 | 0.10 KM |
| 4 Kingsley Avenue | £ 134,000 | 0.10 KM |