IC Property says ..
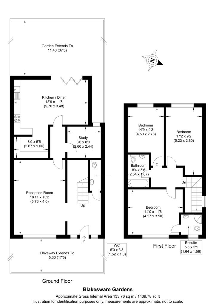
NEW BUILD - Modern three-bedroom end-of-terrace house with spacious garden and allocated rear parking. Features a separate reception room, open-plan kitchen/diner, utility room, study, en-suite to principal bedroom, and underfloor heating. Located near parks, schools, and transport links.
Property Oracle says ..
The property is a 3-bedroom, 3-bathroom end of terrace house with a total area of 889.25 sqft and a plot size of 1439.78 sqft. The list price is £799,995. The location is desirable due to its proximity to transportation links and good schools. The property appears to be in excellent condition, having undergone a recent refurbishment. It includes a garden of reasonable size. The list price is high compared to the average house price in the area but may be justified considering the refurbishment, plot size, and location.
Therefore, we give this property 7 / 10. *Disclaimer: This is our option and does constitute a recommendation or financial advice. Do your own research. *
- Price
- 6
- Condition
- 9
- Location
- 8
- Land
- 7
- Bedrooms
- 3
- Bathrooms
- 3
- Sqft (est)
- 889.25
- Lot (est)
- 1,439.78
The heatmap indicates the level of crime in the area. The color of the heatmap indicates the crime severity and recency.
Metrics Year-on-Year
- Average area value
- 681,429.00 £Increased by 14.18 %
- Est sale value
- 601,133.00 £Increased by 59.81 %
- Average area rental value
- 1,986.00 £/moDecreased by 15.60 %
- Est letting value
- 889.25 £/moUnchanged by 0.00 %
- Est rental Yield
- 3.50 %Decreased by 26.00 %
- Crime Rate
- 3.00 %Unchanged by 0.00 %
Agent Activity
IC Property created the listing.
Nearby Schools
| Name | Type | Ofsted | Distance |
|---|---|---|---|
| Edmonton County School | Academy Converter | Good | 0.32 KM |
| Raglan Infant School | Community School | Good | 0.81 KM |
| The Raglan Junior School | Community School | Good | 0.89 KM |
| Starks Field Primary School | Community School | Good | 0.99 KM |
| The Latymer School | Voluntary Aided School | Outstanding | 1.20 KM |
Images
Nearby Streets
| Name | Average Price | Average Sqft | Distance |
|---|---|---|---|
| York Road | £ 799,995 | 0 | 0.00 KM |
| Kent Road | £ 825,000 | 0 | 0.00 KM |
| Amberley Gardens | £ 0 | 0 | 0.00 KM |
| A10 | £ 0 | 0 | 0.00 KM |
| Clarendon Way | £ 950,000 | 0 | 0.00 KM |
Nearby Transport
| Name | NLC | TLC | Distance |
|---|---|---|---|
| Bush Hill Park | 6913 | BHK | 1.38 KM |
| Enfield Town | 6959 | ENF | 1.88 KM |
| Grange Park | 6029 | GPK | 2.10 KM |
| Winchmore Hill | 6024 | WIH | 2.33 KM |
| Enfield Chase | 6010 | ENC | 2.34 KM |
Nearby Listings
| Address | Price | Type | Score | Distance |
|---|---|---|---|---|
| Blakesware gardens | £ 799,995 | BUY | 7 / 10 | 0.00 KM |
| Blakesware Gardens, Edmonton, London, N9 | £ 600,000 | BUY | Unknown | 0.00 KM |
| Blakesware Gardens, London | £ 749,995 | BUY | 7 / 10 | 0.01 KM |
| Blakesware Gardens, London, N9 | £ 695,000 | BUY | 7 / 10 | 0.02 KM |
| Bury Street West, London, N9 | £ 625,000 | BUY | 7 / 10 | 0.06 KM |
Nearby Properties
| Address | Price | Distance |
|---|---|---|
| 63 Blakesware Gardens | £ 435,000 | 0.02 KM |
| 59 Blakesware Gardens | £ 349,995 | 0.02 KM |
| 73 Blakesware Gardens | £ 435,000 | 0.02 KM |
| 75 Blakesware Gardens | £ 705,000 | 0.02 KM |
| 19 Blakesware Gardens | £ 107,000 | 0.02 KM |