Fossdale Moss, Leyland
BE

Fossdale Moss, Leyland

By Ben Rose

£ 375,000

Reviews

3 out of 5 stars

Ben Rose says ..

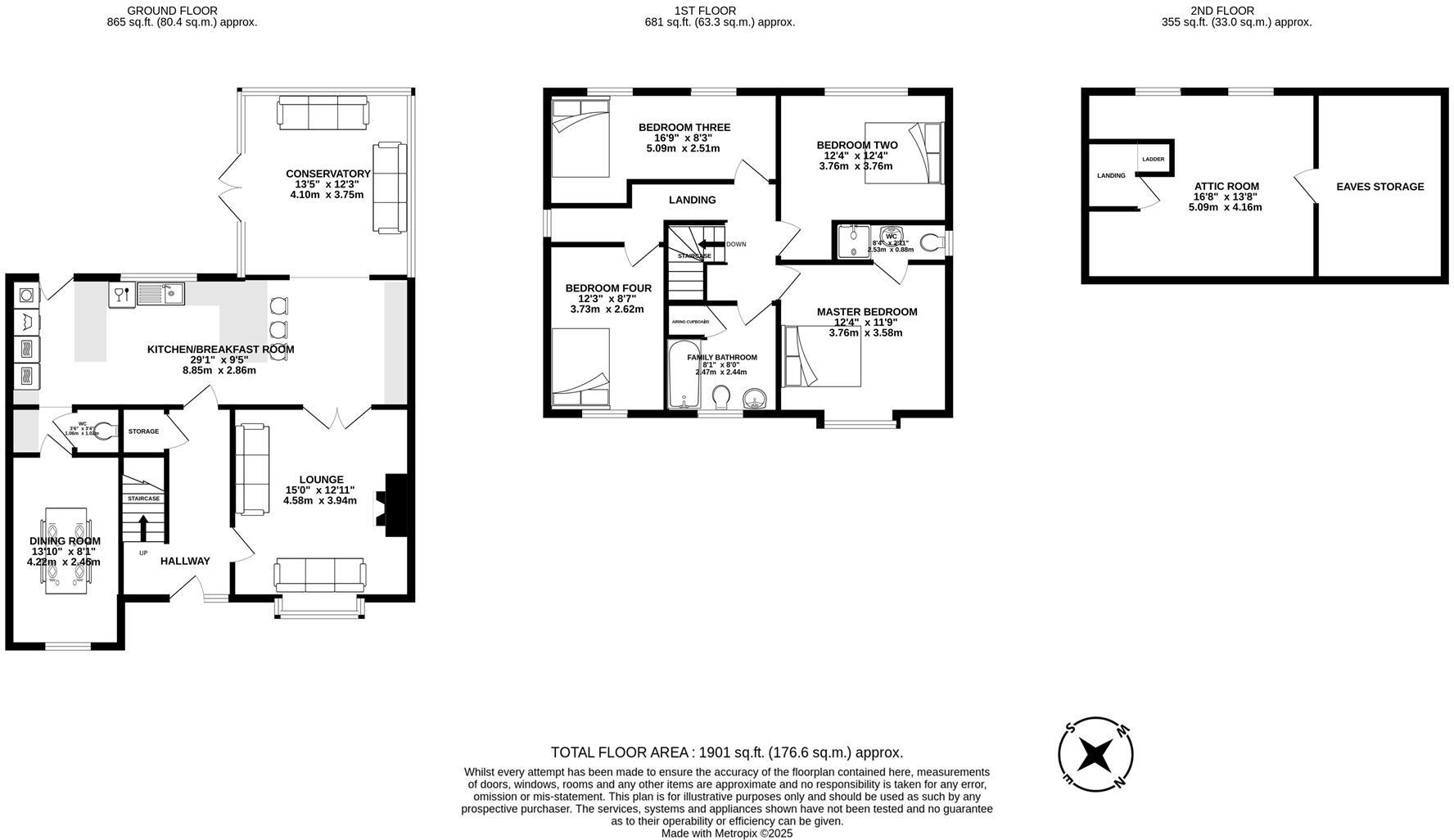
Ben Rose Estate Agents are delighted to present to the market this beautifully presented four-bedroom detached family home, ideally located in a highly sought-after residential area of Leyland. This stunning property is perfect for growing families, offering an abundance of versatile living space...

Property Oracle says ..

Therefore, we give this property 7 / 10. *Disclaimer: This is our option and does constitute a recommendation or financial advice. Do your own research. *

Price
7
Condition
8
Location
7
Land
8
Bedrooms
4
Bathrooms
2
Sqft (est)
1,901.00

The heatmap indicates the level of crime in the area. The color of the heatmap indicates the crime severity and recency.

Metrics Year-on-Year

Average area value
301,650.00 £
Increased by 6.02 %
from 284,509.00 £
Est sale value
842,143.00 £
Increased by 108.96 %
from 403,012.00 £
Average area rental value
1,179.00 £/mo
Decreased by 1.50 %
from 1,197.00 £/mo
Est letting value
1,901.00 £/mo
from 0.00 £/mo
Est rental Yield
4.69 %
Decreased by 7.13 %
from 5.05 %
Crime Rate
0.00 %
from 0.00 %

Agent Activity

  • Ben Rose marked this listing as sold.

  • Ben Rose created the listing.

Nearby Schools

NameTypeOfstedDistance
Moss Side Primary SchoolCommunity SchoolOutstanding0.63 KM
Leyland St James Church Of England Primary SchoolVoluntary Aided SchoolGood0.86 KM
St Anne'S Catholic Primary SchoolVoluntary Aided SchoolRequires improvement1.01 KM
Seven Stars Primary SchoolCommunity SchoolGood1.07 KM
Academy@WordenAcademy ConverterGood1.25 KM

Images

Front External Lounge Kitchen/Conservatory Garden Lounge Lounge Hallway Kitchen/Breakfast Room Kitchen/Lounge Kitchen/Breakfast Room Kitchen/Breakfast Room Kitchen/Breakfast Room Kitchen/Breakfast Room Conservatory Conservatory Dining Room Dining Room WC Master Bedroom Master Bedroom Ensuite Bedroom Two Bedroom Two Bedroom Three Bedroom Three Bedroom Four Family Bathroom Attic Room Attic Room Garden Garden Garden Garden

Nearby Streets

NameAverage PriceAverage SqftDistance
Moorfield Road £ 170,00000.00 KM
Cartmel Road £ 000.00 KM
Homestead Close £ 000.00 KM
Fairhaven Road £ 200,00000.00 KM
Paradise Lane £ 000.00 KM

Nearby Transport

NameNLCTLCDistance
Leyland2710LEY4.09 KM
Lostock Hall2689LOH5.17 KM
Croston2313CSO6.70 KM
Euxton Balshaw Lane2080EBA6.92 KM
Preston (Lancs)2753PRE7.08 KM

Nearby Listings

AddressPriceTypeScoreDistance
Fossdale Moss, Leyland £ 375,000BUY7 / 100.00 KM
Fossdale Moss, Leyland £ 275,000BUY7 / 100.06 KM
Fairy Glen, Fossdale Moss, Leyland, PR26 7AT £ 675,000BUY7 / 100.08 KM
Fossdale Moss, Leyland, Lancashire, PR26 £ 395,000BUY7 / 100.11 KM
Fossdale Moss, Leyland, Lancashire, PR26 £ 325,000BUY8 / 100.11 KM

Nearby Properties

AddressPriceDistance
108 Fossdale Moss £ 183,0000.10 KM
68 Fossdale Moss £ 297,0000.10 KM
92 Fossdale Moss £ 255,0000.10 KM
86 Fossdale Moss £ 144,0000.10 KM
118 Fossdale Moss £ 208,0000.10 KM