Heritage Estates says ..
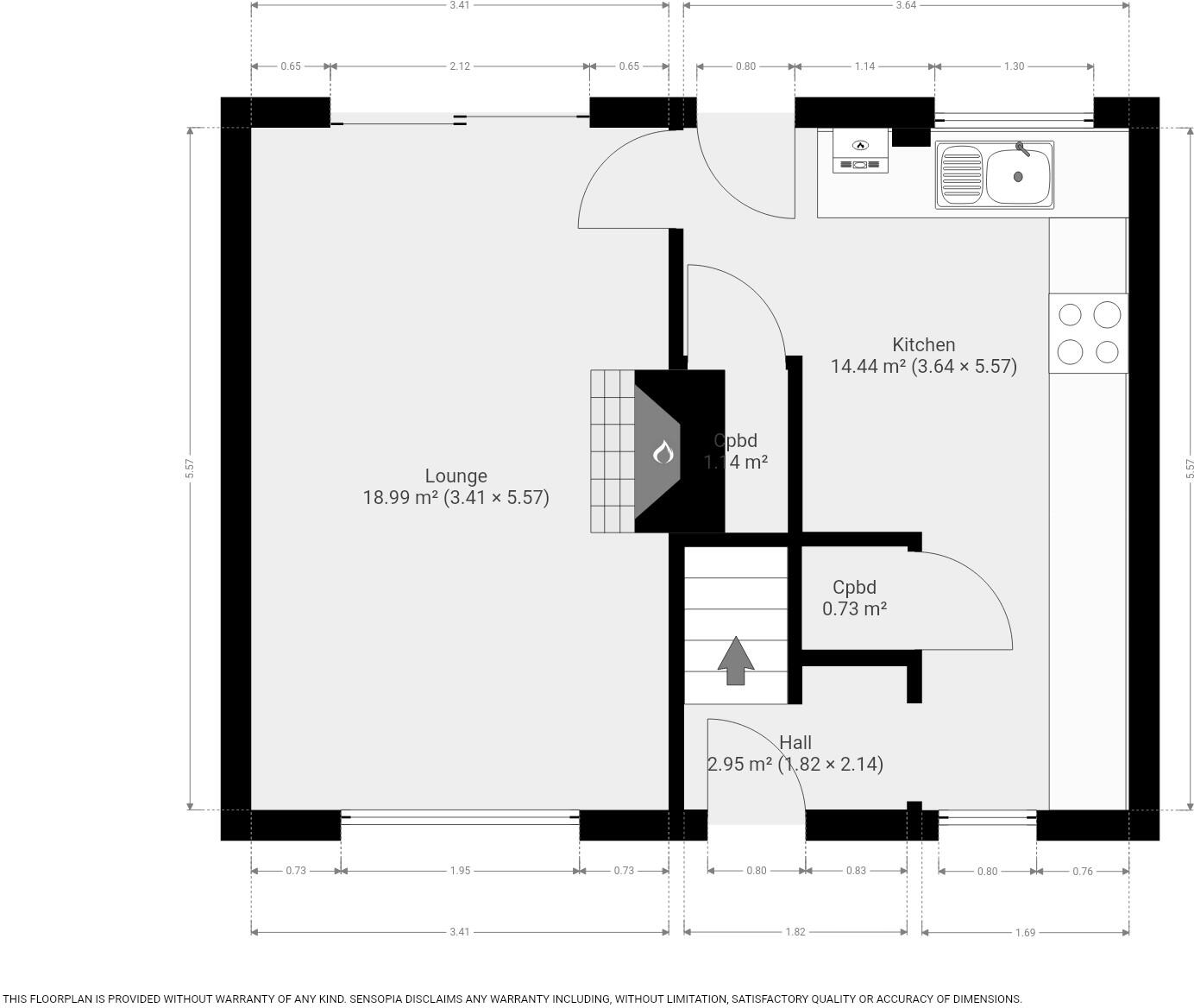
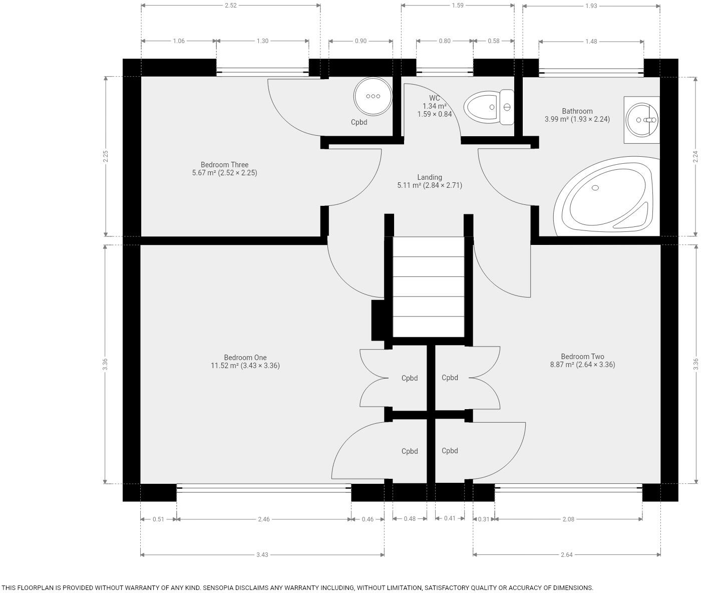
3-BED END-OF-TERRACE HOME FOR SALE SET IN AN OFF-ROAD POSITION WITH A GOOD-SIZED GARDEN REQUIRES SOME UPDATING VACANT POSSESSION / NO CHAIN Heritage Estates are delighted to offer for sale this end-of-terrace house with no chain. The property requires some updating, allowing (cont.)
Property Oracle says ..
The property is located in Rochester, Kent, close to schools and transportation. The property is in need of renovation and the back garden is overgrown. The property is slightly more expensive than the average property price in the area.
Therefore, we give this property 5 / 10. *Disclaimer: This is our option and does constitute a recommendation or financial advice. Do your own research. *
- Price
- 6
- Condition
- 4
- Location
- 7
- Land
- 6
- Bedrooms
- 3
- Bathrooms
- 1
- Sqft (est)
- 411.72
The heatmap indicates the level of crime in the area. The color of the heatmap indicates the crime severity and recency.
Metrics Year-on-Year
- Average area value
- 272,545.00 £Decreased by 13.33 %
- Est sale value
- 170,040.36 £Increased by 9.26 %
- Average area rental value
- 1,483.00 £/moIncreased by 11.09 %
- Est letting value
- 823.44 £/moIncreased by 100.00 %
- Est rental Yield
- 6.53 %Increased by 28.29 %
- Crime Rate
- 18.00 %Unchanged by 0.00 %
Agent Activity
Heritage Estates created the listing.
Nearby Schools
| Name | Type | Ofsted | Distance |
|---|---|---|---|
| Ebbsfleet Green Primary School | Free Schools | 0.27 KM | |
| Bligh Primary School (Infants) | Academy Converter | 0.27 KM | |
| Bligh Primary School (Juniors) | Academy Converter | 0.27 KM | |
| Bligh Children'S Centre | Children's Centre | 0.37 KM | |
| Strood Academy | Academy Sponsor Led | Good | 0.61 KM |
Images
Nearby Streets
| Name | Average Price | Average Sqft | Distance |
|---|---|---|---|
| Wakefield Close | £ 240,000 | 0 | 0.00 KM |
| Lincoln Close | £ 270,000 | 0 | 0.00 KM |
| A2 | £ 375,000 | 0 | 0.00 KM |
| Crispin Road | £ 0 | 0 | 0.00 KM |
| Russet Close | £ 0 | 0 | 0.00 KM |
Nearby Transport
| Name | NLC | TLC | Distance |
|---|---|---|---|
| Cuxton | 5201 | CUX | 2.07 KM |
| Higham | 5202 | HGM | 3.82 KM |
| Strood (Kent) | 5191 | SOO | 4.25 KM |
| Halling | 5173 | HAI | 4.84 KM |
| Rochester | 5203 | RTR | 5.40 KM |
Nearby Listings
| Address | Price | Type | Score | Distance |
|---|---|---|---|---|
| Tern Crescent, Rochester | £ 285,000 | BUY | 5 / 10 | 0.00 KM |
| Albatross Avenue, Rochester, Kent, ME2 | £ 375,000 | BUY | Unknown | 0.10 KM |
| Seagull Road, Strood, Rochester, Kent. ME2 | £ 300,000 | BUY | Unknown | 0.12 KM |
| Tern Crescent, Rochester, Kent, ME2 | £ 300,000 | BUY | 6 / 10 | 0.14 KM |
| Pelican Close, Rochester, Kent, ME2 | £ 275,000 | BUY | 6 / 10 | 0.14 KM |
Nearby Properties
| Address | Price | Distance |
|---|---|---|
| 12 Tern Crescent | £ 310,000 | 0.04 KM |
| 9 Tern Crescent | £ 232,500 | 0.04 KM |
| 18 Tern Crescent | £ 201,000 | 0.04 KM |
| 4 Tern Crescent | £ 237,500 | 0.04 KM |
| 26 Curlew Crescent | £ 250,000 | 0.07 KM |