David Rhys says ..
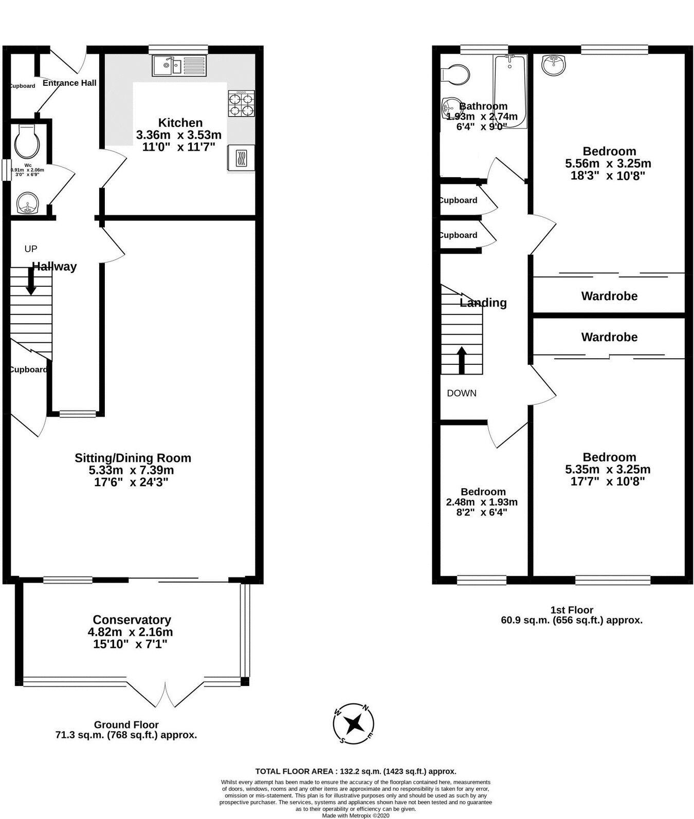
A spacious, beautifully presented 3 bedroom townhouse, enjoying a tranquil cul de sac location. Drakes Gardens is an intimate development of just 10 properties, with attractive communal areas, enjoying a scenic position just off Salterton Road and in an ideal location for nearby supermarkets, ...
Property Oracle says ..
Therefore, we give this property 7 / 10. *Disclaimer: This is our option and does constitute a recommendation or financial advice. Do your own research. *
- Price
- 7
- Condition
- 8
- Location
- 8
- Land
- 7
- Bedrooms
- 3
- Bathrooms
- 1
The heatmap indicates the level of crime in the area. The color of the heatmap indicates the crime severity and recency.
Metrics Year-on-Year
- Average area value
- 322,940.00 £Decreased by 9.74 %
- Average area rental value
- 1,284.00 £/moIncreased by 22.29 %
- Est rental Yield
- 4.77 %Increased by 35.51 %
- Crime Rate
- 15.00 %Unchanged by 0.00 %
from 357,789.00 £
from 1,050.00 £/mo
from 3.52 %
from 15.00 %
Agent Activity
David Rhys created the listing.
Nearby Schools
| Name | Type | Ofsted | Distance |
|---|---|---|---|
| Marpool Primary School | Foundation School | Good | 0.73 KM |
| Bassetts Farm Primary School | Foundation School | Good | 0.75 KM |
| Exmouth & District Children'S Centre | Children's Centre | 0.91 KM | |
| Withycombe Raleigh Church Of England Primary School | Voluntary Controlled School | Good | 1.26 KM |
| Littleham Church Of England Primary School | Voluntary Controlled School | Requires improvement | 1.32 KM |
Images
Nearby Streets
| Name | Average Price | Average Sqft | Distance |
|---|---|---|---|
| Wade Close | £ 0 | 0 | 0.00 KM |
| The Crescent | £ 0 | 0 | 0.00 KM |
| Sutton Road | £ 279,950 | 0 | 0.00 KM |
| Buckeridge Road | £ 264,000 | 0 | 0.00 KM |
| Vale Road | £ 0 | 0 | 0.00 KM |
Nearby Transport
| Name | NLC | TLC | Distance |
|---|---|---|---|
| Exmouth | 5756 | EXM | 3.08 KM |
| Lympstone Village | 5761 | LYM | 5.30 KM |
| Starcross | 3413 | SCS | 6.62 KM |
| Dawlish Warren | 3409 | DWW | 6.95 KM |
| Lympstone Commando | 5762 | LYC | 7.01 KM |
Nearby Listings
| Address | Price | Type | Score | Distance |
|---|---|---|---|---|
| Drakes Avenue, Exmouth, EX8 | £ 420,000 | BUY | 7 / 10 | 0.00 KM |
| Drakes Avenue, Exmouth | £ 540,000 | BUY | 7 / 10 | 0.01 KM |
| Drakes Gardens, Exmouth | £ 395,000 | BUY | 7 / 10 | 0.02 KM |
| Drakes Gardens, Exmouth | £ 385,000 | BUY | 6 / 10 | 0.03 KM |
| Madagascar Close, Exmouth, Devon, EX8 | £ 245,000 | BUY | 6 / 10 | 0.10 KM |
Nearby Properties
| Address | Price | Distance |
|---|---|---|
| 33 Drakes Avenue | £ 515,000 | 0.01 KM |
| 29 Drakes Avenue | £ 432,500 | 0.01 KM |
| 5 Drakes Avenue | £ 312,500 | 0.01 KM |
| 27 Drakes Avenue | £ 365,000 | 0.01 KM |
| 3 Madagascar Close | £ 218,000 | 0.09 KM |