Brookwood Farm Drive, Knaphill, Woking, GU21
By Seymours Estate Agents
£ 550,000
Reviews
3 out of 5 stars
Seymours Estate Agents says ..
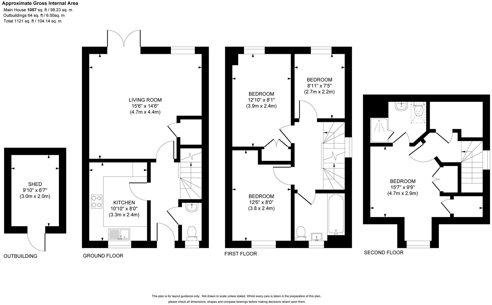
Situated on the sought-after Brookwood Farm Development in Knaphill, this spacious semi detached home offers a prime location for commuters, being just a short walk from Brookwood Mainline Station which provides fast and direct services to London Waterloo. The property is presented in excell...
Property Oracle says ..
This is a semi-detached property in Knaphill, Woking, presented by Seymours Estate Agents. The property features 4 bedrooms and 2 bathrooms. The interior appears to be in good, modern condition. It also benefits from a garden with a shed. The location offers proximity to schools and transportation links. The asking price of £550,000 seems fair considering the property’s condition, size, and location relative to the local market.
Therefore, we give this property 7 / 10. *Disclaimer: This is our option and does constitute a recommendation or financial advice. Do your own research. *
- Price
- 7
- Condition
- 8
- Location
- 7
- Land
- 6
- Bedrooms
- 4
- Bathrooms
- 2
- Sqft (est)
- 133.41
The heatmap indicates the level of crime in the area. The color of the heatmap indicates the crime severity and recency.
Metrics Year-on-Year
- Average area value
- 586,400.00 £Increased by 18.76 %
- Est sale value
- 63,503.16 £Increased by 6.01 %
- Average area rental value
- 2,150.00 £/moIncreased by 9.47 %
- Est letting value
- 133.41 £/moUnchanged by 0.00 %
- Est rental Yield
- 4.40 %Decreased by 7.76 %
- Crime Rate
- 3.00 %Unchanged by 0.00 %
Agent Activity
Seymours Estate Agents created the listing.
Nearby Schools
| Name | Type | Ofsted | Distance |
|---|---|---|---|
| Brookwood Primary School | Academy Sponsor Led | Good | 0.66 KM |
| The Knaphill Lower School | Academy Converter | 0.72 KM | |
| Brookwood & Pirbright Sure Start Children'S Centre | Children's Centre | 0.77 KM | |
| Knaphill School | Academy Converter | 1.01 KM | |
| Bisley Cofe Primary School | Voluntary Aided School | Good | 1.70 KM |
Images
Nearby Streets
| Name | Average Price | Average Sqft | Distance |
|---|---|---|---|
| Oak Tree Road | £ 0 | 0 | 0.00 KM |
| Gloucester Close | £ 735,000 | 0 | 0.00 KM |
| Guernsey Way | £ 0 | 0 | 0.00 KM |
| Stafford Lake | £ 0 | 0 | 0.00 KM |
| Trinity Road | £ 660,000 | 0 | 0.00 KM |
Nearby Transport
| Name | NLC | TLC | Distance |
|---|---|---|---|
| Brookwood | 5687 | BKO | 1.02 KM |
| Worplesdon | 5686 | WPL | 5.69 KM |
| Woking | 5685 | WOK | 8.05 KM |
| Wanborough | 5639 | WAN | 8.46 KM |
| Bagshot | 5681 | BAG | 8.90 KM |
Nearby Listings
| Address | Price | Type | Score | Distance |
|---|---|---|---|---|
| Brookwood Farm Drive, Knaphill, Woking, GU21 | £ 565,000 | BUY | Unknown | 0.00 KM |
| Brookwood Farm Drive, Knaphill, Woking, GU21 | £ 570,000 | BUY | 7 / 10 | 0.00 KM |
| Brookwood Farm Drive, Knaphill, Woking, GU21 | £ 550,000 | BUY | 7 / 10 | 0.00 KM |
| Brookwood Farm Drive, Knaphill, Woking, Surrey, GU21 | £ 455,000 | BUY | 7 / 10 | 0.03 KM |
| Knaphill | £ 280,000 | BUY | 6 / 10 | 0.08 KM |
Nearby Properties
| Address | Price | Distance |
|---|---|---|
| 11 Aberdeen Way | £ 750,000 | 0.07 KM |
| 123 Coresbrook Way | £ 775,000 | 0.13 KM |
| 25 Coresbrook Way | £ 525,000 | 0.13 KM |
| 15 Coresbrook Way | £ 527,000 | 0.13 KM |
| 31 Coresbrook Way | £ 282,000 | 0.13 KM |