Bradley Fold Road, Ainsworth
By Whittakers Estate Agents
£ 190,000
Reviews
2 out of 5 stars
Whittakers Estate Agents says ..
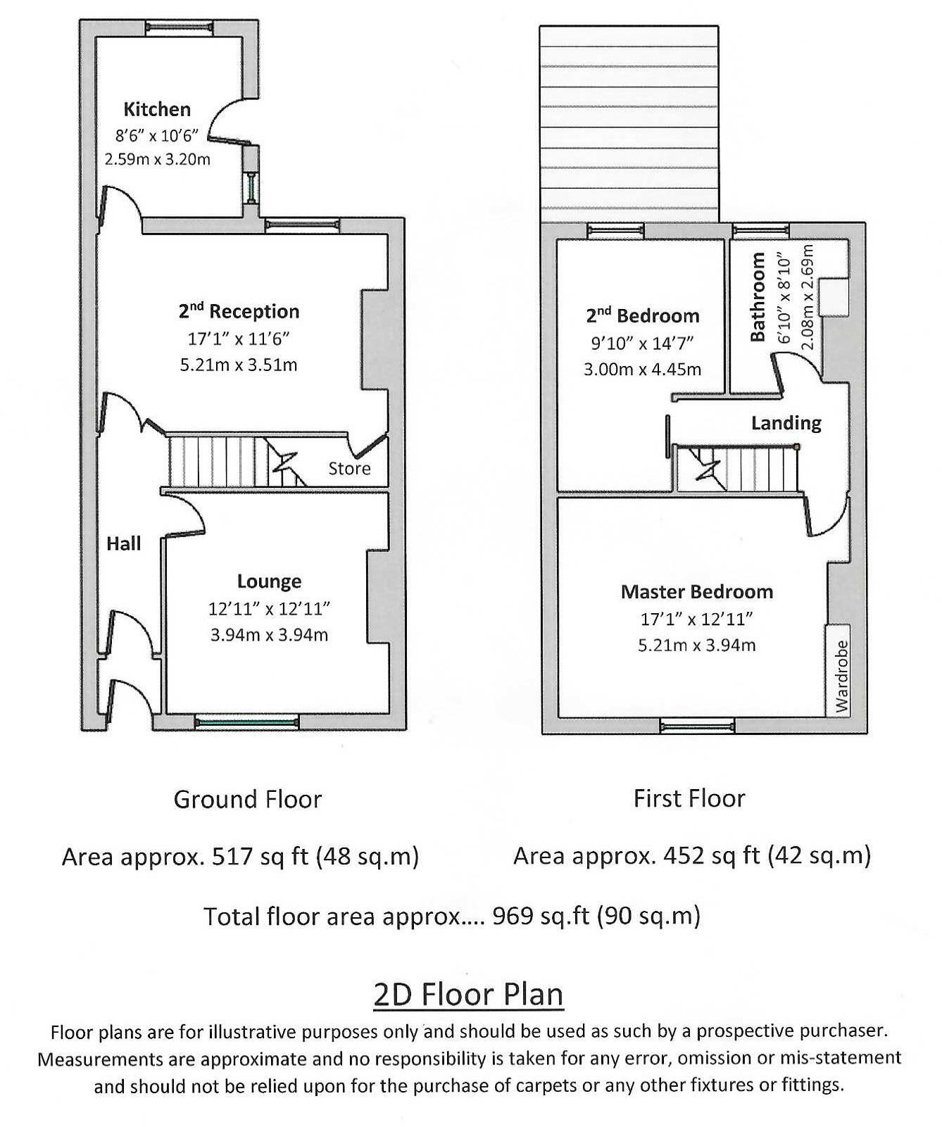
**NO UPWARD CHAIN & NOT OVERLOOKED AT THE REAR ** Good size lounge, spacious 2nd reception room & 2 double bedrooms. Needs some updating. Walking distance to shops, school and park.
Property Oracle says ..
This property is a two-bedroom terraced house located in Ainsworth, Bury. The location benefits from being relatively close to several primary schools, with Christ Church Ainsworth Church of England Primary School being the closest at 0.38km. There are also several train stations within a reasonable distance, providing access to commuter routes. The property itself appears to be in need of some modernisation and updating, as evidenced in the provided images. The decor and fixtures seem dated, and some areas might require repairs or replacements. The property includes a small yard or garden area. Considering the average house price in the area is £235,344 and the average price per square foot is £253, the listing price of £190,000 seems relatively low, especially when considering the need for potential renovations. However, the lack of plot size information and the need for renovations should be considered in the overall assessment.
Therefore, we give this property 4 / 10. *Disclaimer: This is our option and does constitute a recommendation or financial advice. Do your own research. *
- Price
- 6
- Condition
- 4
- Location
- 7
- Land
- 2
- Bedrooms
- 2
- Bathrooms
- 1
- Sqft (est)
- 968.75
The heatmap indicates the level of crime in the area. The color of the heatmap indicates the crime severity and recency.
Metrics Year-on-Year
- Average area value
- 151,667.00 £Decreased by 37.08 %
- Est sale value
- 189,875.00 £Decreased by 19.34 %
- Average area rental value
- 1,063.00 £/moDecreased by 13.58 %
- Est letting value
- 968.75 £/moUnchanged by 0.00 %
- Est rental Yield
- 8.41 %Increased by 37.42 %
- Crime Rate
- 1,666.00 %Unchanged by 0.00 %
Agent Activity
Whittakers Estate Agents created the listing.
Nearby Schools
| Name | Type | Ofsted | Distance |
|---|---|---|---|
| Christ Church Ainsworth Church Of England Primary School | Voluntary Controlled School | Good | 0.38 KM |
| Lowercroft Primary School | Community School | Good | 1.90 KM |
| St Andrew'S Church Of England Primary School, Radcliffe | Voluntary Aided School | Good | 2.53 KM |
| Greenhill Primary School | Academy Converter | 2.58 KM | |
| Masefield Primary School | Academy Converter | Good | 2.58 KM |
Images
Nearby Streets
| Name | Average Price | Average Sqft | Distance |
|---|---|---|---|
| Rose Bank Close | £ 249,995 | 0 | 0.00 KM |
| Hulme's Terrace | £ 0 | 0 | 0.00 KM |
| Metcalfe Terrace | £ 0 | 0 | 0.00 KM |
| Harley Avenue | £ 0 | 0 | 0.00 KM |
| Moorgate Road | £ 0 | 0 | 0.00 KM |
Nearby Transport
| Name | NLC | TLC | Distance |
|---|---|---|---|
| Kearsley (Manchester) | 2605 | KSL | 5.15 KM |
| Farnworth | 2811 | FNW | 5.32 KM |
| Moses Gate | 2606 | MSS | 5.94 KM |
| Hall-I'-Th'-Wood | 2572 | HID | 6.27 KM |
| Bromley Cross (Lancs) | 2697 | BMC | 6.64 KM |
Nearby Listings
| Address | Price | Type | Score | Distance |
|---|---|---|---|---|
| Bradley Fold Road, Ainsworth, Bolton, BL2 5QD | £ 199,995 | BUY | 7 / 10 | 0.09 KM |
| Church Street, Ainsworth, Bolton, Greater Manchester, BL2 | £ 230,000 | BUY | 7 / 10 | 0.10 KM |
| Church Street, Ainsworth, Bolton | £ 160,000 | BUY | 5 / 10 | 0.10 KM |
| Bradley Fold Road, Ainsworth, Bolton, Greater Manchester, BL2 | £ 190,000 | BUY | Unknown | 0.12 KM |
| Church Street, Ainsworth, Bolton, Greater Manchester, BL2 5RA | £ 220,000 | BUY | 6 / 10 | 0.12 KM |
Nearby Properties
| Address | Price | Distance |
|---|---|---|
| 34 Bradley Fold Road | £ 130,000 | 0.02 KM |
| 4 Bradley Fold Road | £ 200,000 | 0.02 KM |
| 8 Bradley Fold Road | £ 172,000 | 0.02 KM |
| 17 Bradley Fold Road | £ 183,000 | 0.02 KM |
| 3 Bradley Fold Road | £ 112,000 | 0.02 KM |