16 Leadley Street, Goldthorpe, Rotherham S63 9LW
By Auction House
£ 10,000
Reviews
2 out of 5 stars
Auction House says ..
Register - auctionhouse.co.uk/southyorkshire
Property Oracle says ..
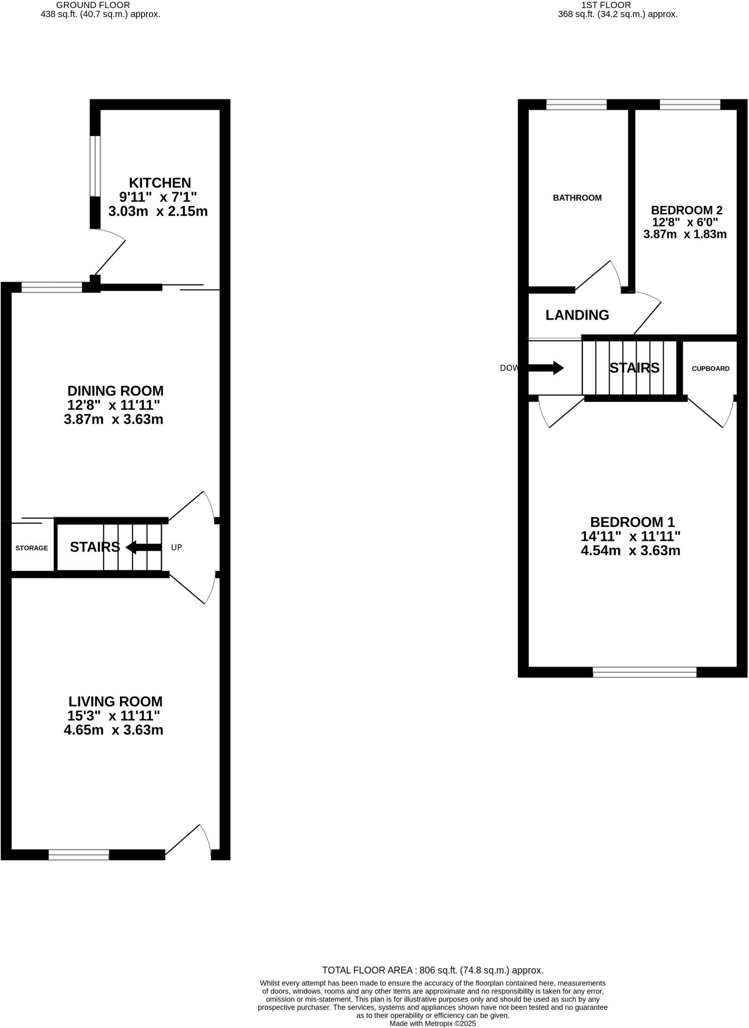
This is a terraced house in Goldthorpe, listed at a very low price of £10,000. The property has 2 bedrooms and 1 bathroom, with a square footage of 805.14 sqft. While the property requires renovation, its price point makes it an attractive investment. The location offers proximity to schools and transportation, enhancing its appeal. The property includes a garden, though it needs some work. Given the low price, it presents a good opportunity for buyers willing to undertake renovations.
Therefore, we give this property 5 / 10. *Disclaimer: This is our option and does constitute a recommendation or financial advice. Do your own research. *
- Price
- 9
- Condition
- 4
- Location
- 5
- Land
- 5
- Bedrooms
- 2
- Bathrooms
- 1
- Sqft (est)
- 805.14
The heatmap indicates the level of crime in the area. The color of the heatmap indicates the crime severity and recency.
Metrics Year-on-Year
- Average area value
- 180,115.00 £Increased by 19.97 %
- Est sale value
- 244,762.56 £Increased by 80.95 %
- Average area rental value
- 694.00 £/moDecreased by 16.49 %
- Est letting value
- 805.14 £/mo
- Est rental Yield
- 4.62 %Decreased by 30.42 %
- Crime Rate
- 37.00 %Unchanged by 0.00 %
Agent Activity
Auction House created the listing.
Nearby Schools
| Name | Type | Ofsted | Distance |
|---|---|---|---|
| Sacred Heart Catholic Primary School | Voluntary Aided School | Good | 0.39 KM |
| The Dearne Academy | Academy Converter | 0.48 KM | |
| Goldthorpe Primary Academy | Academy Converter | 0.77 KM | |
| Highgate Primary Academy | Academy Converter | Good | 1.18 KM |
| Thurnscoe Family Centre | Children's Centre | 1.39 KM |
Images
Nearby Streets
| Name | Average Price | Average Sqft | Distance |
|---|---|---|---|
| Highfield Avenue | £ 0 | 0 | 0.00 KM |
| West Street | £ 17,000 | 0 | 0.00 KM |
| Lapwing View | £ 0 | 0 | 0.00 KM |
| Market Square | £ 65,000 | 0 | 0.00 KM |
| St Michaels Close | £ 275,000 | 0 | 0.00 KM |
Nearby Transport
| Name | NLC | TLC | Distance |
|---|---|---|---|
| Goldthorpe | 8284 | GOE | 0.76 KM |
| Thurnscoe | 8282 | THC | 1.35 KM |
| Bolton-Upon-Dearne | 8536 | BTD | 1.70 KM |
| Mexborough | 6707 | MEX | 5.08 KM |
| Swinton (South Yorks) | 6686 | SWN | 5.22 KM |
Nearby Listings
| Address | Price | Type | Score | Distance |
|---|---|---|---|---|
| 16 Leadley Street, Goldthorpe, Rotherham S63 9LW | £ 10,000 | BUY | 5 / 10 | 0.00 KM |
| Leadley Street, Goldthorpe | £ 59,999 | BUY | 4 / 10 | 0.02 KM |
| Jackson Street, Goldthorpe, Rotherham, South Yorkshire, S63 | £ 75,000 | BUY | 6 / 10 | 0.08 KM |
| Jackson Street, Goldthorpe, Rotherham | £ 60,000 | BUY | 5 / 10 | 0.08 KM |
| Barnsley Road, Rotherham | £ 61,000 | BUY | 6 / 10 | 0.11 KM |
Nearby Properties
| Address | Price | Distance |
|---|---|---|
| 12 Leadley Street | £ 50,000 | 0.01 KM |
| 22 Leadley Street | £ 62,000 | 0.01 KM |
| 10 Leadley Street | £ 45,000 | 0.01 KM |
| 3 Leadley Street | £ 50,000 | 0.01 KM |
| 14 Leadley Street | £ 45,000 | 0.01 KM |