North Lopham
FI

North Lopham

By Fine & Country

£ 950,000

Reviews

3 out of 5 stars

Fine & Country says ..

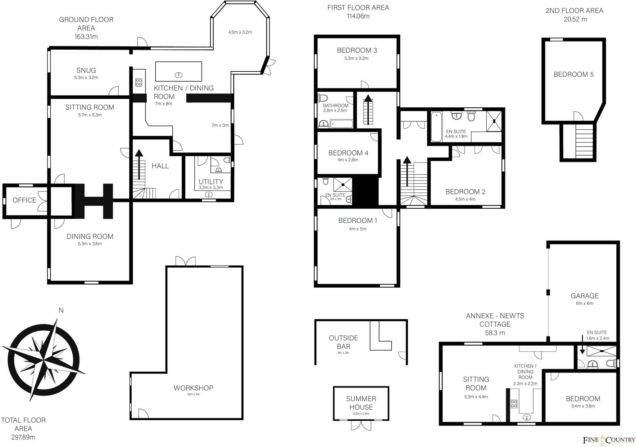
Characterful and Convenient. This characterful period home is the perfect marriage of stylish contemporary comfort and rural charm. Set in 1.27 acres(stms) it offers five bedrooms, three reception rooms, separate cottage, summer house, and outside bar/kitchen area all set in quintessentially Engl...

Property Oracle says ..

Therefore, we give this property 7 / 10. *Disclaimer: This is our option and does constitute a recommendation or financial advice. Do your own research. *

Price
7
Condition
7
Location
7
Land
9
Bedrooms
5
Bathrooms
3
Sqft (est)
4,494.58

The heatmap indicates the level of crime in the area. The color of the heatmap indicates the crime severity and recency.

Metrics Year-on-Year

Average area value
500,000.00 £
Decreased by 2.50 %
from 512,828.00 £
Est sale value
1,209,042.02 £
Decreased by 24.23 %
from 1,595,575.90 £
Average area rental value
1,500.00 £/mo
Increased by 26.05 %
from 1,190.00 £/mo
Est letting value
0.00 £/mo
from 0.00 £/mo
Est rental Yield
3.60 %
Increased by 29.50 %
from 2.78 %
Crime Rate
0.00 %
from 0.00 %

Agent Activity

  • Fine & Country created the listing.

Nearby Schools

NameTypeOfstedDistance
St Andrew'S Cofe Va Primary School, LophamVoluntary Aided SchoolGood0.60 KM
Kenninghall Primary SchoolAcademy Sponsor Led2.68 KM
Garboldisham Church Of England Primary AcademyAcademy Sponsor Led5.82 KM
Aurora White House SchoolOther Independent Special School6.28 KM
Aurora Eccles SchoolOther Independent Special School6.29 KM

Images

Tanns Lodge - FC-... Tanns Lodge - FC-... Tanns Lodge - FC-... Tanns Lodge - FC-... Tanns Lodge - FC-... Tanns Lodge - FC-... Tanns Lodge - FC-... Tanns Lodge - FC-... Tanns Lodge - FC-... Tanns Lodge - FC-... Tanns Lodge - FC-... Tanns Lodge - FC-... Tanns Lodge - FC-... Tanns Lodge - FC-... Tanns Lodge - FC-... Tanns Lodge - FC-... Tanns Lodge - FC-... Tanns Lodge - FC-... Annexe Annexe 1 Tanns Lodge - FC-... Tanns Lodge - FC-... Tanns Lodge - FC-... Tanns Lodge - FC-... Annexe 2 Annexe 3 Annexe 4 Tanns Lodge - FC-... Tanns Lodge - FC-... Tanns Lodge - FC-... Tanns Lodge - FC-... Tanns Lodge - FC-... Tanns Lodge - FC-... Tanns Lodge - FC-... Tanns Lodge e (00... Tanns Lodge-13 Tanns Lodge-7 Tanns Lodge-12 Tanns Lodge-10 Tanns Lodge-2 Tanns Lodge-4 Tanns Lodge-5 Tanns Lodge-6 Tanns Lodge-17

Nearby Transport

NameNLCTLCDistance
Eccles Road7370ECS7.44 KM

Nearby Listings

AddressPriceTypeScoreDistance
North Lopham £ 950,000BUY7 / 100.00 KM
Tanns Lane, North Lopham £ 925,000BUYUnknown0.01 KM
Tanns Lane North Lopham, IP22 £ 475,000BUY7 / 100.08 KM
North Lopham £ 490,000BUY8 / 100.09 KM
Tanns Lane, North Lopham £ 475,000BUY7 / 100.21 KM

Nearby Properties

AddressPriceDistance
Pond House £ 325,0000.09 KM
2 Tanns Lane £ 412,5000.09 KM
Meadow Side £ 237,0000.09 KM
Glan Y Llyn £ 250,0000.09 KM
Meadow Cottage £ 305,0000.09 KM