Batcliffe Drive, Headingley, Leeds, LS6 3QB
By Donnelly and Co
£ 675,000
Reviews
4 out of 5 stars
Donnelly and Co says ..
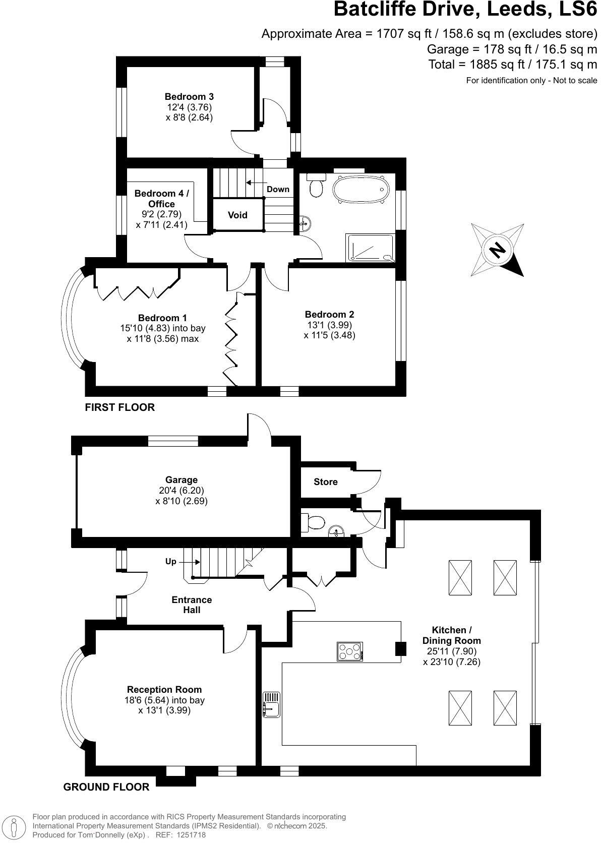
Donnelly & Co present a distinguished and substantially extended four-bedroom detached residence A Home of Character & Contemporary Luxury Nestled behind elegant wooden gates, this beautifully extended detached house offers ...
Property Oracle says ..
This property is a 4-bedroom, 1-bathroom detached house located in Headingley, Leeds. The location is excellent, with good schools and transport links nearby. The property itself is in good condition, having undergone some modernisation, including a significant extension to the rear. This extension has created a large, open-plan kitchen/dining/living area with bi-fold doors leading to a good-sized garden. The property also benefits from a garage and ample off-street parking. The list price of £675,000 seems reasonable given the size, condition, and location of the property. The average price per square foot in the area is £557, and this property is larger than average. While there are some nearby properties that have sold for less, they are either smaller or in a different condition. Overall, this property represents good value for money.
Therefore, we give this property 8 / 10. *Disclaimer: This is our option and does constitute a recommendation or financial advice. Do your own research. *
- Price
- 8
- Condition
- 9
- Location
- 9
- Land
- 7
- Bedrooms
- 4
- Bathrooms
- 1
- Sqft (est)
- 1,495.29
- Lot (est)
- 1,707.00
The heatmap indicates the level of crime in the area. The color of the heatmap indicates the crime severity and recency.
Metrics Year-on-Year
- Average area value
- 425,754.00 £Increased by 28.76 %
- Est sale value
- 726,710.94 £Increased by 65.87 %
- Average area rental value
- 1,157.00 £/moIncreased by 11.79 %
- Est letting value
- 1,495.29 £/mo
- Est rental Yield
- 3.26 %Decreased by 13.30 %
- Crime Rate
- 3.00 %Unchanged by 0.00 %
Agent Activity
Donnelly and Co marked this listing as sold.
Donnelly and Co created the listing.
Nearby Schools
| Name | Type | Ofsted | Distance |
|---|---|---|---|
| Richmond House School | Other Independent School | 0.74 KM | |
| Weetwood Primary School | Community School | Good | 0.78 KM |
| Leeds Beckett University | Higher Education Institutions | 0.93 KM | |
| Lighthouse Futures Trust | Special Post 16 Institution | 1.20 KM | |
| Headingley Children'S Centre | Children's Centre | 1.47 KM |
Images
Nearby Streets
| Name | Average Price | Average Sqft | Distance |
|---|---|---|---|
| Victoria Terrace | £ 0 | 0 | 0.00 KM |
| Glen Road | £ 0 | 0 | 0.00 KM |
| Back Rochester Terrace | £ 0 | 0 | 0.00 KM |
| Chapel Terrace | £ 0 | 0 | 0.00 KM |
| Hollin Court | £ 210,000 | 0 | 0.00 KM |
Nearby Transport
| Name | NLC | TLC | Distance |
|---|---|---|---|
| Headingley | 8498 | HDY | 1.08 KM |
| Burley Park | 8500 | BUY | 1.74 KM |
| Kirkstall Forge | 6544 | KLF | 3.92 KM |
| Leeds | 8487 | LDS | 5.39 KM |
| Horsforth | 8499 | HRS | 5.42 KM |
Nearby Listings
| Address | Price | Type | Score | Distance |
|---|---|---|---|---|
| Batcliffe Drive, Headingley, Leeds, LS6 3QB | £ 675,000 | BUY | 8 / 10 | 0.00 KM |
| Batcliffe Drive, Leeds, LS6 | £ 525,000 | BUY | 7 / 10 | 0.06 KM |
| Becketts Park Drive, Leeds, LS6 | £ 500,000 | BUY | 7 / 10 | 0.07 KM |
| Becketts Park Drive, Leeds, West Yorkshire | £ 335,000 | BUY | 7 / 10 | 0.11 KM |
| Becketts Park Drive, Leeds | £ 400,000 | BUY | 6 / 10 | 0.16 KM |
Nearby Properties
| Address | Price | Distance |
|---|---|---|
| 17 Batcliffe Drive | £ 375,000 | 0.00 KM |
| 21a Batcliffe Drive | £ 115,000 | 0.00 KM |
| 19 Batcliffe Drive | £ 290,000 | 0.00 KM |
| 1 Batcliffe Drive | £ 110,000 | 0.00 KM |
| 31 Batcliffe Drive | £ 271,050 | 0.00 KM |