Olivers Town says ..
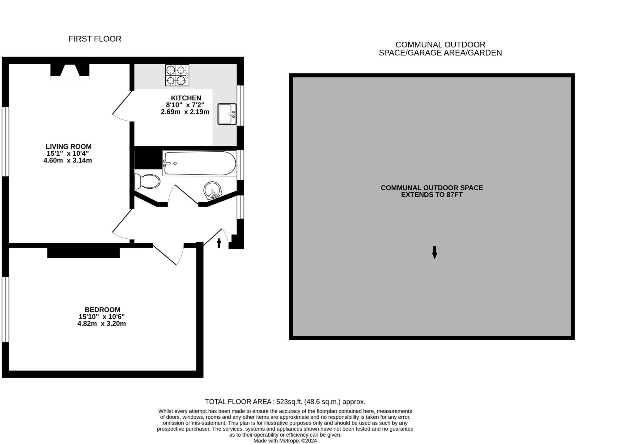
A stunning and spacious one bedroom apartment set on the first floor of an imposing period building. EPC Band C. Council Tax Band C.
Property Oracle says ..
This one-bedroom apartment situated on Camden Road in Holloway, Islington, presents a compelling blend of location and features, albeit with some notable caveats. The property’s position in Islington, known for its thriving community and excellent transport links, is a definite asset, with nearby access to both the Underground and Overground. The proximity to well-regarded schools makes it suitable for families. The interior is presented well, with a modern aesthetic throughout. The small garden offers a bit of outdoor space, whilst the communal garage offers further value. However, the small size of the flat at only 523 sq ft limits its overall appeal. The kitchen, whilst functional, appears slightly dated and may require updating. The shared nature of the external spaces and the lack of a private garden might prove a drawback for some buyers. The price point, whilst competitive for the area, isn’t exceptionally low given the size limitations. Overall, this property may appeal to first-time buyers or individuals prioritizing location and convenience over significant space and private outdoor areas.
Therefore, we give this property 6 / 10. *Disclaimer: This is our option and does constitute a recommendation or financial advice. Do your own research. *
- Price
- 6
- Condition
- 7
- Location
- 7
- Land
- 4
- Bedrooms
- 1
- Bathrooms
- 1
- Sqft (est)
- 523.13
The heatmap indicates the level of crime in the area. The color of the heatmap indicates the crime severity and recency.
Metrics Year-on-Year
- Average area value
- 1,119,000.00 £Increased by 54.70 %
- Est sale value
- 977,206.84 £Increased by 148.07 %
- Average area rental value
- 2,309.00 £/moIncreased by 1.09 %
- Est letting value
- 1,569.39 £/moIncreased by 50.00 %
- Est rental Yield
- 2.48 %Decreased by 34.56 %
- Crime Rate
- 6.00 %Unchanged by 0.00 %
Agent Activity
Olivers Town created the listing.
Nearby Schools
| Name | Type | Ofsted | Distance |
|---|---|---|---|
| Brecknock Primary School | Community School | Good | 0.23 KM |
| Hungerford Children'S Centre | Children's Centre | 0.24 KM | |
| Hungerford School | Academy Sponsor Led | 0.25 KM | |
| The Bridge Satellite Provision | Free Schools Special | 0.25 KM | |
| The Bridge School | Academy Special Converter | Outstanding | 0.25 KM |
Images
Nearby Streets
| Name | Average Price | Average Sqft | Distance |
|---|---|---|---|
| Northpoint Square | £ 725,000 | 0 | 0.00 KM |
| Camden Mews | £ 1,802,857 | 0 | 0.00 KM |
| Carleton Road | £ 350,000 | 0 | 0.00 KM |
| Milburn Lane | £ 0 | 0 | 0.00 KM |
| Freight Lane | £ 0 | 0 | 0.00 KM |
Nearby Transport
| Name | NLC | TLC | Distance |
|---|---|---|---|
| Kentish Town | 1553 | KTN | 1.29 KM |
| Camden Road | 1440 | CMD | 1.39 KM |
| Caledonian Road And Barnsbury | 1439 | CIR | 1.50 KM |
| Upper Holloway | 1524 | UHL | 1.59 KM |
| St Pancras | 1555 | STP | 1.90 KM |
Nearby Listings
| Address | Price | Type | Score | Distance |
|---|---|---|---|---|
| Camden Road, London, N7 | £ 425,000 | BUY | 6 / 10 | 0.00 KM |
| Camden Road, London, N7 | £ 250,000 | BUY | Unknown | 0.01 KM |
| Camden Road, London, N7 | £ 375,000 | BUY | 5 / 10 | 0.02 KM |
| Camden Road, Hillmarton Conservation Area, N7 | £ 650,000 | BUY | 7 / 10 | 0.02 KM |
| Camden Road N7 | £ 375,000 | BUY | Unknown | 0.03 KM |
Nearby Properties
| Address | Price | Distance |
|---|---|---|
| 233 Camden Road | £ 110,000 | 0.02 KM |
| 243d Camden Road | £ 395,000 | 0.03 KM |
| 5 Belmore Lane | £ 250,000 | 0.11 KM |
| 21 Belmore Lane | £ 595,000 | 0.11 KM |
| 3 Belmore Lane | £ 165,000 | 0.11 KM |