Parkheath says ..
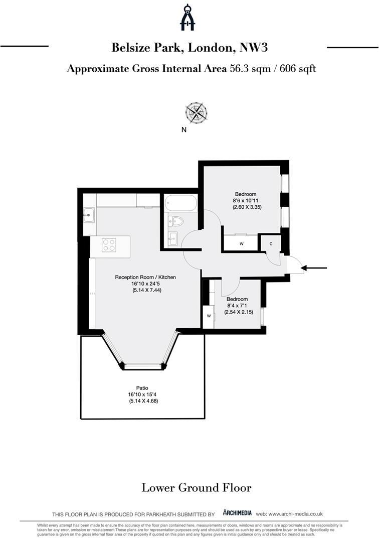
A delightful 2 bedroom apartment with private front patio - Set in imposing end of terrace white stucco fronted residence - Own entrance on the lower floor- Over 600 sq ft of impressive space - 24ft bay fronted open plan reception - Sleek contemporary kitchen with island - 11ft main bedr...
Property Oracle says ..
Belsize Park is a highly sought-after location in the London Borough of Camden. The property benefits from its proximity to excellent schools such as Holy Trinity Cofe Primary School, which received a “Good” Ofsted rating, and is within a reasonable distance of other well-regarded schools. The area also boasts convenient access to public transportation, with South Hampstead Overground station being just 0.63km away. This provides easy commutes to other parts of London. The presence of shops and amenities in the vicinity further enhances the desirability of the location.
Based on the provided photographs, the property appears to be in excellent condition. The interiors are modern, well-maintained, and tastefully decorated. The kitchen and bathrooms are contemporary and appear recently renovated. There is no visible evidence of significant repairs or renovations needed.
The property includes a small, manageable garden space, as shown in the exterior photos. While not expansive, it offers some outdoor area, which is a desirable feature in a densely populated urban area like Belsize Park.
Determining the reasonableness of the list price requires considering several factors. The property is listed at £710,000 with 808 sqft of living space. While nearby comparable properties are not provided with square footage, the list price falls within the range of other properties in the area. The property’s modern condition and desirable location support the price. However, a more detailed comparative market analysis, including properties with similar square footage and features, would be needed for a definitive assessment of the price’s reasonableness.
Therefore, we give this property 7 / 10. *Disclaimer: This is our option and does constitute a recommendation or financial advice. Do your own research. *
- Price
- 7
- Condition
- 9
- Location
- 9
- Land
- 6
- Bedrooms
- 2
- Bathrooms
- 1
- Sqft (est)
- 808.00
- Lot (est)
- 606.00
The heatmap indicates the level of crime in the area. The color of the heatmap indicates the crime severity and recency.
Metrics Year-on-Year
- Average area value
- 2,006,818.00 £Increased by 21.53 %
- Est sale value
- 1,056,864.00 £Increased by 12.76 %
- Average area rental value
- 3,542.00 £/moIncreased by 13.31 %
- Est letting value
- 1,616.00 £/moUnchanged by 0.00 %
- Est rental Yield
- 2.12 %Decreased by 6.61 %
- Crime Rate
- 8.00 %Unchanged by 0.00 %
Agent Activity
Parkheath created the listing.
Nearby Schools
| Name | Type | Ofsted | Distance |
|---|---|---|---|
| Central School Of Speech And Drama | Higher Education Institutions | 0.15 KM | |
| South Hampstead High School | Other Independent School | 0.27 KM | |
| Holy Trinity Cofe Primary School, Nw3 | Voluntary Aided School | Good | 0.34 KM |
| The Hall School | Other Independent School | 0.44 KM | |
| North Bridge House Pre-Prep School | Other Independent School | 0.53 KM |
Images
Nearby Streets
| Name | Average Price | Average Sqft | Distance |
|---|---|---|---|
| College Crescent | £ 0 | 0 | 0.00 KM |
| Adelaide Road | £ 0 | 0 | 0.00 KM |
| Winchester Mews | £ 0 | 0 | 0.00 KM |
| Victoria Rise | £ 2,743,998 | 0 | 0.00 KM |
| Harben Road | £ 0 | 0 | 0.00 KM |
Nearby Transport
| Name | NLC | TLC | Distance |
|---|---|---|---|
| South Hampstead | 1451 | SOH | 0.63 KM |
| Finchley Road And Frognal | 1445 | FNY | 1.05 KM |
| Hampstead Heath | 1413 | HDH | 1.48 KM |
| West Hampstead | 1421 | WHD | 1.81 KM |
| West Hampstead Thameslink | 1525 | WHP | 1.90 KM |
Nearby Listings
| Address | Price | Type | Score | Distance |
|---|---|---|---|---|
| Belsize Park, Belsize Park NW3 | £ 710,000 | BUY | 7 / 10 | 0.00 KM |
| Belsize Park, Belsize Park, NW3 | £ 650,000 | BUY | Unknown | 0.00 KM |
| Belsize Park, Belsize Park | £ 1,050,000 | BUY | Unknown | 0.05 KM |
| Belsize Park House, Belsize Park, NW3 | £ 500,000 | BUY | Unknown | 0.06 KM |
| Buckland Crescent, London | £ 800,000 | BUY | 8 / 10 | 0.07 KM |
Nearby Properties
| Address | Price | Distance |
|---|---|---|
| 21a College Crescent | £ 667,000 | 0.05 KM |
| 18a College Crescent | £ 756,000 | 0.05 KM |
| 19 College Crescent | £ 620,000 | 0.05 KM |
| 18c College Crescent | £ 650,000 | 0.05 KM |
| 16b College Crescent | £ 415,000 | 0.05 KM |