Orchard Rise, Coombe Estate, Kingston Upon Thames
By Gibson Lane
£ 1,750,000
Reviews
3 out of 5 stars
Gibson Lane says ..
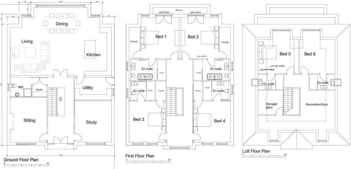
Attention families and developers, a rather unique opportunity to acquire this incredible plot approaching 1/4 acre which enjoys a due west aspect, located on this extremely sought after private road on the fringe of the exclusive Coombe Estate. Planning permission was granted on 2nd February 202...
Property Oracle says ..
This property presents a compelling opportunity in the prestigious Coombe Estate, Kingston Upon Thames. The six-bedroom, six-bathroom house offers substantial living space, and the inclusion of a significant garden adds significant appeal, particularly to families. The location in Coombe Hill is undeniably advantageous, offering access to highly regarded schools and excellent transport links, enhancing the desirability and potential for long-term value. The architectural plans indicate a contemporary design, although the existing property, as seen in the aerial photos, presents a more traditional aesthetic. The current condition of the property appears to be generally sound, although some landscaping and general maintenance is clearly required to fully realize its potential. The listed price of £1,750,000 sits within the range of similar properties in the area, but thorough due diligence is recommended to accurately assess its value given the lack of readily available comparative data on square footage for similar properties in the immediate vicinity.
Therefore, we give this property 7 / 10. *Disclaimer: This is our option and does constitute a recommendation or financial advice. Do your own research. *
- Price
- 7
- Condition
- 7
- Location
- 9
- Land
- 6
- Bedrooms
- 6
- Bathrooms
- 6
- Sqft (est)
- 2,570.10
The heatmap indicates the level of crime in the area. The color of the heatmap indicates the crime severity and recency.
Metrics Year-on-Year
- Average area value
- 1,213,333.00 £Decreased by 19.80 %
- Est sale value
- 4,618,469.70 £Increased by 133.68 %
- Average area rental value
- 6,408.00 £/moIncreased by 114.10 %
- Est letting value
- 23,130.90 £/moIncreased by 800.00 %
- Est rental Yield
- 6.34 %Increased by 167.51 %
- Crime Rate
- 1.00 %Unchanged by 0.00 %
Agent Activity
Gibson Lane created the listing.
Nearby Schools
| Name | Type | Ofsted | Distance |
|---|---|---|---|
| Holy Cross Preparatory School | Other Independent School | 0.38 KM | |
| Rokeby School | Other Independent School | 0.42 KM | |
| Marymount International School | Other Independent School | 0.57 KM | |
| Coombe Hill Junior School | Community School | Outstanding | 0.72 KM |
| Coombe Hill Infant School | Community School | Good | 0.72 KM |
Images
Nearby Streets
| Name | Average Price | Average Sqft | Distance |
|---|---|---|---|
| Southwood Avenue | £ 2,950,000 | 0 | 0.00 KM |
| The Triangle | £ 0 | 0 | 0.00 KM |
| Gloucester Road | £ 0 | 0 | 0.00 KM |
| Rosemont Road | £ 0 | 0 | 0.00 KM |
| Fairlawn Close | £ 3,250,000 | 0 | 0.00 KM |
Nearby Transport
| Name | NLC | TLC | Distance |
|---|---|---|---|
| Norbiton | 5568 | NBT | 1.23 KM |
| Berrylands | 5581 | BRS | 1.93 KM |
| New Malden | 5567 | NEM | 2.24 KM |
| Kingston | 5565 | KNG | 3.10 KM |
| Malden Manor | 5599 | MAL | 3.58 KM |
Nearby Listings
| Address | Price | Type | Score | Distance |
|---|---|---|---|---|
| Orchard Rise, Kingston Upon Thames, Surrey, KT2 | £ 2,295,000 | BUY | Unknown | 0.03 KM |
| Orchard Rise, Kingston Upon Thames, KT2 | £ 2,295,000 | BUY | 8 / 10 | 0.06 KM |
| Coombe Rise, Kingston upon Thames, Surrey, KT2 | £ 3,300,000 | BUY | Unknown | 0.12 KM |
| Coombe Lane West, Kingston Upon Thames | £ 1,600,000 | BUY | 8 / 10 | 0.20 KM |
| The Drive, Coombe, Kingston upon Thames, KT2 | £ 4,500,000 | BUY | 8 / 10 | 0.20 KM |
Nearby Properties
| Address | Price | Distance |
|---|---|---|
| 9 Orchard Rise | £ 575,000 | 0.01 KM |
| 16 Orchard Rise | £ 1,420,000 | 0.01 KM |
| 14 Orchard Rise | £ 1,300,000 | 0.01 KM |
| 1 Orchard Rise | £ 1,900,000 | 0.01 KM |
| 8 Orchard Rise | £ 775,000 | 0.06 KM |