ST
Malcolm Court, Forest Gate, E7 9DJ
By Stonebridge Estates
£ 310,000
Reviews
2 out of 5 stars
Stonebridge Estates says ..
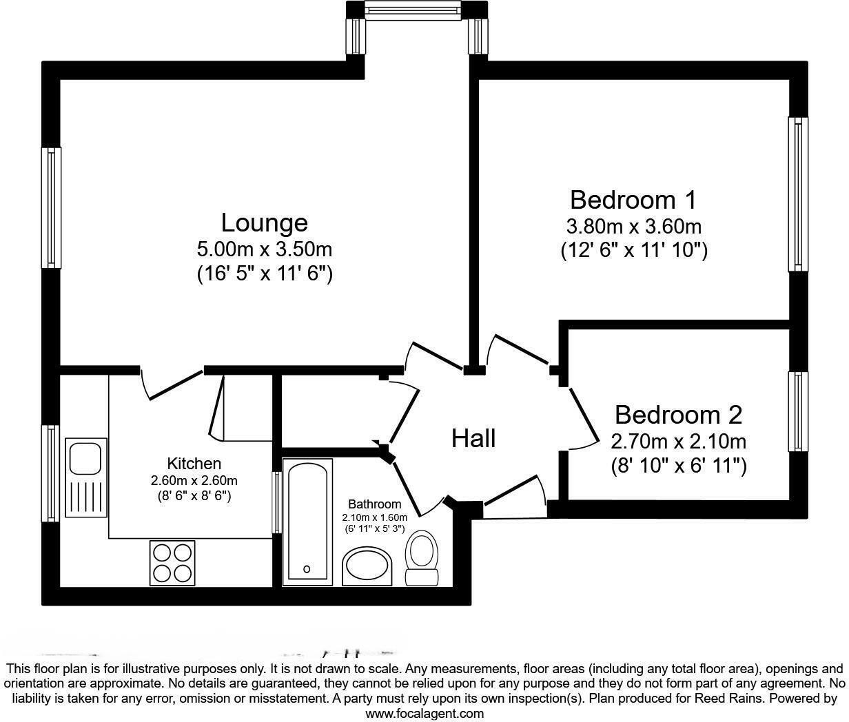
Spacious two bedroom flat Fantastic Location by Atherton Leisure Centre. This well presented first floor flat is set within a spacious period property/ building, perfectly positioned for both convenience and lifestyle.
Property Oracle says ..
Therefore, we give this property 5 / 10. *Disclaimer: This is our option and does constitute a recommendation or financial advice. Do your own research. *
- Price
- 8
- Condition
- 5
- Location
- 7
- Land
- 1
- Bedrooms
- 2
- Bathrooms
- 1
- Sqft (est)
- 505.58
The heatmap indicates the level of crime in the area. The color of the heatmap indicates the crime severity and recency.
Metrics Year-on-Year
- Average area value
- 534,167.00 £Increased by 13.39 %
- Est sale value
- 429,237.42 £Increased by 54.93 %
- Average area rental value
- 1,996.00 £/moDecreased by 1.19 %
- Est letting value
- 1,516.74 £/moIncreased by 50.00 %
- Est rental Yield
- 4.48 %Decreased by 13.01 %
- Crime Rate
- 7.00 %Unchanged by 0.00 %
from 471,088.00 £
from 277,057.84 £
from 2,020.00 £/mo
from 1,011.16 £/mo
from 5.15 %
from 7.00 %
Agent Activity
Stonebridge Estates created the listing.
Nearby Schools
| Name | Type | Ofsted | Distance |
|---|---|---|---|
| Earlham Primary School | Academy Converter | Good | 0.29 KM |
| Park Primary School | Community School | Good | 0.36 KM |
| St James' Cofe Junior School | Voluntary Controlled School | Good | 0.53 KM |
| Azhar Academy Girls School | Other Independent School | Good | 0.54 KM |
| Odessa Infant School | Community School | Good | 0.60 KM |
Images
Nearby Streets
| Name | Average Price | Average Sqft | Distance |
|---|---|---|---|
| Crownage Close | £ 0 | 0 | 0.00 KM |
| Adler Court | £ 0 | 0 | 0.00 KM |
| Ferns Road | £ 0 | 0 | 0.00 KM |
| Louise Road | £ 399,995 | 0 | 0.00 KM |
| Arthur Horsley Walk | £ 517,488 | 0 | 0.00 KM |
Nearby Transport
| Name | NLC | TLC | Distance |
|---|---|---|---|
| Forest Gate | 6876 | FOG | 1.08 KM |
| Maryland | 6970 | MYL | 1.10 KM |
| Wanstead Park | 7408 | WNP | 1.39 KM |
| Stratford | 6969 | SRA | 2.14 KM |
| West Ham | 7474 | WEH | 2.15 KM |
Nearby Listings
| Address | Price | Type | Score | Distance |
|---|---|---|---|---|
| Malcolm Court, Forest Gate, E7 9DJ | £ 310,000 | BUY | 5 / 10 | 0.00 KM |
| Atherton Road, Forest Gate, E7 | £ 850,000 | BUY | 6 / 10 | 0.09 KM |
| Atherton Road, Forest Gate, E7 | £ 900,000 | BUY | 6 / 10 | 0.09 KM |
| Aylesbury Close, Forest gate, E7 | £ 290,000 | BUY | Unknown | 0.11 KM |
| Romford Road, Forest Gate | £ 315,000 | BUY | 5 / 10 | 0.12 KM |
Nearby Properties
| Address | Price | Distance |
|---|---|---|
| 3 Aylesbury Close | £ 200,000 | 0.04 KM |
| 28 Aylesbury Close | £ 20,000 | 0.04 KM |
| 23 Aylesbury Close | £ 255,000 | 0.04 KM |
| 24 Aylesbury Close | £ 225,000 | 0.04 KM |
| 1 Aylesbury Close | £ 149,995 | 0.04 KM |