Hawthorne Road, Steeton,
WI

Hawthorne Road, Steeton,

By Wilman & Lodge

£ 335,000

Reviews

3 out of 5 stars

Wilman & Lodge says ..

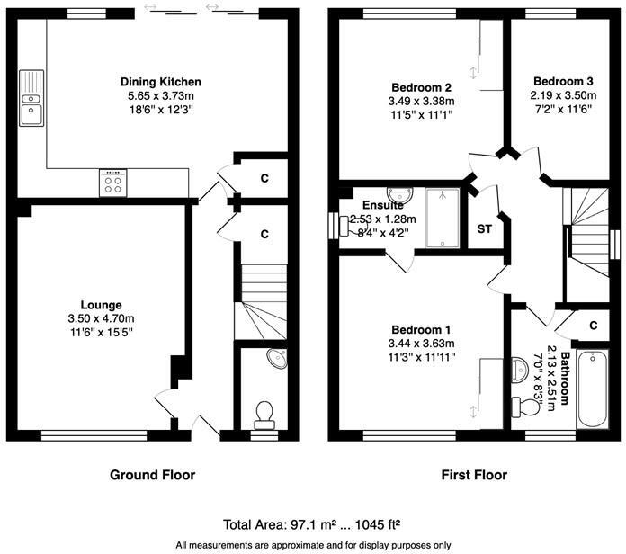
Wilman & Lodge are thrilled to present to the open market this STUNNING THREE-BEDROOM DETACHED HOUSE, meticulously CONSTRUCTED TO THE HIGHEST STANDARDS by the renowned builders, Redrow Homes. Thoughtfully designed with an effortless flow, this property is IDEAL FOR A WIDE RANGE OF BUYERS.

Property Oracle says ..

This three-bedroom detached house in Steeton, Bradford, is located in a desirable area with good access to local amenities and schools. The property is in excellent condition, having been recently updated and well-maintained. The images show a modern, well-presented interior with a contemporary kitchen and bathrooms. There is a good-sized garden, adding to the overall appeal. While the list price is slightly above the average for the area, the property’s condition, size, and features justify the higher cost. The average price per square foot in the area is £309, and while this property is slightly above average in price, this is offset by the superior condition and additional features.

Therefore, we give this property 7 / 10. *Disclaimer: This is our option and does constitute a recommendation or financial advice. Do your own research. *

Price
7
Condition
9
Location
8
Land
7
Bedrooms
3
Bathrooms
2
Sqft (est)
802.77
Lot (est)
1,045.00

The heatmap indicates the level of crime in the area. The color of the heatmap indicates the crime severity and recency.

Metrics Year-on-Year

Average area value
422,431.00 £
Increased by 29.36 %
from 326,550.00 £
Est sale value
548,291.91 £
Increased by 163.71 %
from 207,917.43 £
Average area rental value
902.00 £/mo
Decreased by 19.75 %
from 1,124.00 £/mo
Est letting value
802.77 £/mo
from 0.00 £/mo
Est rental Yield
2.56 %
Decreased by 38.01 %
from 4.13 %
Crime Rate
3.00 %
Unchanged by 0.00 %
from 3.00 %

Agent Activity

  • Wilman & Lodge created the listing.

Nearby Schools

NameTypeOfstedDistance
Steeton Primary SchoolCommunity SchoolGood0.66 KM
Daisy Chain Children'S CentreChildren's Centre Linked Site1.91 KM
Silsden Primary SchoolCommunity SchoolGood2.13 KM
Eastburn Junior And Infant SchoolCommunity SchoolGood2.28 KM
Kildwick Church Of England Voluntary Controlled Primary SchoolVoluntary Controlled SchoolOutstanding3.56 KM

Images

PHOTO-2025-01-21-15-48-40 copy.jpg PHOTO-2025-01-21-15-48-15.jpg PHOTO-2025-01-21-15-48-16.jpg PHOTO-2025-01-21-15-48-14.jpg PHOTO-2025-01-21-15-48-23.jpg PHOTO-2025-01-21-15-48-35.jpg PHOTO-2025-01-21-15-48-27.jpg PHOTO-2025-01-21-15-48-19.jpg PHOTO-2025-01-21-15-48-31.jpg PHOTO-2025-01-21-15-48-20.jpg PHOTO-2025-01-21-15-48-25.jpg PHOTO-2025-01-21-15-48-30.jpg PHOTO-2025-01-21-15-48-21.jpg PHOTO-2025-01-21-15-48-33.jpg PHOTO-2025-01-21-15-48-22.jpg PHOTO-2025-01-21-15-48-29.jpg PHOTO-2025-01-21-15-48-17.jpg PHOTO-2025-01-21-15-48-32.jpg PHOTO-2025-01-21-15-48-24.jpg PHOTO-2025-01-21-15-48-26.jpg PHOTO-2025-01-21-15-48-28.jpg PHOTO-2025-01-21-15-48-13.jpg PHOTO-2025-01-21-15-48-18.jpg

Nearby Streets

NameAverage PriceAverage SqftDistance
Ashgrove £ 169,95000.00 KM
Summer Hill Lane £ 000.00 KM
Ramstone Close £ 000.00 KM
Riverside Road £ 000.00 KM
Park Green £ 325,00000.00 KM

Nearby Transport

NameNLCTLCDistance
Steeton And Silsden8469SON0.86 KM
Keighley8468KEI6.55 KM
Cononley8470CEY6.94 KM

Nearby Listings

AddressPriceTypeScoreDistance
Hawthorne Road, Steeton, £ 335,000BUY7 / 100.00 KM
77 Hawthorne Road, Steeton BD20 6FJ £ 239,950BUY6 / 100.05 KM
Willow Avenue, Steeton, BD20 £ 128,000BUYUnknown0.13 KM
Willow Avenue, Steeton £ 130,000BUYUnknown0.14 KM
Elmsley Street, Steeton, BD20 £ 280,000BUY7 / 100.21 KM

Nearby Properties

AddressPriceDistance
9 David Emmott Walk £ 164,9500.07 KM
29 Willow Avenue £ 128,0000.13 KM
37 Halsteads Way £ 180,0000.15 KM
36 Halsteads Way £ 135,0000.15 KM
42 Halsteads Way £ 133,0000.15 KM