MARLDON GROVE MARLDON PAIGNTON
By Eric Lloyd & Co
£ 299,000
Reviews
3 out of 5 stars
Eric Lloyd & Co says ..
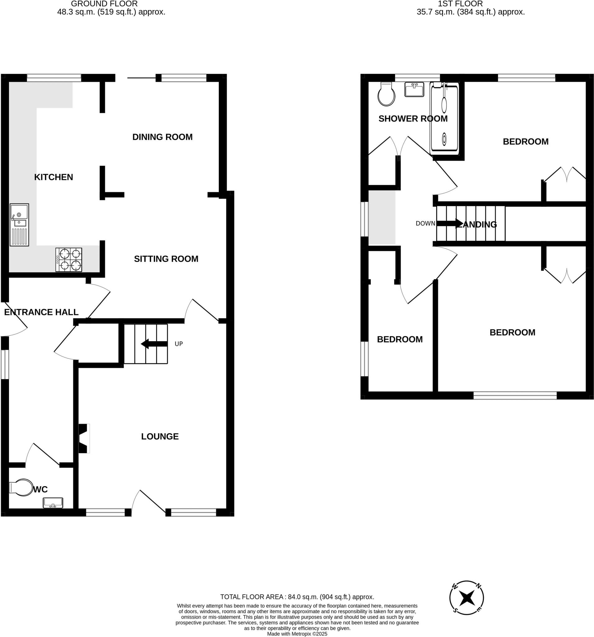
A well presented, THREE BEDROOM, END OF TERRACE HOUSE with parking and single garage, located in a popular private road of similar houses and bungalows, overlooking a central green, enjoying a pleasant open outlook. Located in Marldon Village this super home is ideally placed, just a short walk...
Property Oracle says ..
This end-of-terrace property is located in the village of Marldon, within South Hams, Devon. It features three bedrooms and one bathroom. The property benefits from a garden and appears to be in generally good condition, with a modern bathroom and kitchen. Marldon Church Of England Primary School is nearby. Paignton is 4.58 KM away, offering transportation links. The list price is £299,000.
Therefore, we give this property 7 / 10. *Disclaimer: This is our option and does constitute a recommendation or financial advice. Do your own research. *
- Price
- 7
- Condition
- 7
- Location
- 7
- Land
- 7
- Bedrooms
- 3
- Bathrooms
- 1
The heatmap indicates the level of crime in the area. The color of the heatmap indicates the crime severity and recency.
Metrics Year-on-Year
- Average area value
- 216,225.00 £Decreased by 4.32 %
- Average area rental value
- 863.00 £/moDecreased by 37.87 %
- Est rental Yield
- 4.79 %Decreased by 35.09 %
- Crime Rate
- 10.00 %Unchanged by 0.00 %
Agent Activity
Eric Lloyd & Co created the listing.
Nearby Schools
| Name | Type | Ofsted | Distance |
|---|---|---|---|
| Marldon Church Of England Primary School | Voluntary Aided School | Good | 0.06 KM |
| Kings Ash Academy | Academy Converter | Good | 2.11 KM |
| Collaton St Mary Church Of England Primary School | Academy Converter | 3.10 KM | |
| Paignton Academy | Academy Converter | Good | 3.42 KM |
| Cambian Devon School | Other Independent Special School | Good | 3.66 KM |
Images
Nearby Streets
| Name | Average Price | Average Sqft | Distance |
|---|---|---|---|
| Love Lane | £ 0 | 0 | 0.00 KM |
| Parkfield Close | £ 0 | 0 | 0.00 KM |
| Moor View Crescent | £ 625,000 | 0 | 0.00 KM |
| Hellevoetsluis Way | £ 0 | 0 | 0.00 KM |
| Lower Westerland Barns | £ 0 | 0 | 0.00 KM |
Nearby Transport
| Name | NLC | TLC | Distance |
|---|---|---|---|
| Paignton | 3427 | PGN | 4.58 KM |
| Torre | 3432 | TRR | 6.08 KM |
| Torquay | 3434 | TQY | 6.19 KM |
| Newton Abbot | 3426 | NTA | 7.97 KM |
Nearby Listings
| Address | Price | Type | Score | Distance |
|---|---|---|---|---|
| MARLDON GROVE MARLDON PAIGNTON | £ 299,000 | BUY | 7 / 10 | 0.00 KM |
| Marldon Cross Hill, Marldon, Paignton | £ 325,000 | BUY | 7 / 10 | 0.06 KM |
| Marldon Cross Hill, Marldon, TQ3 | £ 365,000 | BUY | 6 / 10 | 0.07 KM |
| Marldon Grove, Marldon, Paignton | £ 289,950 | BUY | 5 / 10 | 0.10 KM |
| Marldon Grove, Marldon, Paignton | £ 275,000 | BUY | Unknown | 0.12 KM |
Nearby Properties
| Address | Price | Distance |
|---|---|---|
| Wisteria Cottage | £ 247,500 | 0.07 KM |
| Kiln Cottage | £ 350,000 | 0.07 KM |
| Honeysuckle Cottage | £ 410,000 | 0.07 KM |
| 9 Marldon Grove | £ 200,000 | 0.12 KM |
| 15 Marldon Grove | £ 167,500 | 0.12 KM |