Keating Estates says ..
Keating Estates are proud to bring to market this three double bedroom garden flat moments from Balham High Street on a quiet residential street.
Property Oracle says ..
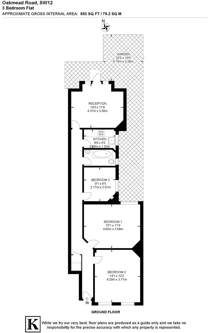
This property is a three-bedroom house located in the Nightingale area of Wandsworth, London. The property benefits from being close to Balham station, providing convenient access to public transport. While the images show a small garden, it appears somewhat overgrown and in need of maintenance. The interior appears dated and could benefit from some modernisation. The kitchen and bathroom look particularly tired. The property is listed at £650,000. Considering comparable properties in the area, this price seems reasonable, although potentially slightly on the higher end, depending on the condition of the property after a full survey.
Therefore, we give this property 6 / 10. *Disclaimer: This is our option and does constitute a recommendation or financial advice. Do your own research. *
- Price
- 7
- Condition
- 6
- Location
- 8
- Land
- 4
- Bedrooms
- 3
- Bathrooms
- 1
- Sqft (est)
- 852.50
The heatmap indicates the level of crime in the area. The color of the heatmap indicates the crime severity and recency.
Metrics Year-on-Year
- Average area value
- 1,130,667.00 £Increased by 13.32 %
- Est sale value
- 1,127,857.50 £Increased by 91.74 %
- Average area rental value
- 2,767.00 £/moIncreased by 5.85 %
- Est letting value
- 2,557.50 £/moIncreased by 200.00 %
- Est rental Yield
- 2.94 %Decreased by 6.37 %
- Crime Rate
- 43.00 %Unchanged by 0.00 %
Agent Activity
Keating Estates created the listing.
Nearby Schools
| Name | Type | Ofsted | Distance |
|---|---|---|---|
| Ravenstone Primary School | Academy Converter | 0.24 KM | |
| Trinity St Mary'S Cofe Primary School | Voluntary Aided School | Good | 0.42 KM |
| Eveline Day School | Other Independent School | 0.43 KM | |
| Chestnut Grove School | Academy Converter | Good | 0.50 KM |
| Balham Nursery School | Local Authority Nursery School | Outstanding | 0.53 KM |
Images
Nearby Streets
| Name | Average Price | Average Sqft | Distance |
|---|---|---|---|
| Falcon Mews | £ 699,950 | 0 | 0.00 KM |
| Oakmead Road | £ 0 | 0 | 0.00 KM |
| Oakmead Mews | £ 0 | 0 | 0.00 KM |
| Norgrove Street | £ 0 | 0 | 0.00 KM |
| Caister Mews | £ 0 | 0 | 0.00 KM |
Nearby Transport
| Name | NLC | TLC | Distance |
|---|---|---|---|
| Balham | 5399 | BAL | 0.14 KM |
| Wandsworth Common | 5395 | WSW | 1.38 KM |
| Tooting | 5389 | TOO | 2.73 KM |
| Streatham Hill | 5435 | SRH | 2.74 KM |
| Streatham | 5383 | STE | 2.88 KM |
Nearby Listings
| Address | Price | Type | Score | Distance |
|---|---|---|---|---|
| Oakmead Road, Balham, London, SW12 | £ 650,000 | BUY | Unknown | 0.02 KM |
| Oakmead Road, Balham | £ 650,000 | BUY | Unknown | 0.02 KM |
| Oakmead Road, London, SW12 | £ 750,000 | BUY | 7 / 10 | 0.02 KM |
| Oakmead Road, London, SW12 | £ 725,000 | BUY | 7 / 10 | 0.02 KM |
| Oakmead Road, Balham | £ 650,000 | BUY | Unknown | 0.04 KM |
Nearby Properties
| Address | Price | Distance |
|---|---|---|
| 58 Oakmead Road | £ 180,000 | 0.05 KM |
| 52a Oakmead Road | £ 400,000 | 0.05 KM |
| 70 Oakmead Road | £ 530,000 | 0.05 KM |
| 70b Oakmead Road | £ 600,000 | 0.05 KM |
| 70c Oakmead Road | £ 445,000 | 0.05 KM |