Chancellors says ..
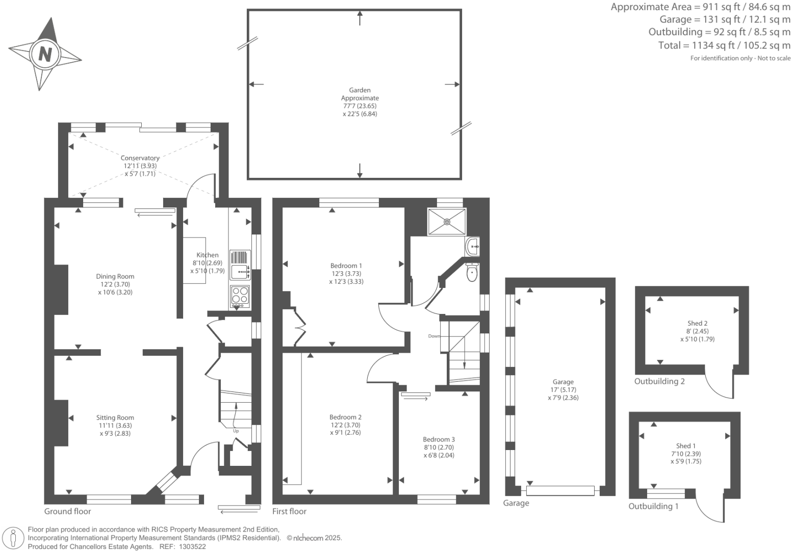
Chancellors are delighted to present this three bedroom semi-detached house with excellent scope to put your own stamp. The property has no chain and located in the highly sought after area of Kennington. Call today to arrange your viewing.
Property Oracle says ..
Therefore, we give this property 6 / 10. *Disclaimer: This is our option and does constitute a recommendation or financial advice. Do your own research. *
- Price
- 6
- Condition
- 4
- Location
- 7
- Land
- 7
- Bedrooms
- 3
- Bathrooms
- 1
The heatmap indicates the level of crime in the area. The color of the heatmap indicates the crime severity and recency.
Metrics Year-on-Year
- Average area value
- 260,500.00 £Increased by 6.21 %
- Average area rental value
- 1,100.00 £/moIncreased by 0.92 %
- Est rental Yield
- 5.07 %Decreased by 4.88 %
- Crime Rate
- 14.00 %Unchanged by 0.00 %
from 245,272.00 £
from 1,090.00 £/mo
from 5.33 %
from 14.00 %
Agent Activity
Chancellors marked this listing as sold.
Chancellors created the listing.
Nearby Schools
| Name | Type | Ofsted | Distance |
|---|---|---|---|
| St Swithun'S Cofe Primary School | Voluntary Controlled School | Good | 0.63 KM |
| Rosehill-Littlemore Children And Family Centre | Children's Centre | 1.75 KM | |
| Rose Hill Primary School | Academy Sponsor Led | 1.94 KM | |
| The Iffley Academy | Academy Special Converter | Outstanding | 2.12 KM |
| New Hinksey Church Of England Primary School | Voluntary Controlled School | Good | 2.29 KM |
Images
Nearby Streets
| Name | Average Price | Average Sqft | Distance |
|---|---|---|---|
| Court Farm Road | £ 0 | 0 | 0.00 KM |
| Bluebell Ride | £ 190,000 | 0 | 0.00 KM |
| Northampton Road | £ 0 | 0 | 0.00 KM |
| Parkehill | £ 0 | 0 | 0.00 KM |
| Henry Avery Avenue | £ 0 | 0 | 0.00 KM |
Nearby Transport
| Name | NLC | TLC | Distance |
|---|---|---|---|
| Radley | 3118 | RAD | 3.75 KM |
| Oxford | 3115 | OXF | 4.54 KM |
| Culham | 3107 | CUM | 7.38 KM |
| Appleford | 3109 | APF | 8.86 KM |
| Oxford Parkway | 3121 | OXP | 9.90 KM |
Nearby Listings
| Address | Price | Type | Score | Distance |
|---|---|---|---|---|
| Kennington, Oxford, OX1 | £ 375,000 | BUY | 6 / 10 | 0.00 KM |
| Kennington, Oxford, OX1 | £ 600,000 | BUY | Unknown | 0.08 KM |
| Upper Road, Kennington, Oxford, Oxfordshire, OX1 | £ 450,000 | BUY | 7 / 10 | 0.09 KM |
| Upper Road, Kennington | £ 455,000 | BUY | 7 / 10 | 0.12 KM |
| Kennington, Oxford, OX1 | £ 425,000 | BUY | 5 / 10 | 0.14 KM |
Nearby Properties
| Address | Price | Distance |
|---|---|---|
| 6 Bagley Close | £ 420,000 | 0.08 KM |
| 16 Bagley Close | £ 312,000 | 0.08 KM |
| 21 Bagley Close | £ 650,000 | 0.08 KM |
| 9 Bagley Close | £ 468,000 | 0.08 KM |
| 14 Bagley Close | £ 418,000 | 0.08 KM |