Heathermount, Bracknell, Berkshire, RG12
By Bridges Estate Agents
£ 625,000
Reviews
3 out of 5 stars
Bridges Estate Agents says ..
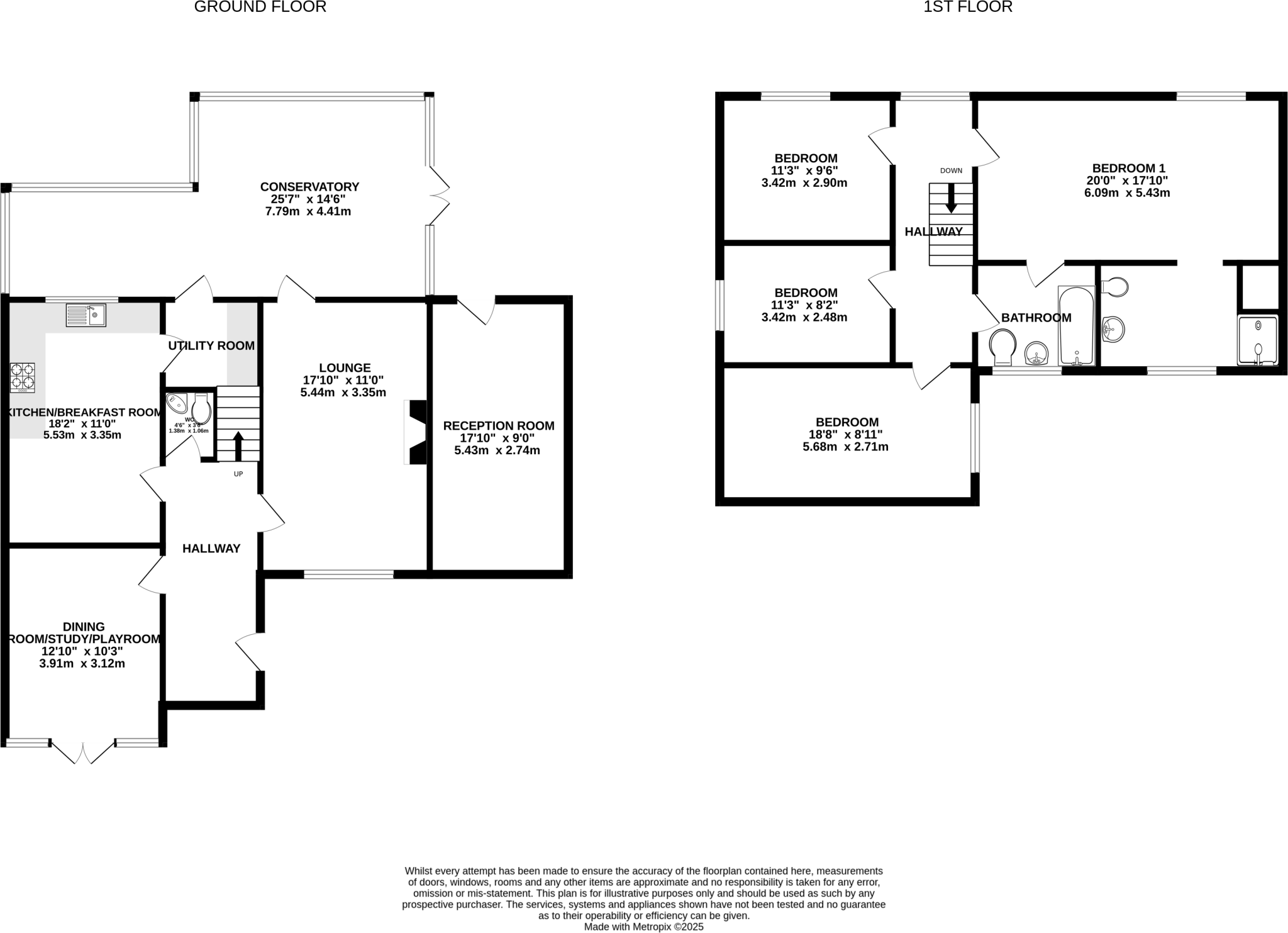
The property offers a spacious and versatile living space with plenty of potential. Spanning over 2000 square feet, it really is the perfect family home. Located in a prime location with convenient access to public transport links, local amenities, and nearby schools. This property benefits ...
Property Oracle says ..
The property is located in Harmans Water, Bracknell, which benefits from being close to local shops, schools (Harmans Water Primary School is 0.23km away and is rated as good by Ofsted), and transport links (Martins Heron train station is 1.16km away). The M3 and M4 motorways are also easily accessible. Based on the provided images, the property appears to be in generally good condition, although some minor cosmetic updates or repairs may be needed in certain areas. The kitchen, in particular, could benefit from some modernisation. The property includes a garden, although it currently appears somewhat unkempt and in need of landscaping. Considering the property’s size (1,657.17 sqft), location, and condition, the list price of £625,000 seems relatively high compared to the average price per sqft in the area (£269.00). While similar properties in the area are listed at similar prices, this property may need some investment to reach its full potential. A more accurate valuation would require a physical inspection and a more detailed understanding of the property’s features and condition.
Therefore, we give this property 6 / 10. *Disclaimer: This is our option and does constitute a recommendation or financial advice. Do your own research. *
- Price
- 6
- Condition
- 7
- Location
- 8
- Land
- 4
- Bedrooms
- 4
- Bathrooms
- 3
- Sqft (est)
- 1,657.17
The heatmap indicates the level of crime in the area. The color of the heatmap indicates the crime severity and recency.
Metrics Year-on-Year
- Average area value
- 456,250.00 £Increased by 6.24 %
- Est sale value
- 790,470.09 £Increased by 35.51 %
- Average area rental value
- 1,660.00 £/moDecreased by 3.60 %
- Est letting value
- 1,657.17 £/moUnchanged by 0.00 %
- Est rental Yield
- 4.37 %Decreased by 9.15 %
- Crime Rate
- 3.00 %Unchanged by 0.00 %
Agent Activity
Bridges Estate Agents created the listing.
Nearby Schools
| Name | Type | Ofsted | Distance |
|---|---|---|---|
| Harmans Water Primary School | Community School | Good | 0.23 KM |
| The Sycamores Children'S Centre | Children's Centre Linked Site | 0.28 KM | |
| Crown Wood Primary School | Academy Converter | 1.05 KM | |
| Holly Spring Primary School | Community School | Good | 1.15 KM |
| St Joseph'S Catholic Primary School, Bracknell | Voluntary Aided School | Outstanding | 1.16 KM |
Images
Nearby Streets
| Name | Average Price | Average Sqft | Distance |
|---|---|---|---|
| Hambleden Court | £ 0 | 0 | 0.00 KM |
| Abingdon Close | £ 0 | 0 | 0.00 KM |
| Martins Lane | £ 0 | 0 | 0.00 KM |
| Savernake Park | £ 0 | 0 | 0.00 KM |
| Brants Bridge Apartments | £ 0 | 0 | 0.00 KM |
Nearby Transport
| Name | NLC | TLC | Distance |
|---|---|---|---|
| Martins Heron | 5692 | MAO | 1.16 KM |
| Bracknell | 5693 | BCE | 2.04 KM |
| Ascot (Berks) | 5666 | ACT | 6.52 KM |
| Bagshot | 5681 | BAG | 6.87 KM |
| Camberley | 5682 | CAM | 7.80 KM |
Nearby Listings
| Address | Price | Type | Score | Distance |
|---|---|---|---|---|
| Heathermount, Bracknell, Berkshire, RG12 | £ 625,000 | BUY | 6 / 10 | 0.00 KM |
| Heathermount, Bracknell | £ 625,000 | BUY | 6 / 10 | 0.04 KM |
| Heathermount, Bracknell, Berkshire, RG12 | £ 625,000 | BUY | 6 / 10 | 0.04 KM |
| Thornhill, Bracknell, Berkshire, RG12 | £ 175,000 | BUY | 7 / 10 | 0.07 KM |
| Woodmere, Bracknell, Berkshire, RG12 | £ 190,000 | BUY | 6 / 10 | 0.08 KM |
Nearby Properties
| Address | Price | Distance |
|---|---|---|
| 16 Woodmere | £ 460,000 | 0.07 KM |
| 42 Woodmere | £ 245,000 | 0.07 KM |
| 8 Woodmere | £ 190,000 | 0.07 KM |
| 36 Woodmere | £ 200,000 | 0.07 KM |
| 18 Woodmere | £ 355,000 | 0.07 KM |