DA
Oseney Crescent, Kentish Town, London, NW5
By David Astburys
£ 850,000
Reviews
4 out of 5 stars
David Astburys says ..
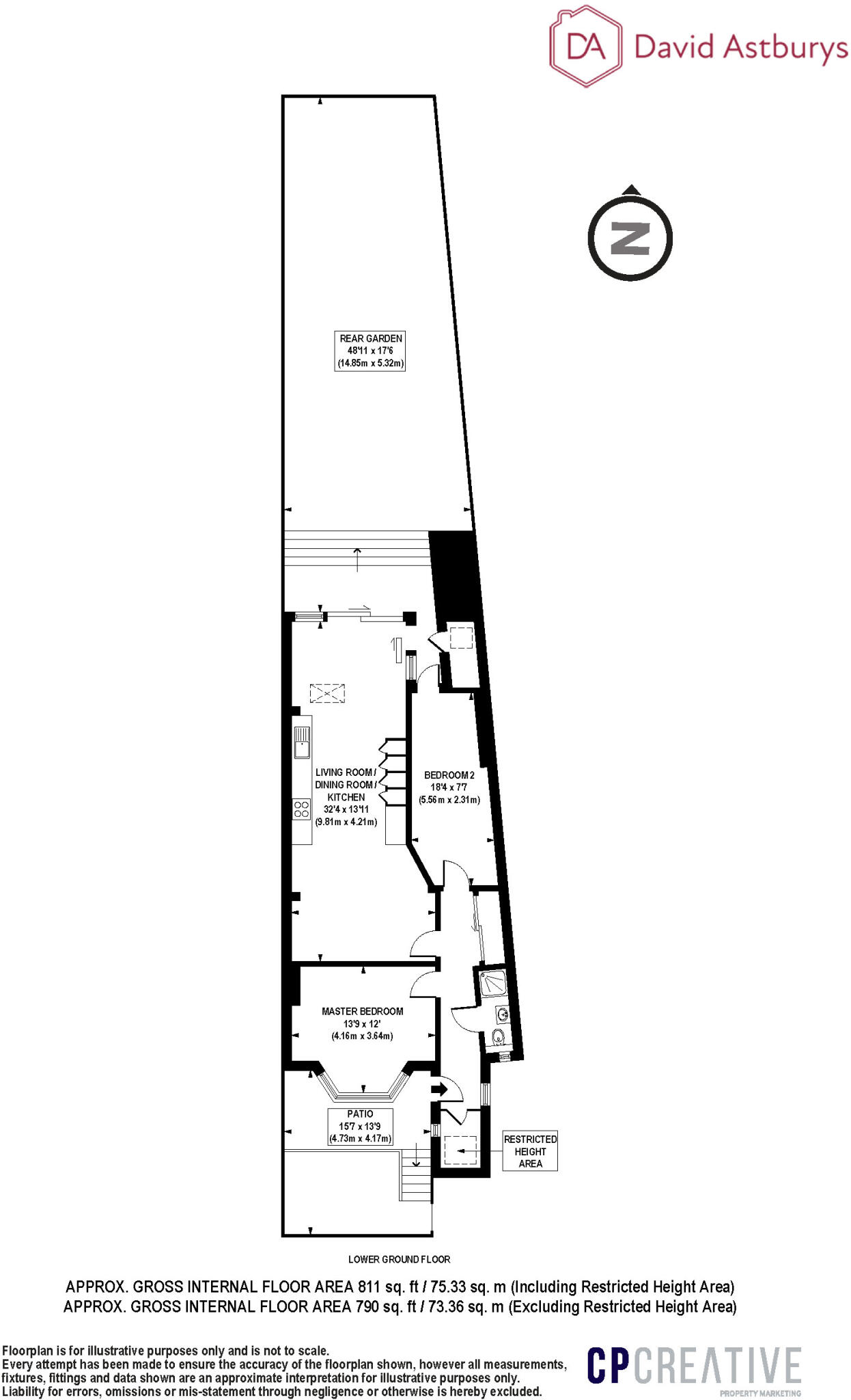
Period Conversion | Two Bedrooms | Shared Garden | Share Of Freehold | Private Entrance | Excellent Entertaining Space | Excellent Location
Property Oracle says ..
Therefore, we give this property 8 / 10. *Disclaimer: This is our option and does constitute a recommendation or financial advice. Do your own research. *
- Price
- 9
- Condition
- 8
- Location
- 9
- Land
- 7
- Bedrooms
- 2
- Bathrooms
- 1
- Sqft (est)
- 1,808.23
The heatmap indicates the level of crime in the area. The color of the heatmap indicates the crime severity and recency.
Metrics Year-on-Year
- Average area value
- 1,296,250.00 £Increased by 47.94 %
- Est sale value
- 2,750,317.83 £Increased by 136.18 %
- Average area rental value
- 2,707.00 £/moIncreased by 9.24 %
- Est letting value
- 5,424.69 £/moIncreased by 200.00 %
- Est rental Yield
- 2.51 %Decreased by 25.96 %
- Crime Rate
- 2.00 %Unchanged by 0.00 %
from 876,227.00 £
from 1,164,500.12 £
from 2,478.00 £/mo
from 1,808.23 £/mo
from 3.39 %
from 2.00 %
Agent Activity
David Astburys created the listing.
Nearby Schools
| Name | Type | Ofsted | Distance |
|---|---|---|---|
| The Camden School For Girls | Voluntary Aided School | Outstanding | 0.20 KM |
| Torriano Primary School | Community School | Outstanding | 0.27 KM |
| Elfrida Rathbone Camden - Leighton College | Special Post 16 Institution | 0.29 KM | |
| Kentish Town Church Of England Primary School | Voluntary Aided School | Outstanding | 0.58 KM |
| Agar Children'S Centre | Children's Centre | 0.67 KM |
Images
Nearby Streets
| Name | Average Price | Average Sqft | Distance |
|---|---|---|---|
| Northpoint Square | £ 725,000 | 0 | 0.00 KM |
| Hammond Street | £ 975,000 | 0 | 0.00 KM |
| Camden Mews | £ 1,802,857 | 0 | 0.00 KM |
| Milburn Lane | £ 0 | 0 | 0.00 KM |
| Reed's Place | £ 0 | 0 | 0.00 KM |
Nearby Transport
| Name | NLC | TLC | Distance |
|---|---|---|---|
| Kentish Town | 1553 | KTN | 0.73 KM |
| Camden Road | 1440 | CMD | 0.82 KM |
| Kentish Town West | 1449 | KTW | 1.37 KM |
| Upper Holloway | 1524 | UHL | 1.84 KM |
| St Pancras | 1555 | STP | 1.89 KM |
Nearby Listings
| Address | Price | Type | Score | Distance |
|---|---|---|---|---|
| Oseney Crescent, Kentish Town, London, NW5 | £ 850,000 | BUY | 8 / 10 | 0.00 KM |
| Oseney Crescent, London, NW5 | £ 800,000 | BUY | 7 / 10 | 0.00 KM |
| Oseney Crescent, London, NW5 | £ 350,000 | BUY | 6 / 10 | 0.01 KM |
| Oseney Crescent, Kentish Town, NW5 | £ 900,000 | BUY | 8 / 10 | 0.02 KM |
| Oseney Crescent | £ 530,000 | BUY | 6 / 10 | 0.04 KM |
Nearby Properties
| Address | Price | Distance |
|---|---|---|
| 23c Oseney Crescent | £ 470,000 | 0.00 KM |
| 27a Oseney Crescent | £ 398,000 | 0.00 KM |
| 7b Oseney Crescent | £ 752,800 | 0.00 KM |
| 3 Oseney Crescent | £ 233,000 | 0.00 KM |
| 17d Oseney Crescent | £ 295,000 | 0.01 KM |