Upload Abode says ..
Discover the perfect setting for your family`s next chapter in this splendid three-bedroom residence, offering a seamless blend of contemporary design and comfortable living. With a prime location in Hamilton, South Lanarkshire.
Property Oracle says ..
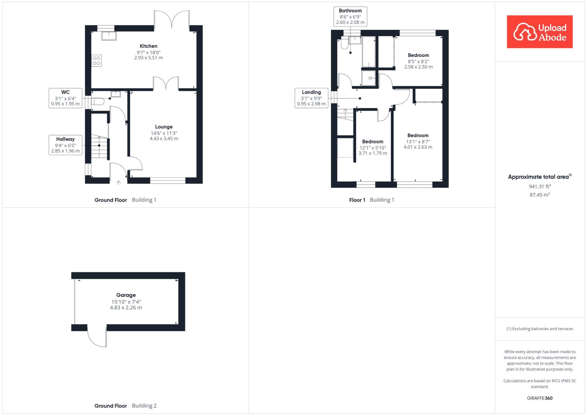
This property is a 3-bedroom, 1-bathroom house located in Hamilton, South Lanarkshire. Based on the provided images, the property appears to be in good condition with a modern kitchen and recently updated interiors. The property includes a relatively small garden with a decked area. The list price is significantly lower than the average price for the area, but this may be due to the smaller size of the property compared to the average. The location is close to several train stations, making it convenient for commuters. More information on local schools and amenities would be needed for a more comprehensive location assessment.
Therefore, we give this property 7 / 10. *Disclaimer: This is our option and does constitute a recommendation or financial advice. Do your own research. *
- Price
- 8
- Condition
- 9
- Location
- 7
- Land
- 6
- Bedrooms
- 3
- Bathrooms
- 1
- Sqft (est)
- 810.20
- Lot (est)
- 941.30
The heatmap indicates the level of crime in the area. The color of the heatmap indicates the crime severity and recency.
Metrics Year-on-Year
- Average area value
- 300,000.00 £Decreased by 54.85 %
- Est sale value
- 412,391.80 £Increased by 92.08 %
- Average area rental value
- 1,007.00 £/moDecreased by 25.41 %
- Est letting value
- 810.20 £/mo
- Est rental Yield
- 4.03 %Increased by 65.16 %
- Crime Rate
- 0.00 %
Agent Activity
Upload Abode created the listing.
Images
Nearby Streets
| Name | Average Price | Average Sqft | Distance |
|---|---|---|---|
| Fruin Rise | £ 0 | 0 | 0.00 KM |
| Iona Ridge | £ 179,995 | 0 | 0.00 KM |
| Torranyard Terrace | £ 137,500 | 0 | 0.00 KM |
| Mennock Court | £ 0 | 0 | 0.00 KM |
| Arisaig Grove | £ 0 | 0 | 0.00 KM |
Nearby Transport
| Name | NLC | TLC | Distance |
|---|---|---|---|
| Hamilton West | 9727 | HNW | 3.37 KM |
| Blantyre | 9716 | BLT | 3.42 KM |
| Hamilton Central | 9726 | HNC | 4.90 KM |
| Uddingston | 9776 | UDD | 6.31 KM |
| Newton (Lanark) | 9774 | NTN | 8.01 KM |
Nearby Listings
| Address | Price | Type | Score | Distance |
|---|---|---|---|---|
| Aqua Avenue, Hamilton | £ 220,000 | BUY | 7 / 10 | 0.00 KM |
| Aqua Avenue, Hamilton | £ 155,000 | BUY | 5 / 10 | 0.01 KM |
| Bourtree Road, Hamilton, South Lanarkshire, ML3 | £ 190,000 | BUY | 6 / 10 | 0.07 KM |
| Bourtree Road, Hamilton, Glasgow | £ 180,000 | BUY | 6 / 10 | 0.17 KM |
| Swift Bank, Hamilton | £ 198,000 | BUY | 7 / 10 | 0.20 KM |