Aughton Park Drive, Aughton
By Arnold & Phillips
£ 250,000
Reviews
2 out of 5 stars
Arnold & Phillips says ..
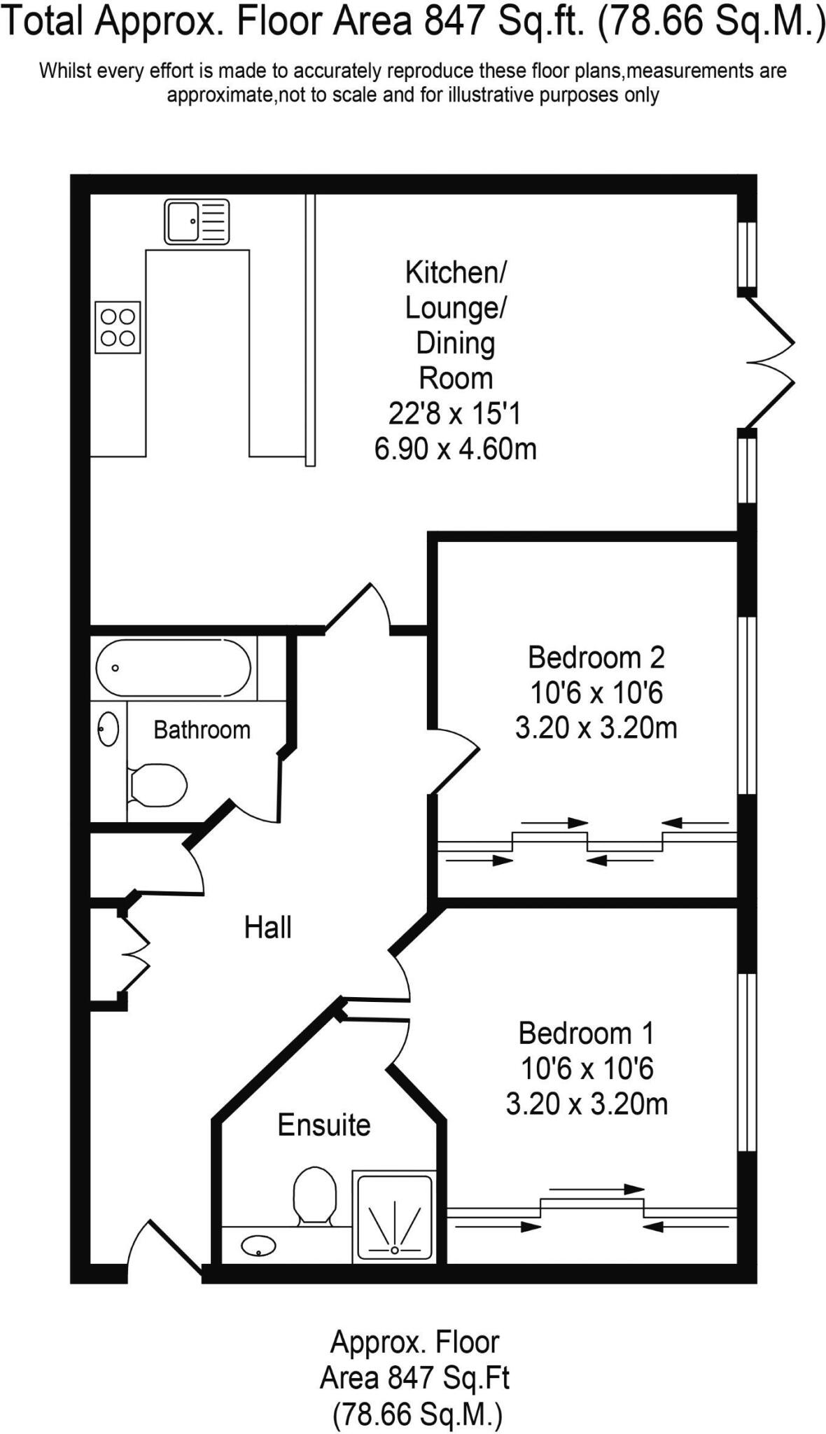
Arnold and Phillips are delighted to present this beautifully appointed two-bedroom top-floor apartment, set within the highly regarded Hampton Court development along Aughton Park Drive in the desirable area of Aughton, West Lancs. Ideal for those seeking a blend of contemporary convenience a...
Property Oracle says ..
This two-bedroom apartment is situated in Aughton, a sought-after area in West Lancashire. The property benefits from a modern and well-maintained interior, as evident in the provided photographs. The apartment is conveniently located near Aughton Park train station, offering easy access to commuting options. Several well-regarded schools are also within a reasonable distance, making it an attractive option for families. The apartment’s interior is light, spacious, and features modern fittings and fixtures. While the precise square footage of the apartment is given, the absence of plot size information limits a thorough assessment of the land included. However, it is important to note that this is a flat, not a house, meaning its land area is necessarily limited. The list price of £250,000 aligns with other apartments for sale in the area, suggesting it is fairly priced within the current market. Overall, this property presents a comfortable and well-located option for buyers looking for a modern apartment in a convenient location.
Therefore, we give this property 5 / 10. *Disclaimer: This is our option and does constitute a recommendation or financial advice. Do your own research. *
- Price
- 7
- Condition
- 8
- Location
- 7
- Land
- 1
- Bedrooms
- 2
- Bathrooms
- 2
- Sqft (est)
- 846.69
The heatmap indicates the level of crime in the area. The color of the heatmap indicates the crime severity and recency.
Metrics Year-on-Year
- Average area value
- 382,533.00 £Increased by 3.77 %
- Est sale value
- 311,581.92 £Increased by 5.44 %
- Average area rental value
- 1,090.00 £/moDecreased by 17.67 %
- Est letting value
- 846.69 £/moUnchanged by 0.00 %
- Est rental Yield
- 3.42 %Decreased by 20.65 %
- Crime Rate
- 1.00 %Unchanged by 0.00 %
Agent Activity
Arnold & Phillips created the listing.
Nearby Schools
| Name | Type | Ofsted | Distance |
|---|---|---|---|
| Pontville School | Other Independent Special School | Outstanding | 0.49 KM |
| St Bede'S Catholic High School | Voluntary Aided School | Good | 0.87 KM |
| Ormskirk St Anne'S Catholic Primary School | Voluntary Aided School | Good | 1.00 KM |
| Moorgate Nursery School & Children'S Centre | Children's Centre | 1.17 KM | |
| Moorgate Nursery School | Local Authority Nursery School | Outstanding | 1.17 KM |
Images
Nearby Streets
| Name | Average Price | Average Sqft | Distance |
|---|---|---|---|
| Beaumont Crescent | £ 175,000 | 0 | 0.00 KM |
| Carmel Close | £ 0 | 0 | 0.00 KM |
| Hilltop Walk | £ 0 | 0 | 0.00 KM |
| Hillside Avenue | £ 0 | 0 | 0.00 KM |
| Orchard View | £ 550,000 | 0 | 0.00 KM |
Nearby Transport
| Name | NLC | TLC | Distance |
|---|---|---|---|
| Aughton Park | 2215 | AUG | 0.32 KM |
| Town Green | 2283 | TWN | 1.94 KM |
| Ormskirk | 2281 | OMS | 1.98 KM |
| Maghull North | 6576 | MNS | 5.37 KM |
| New Lane | 2358 | NLN | 6.81 KM |
Nearby Listings
| Address | Price | Type | Score | Distance |
|---|---|---|---|---|
| Aughton Park Drive, Aughton | £ 250,000 | BUY | 5 / 10 | 0.00 KM |
| Aughton Park Drive, Aughton, L39 | £ 250,000 | BUY | 5 / 10 | 0.00 KM |
| Aughton Park Drive, Aughton L39 | £ 245,000 | BUY | Unknown | 0.00 KM |
| Aughton Park Drive, Aughton, L39 | £ 250,000 | BUY | 6 / 10 | 0.00 KM |
| Aughton Park Drive, Aughton | £ 320,000 | BUY | 7 / 10 | 0.06 KM |
Nearby Properties
| Address | Price | Distance |
|---|---|---|
| 21 Convent Close | £ 192,000 | 0.09 KM |
| 20 Convent Close | £ 244,500 | 0.09 KM |
| 29 Convent Close | £ 168,750 | 0.09 KM |
| 2 Convent Close | £ 157,000 | 0.09 KM |
| 6 Convent Close | £ 220,000 | 0.09 KM |