Keystone says ..
If you're in search of a cosy and convenient home, this fantastic two-bedroom property in Annbrook Road might be the perfect fit for you. Nestled in a cul-de-sac location, this property offers a blend of comfort and practicality, ideal for small families or couples. The comfortable loung...
Property Oracle says ..
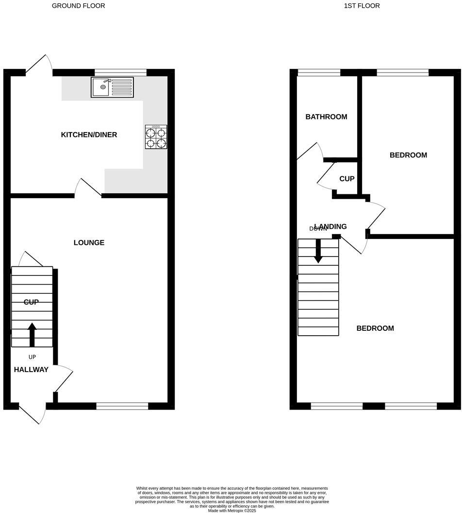
This end of terrace property is located in the Stoke Park area of Ipswich, Suffolk. The property benefits from being close to local schools such as Gusford Community Primary School (0.42km) and The Oaks Primary School (0.98km), which received an outstanding Ofsted rating. Transport links are also convenient, with Ipswich train station approximately 2.85km away. The property itself is a two-bedroom, one-bathroom end of terrace house with a small garden. Based on the images provided, the property appears to be well-maintained and recently updated, with a modern kitchen and bathroom. There is also a well-maintained garden and a substantial shed/summerhouse. The list price is £210,000, while the average price for properties in the area is £304,000, and the average price per sqft is £368. Considering the size of the property (250 sqft) and its location, the list price may appear slightly below average, but this could be due to the smaller than average plot size. More information on the property’s condition and plot size would be beneficial to provide a more comprehensive analysis.
Therefore, we give this property 6 / 10. *Disclaimer: This is our option and does constitute a recommendation or financial advice. Do your own research. *
- Price
- 7
- Condition
- 8
- Location
- 7
- Land
- 4
- Bedrooms
- 2
- Bathrooms
- 1
- Sqft (est)
- 250.00
The heatmap indicates the level of crime in the area. The color of the heatmap indicates the crime severity and recency.
Metrics Year-on-Year
- Average area value
- 243,333.00 £Decreased by 21.35 %
- Est sale value
- 82,000.00 £Increased by 25.67 %
- Average area rental value
- 935.00 £/moDecreased by 12.70 %
- Est letting value
- 250.00 £/mo
- Est rental Yield
- 4.61 %Increased by 11.08 %
- Crime Rate
- 4.00 %Unchanged by 0.00 %
Agent Activity
Keystone created the listing.
Nearby Schools
| Name | Type | Ofsted | Distance |
|---|---|---|---|
| Gusford Community Primary School | Academy Sponsor Led | Requires improvement | 0.42 KM |
| Hawthorn Children'S Centre | Children's Centre | 0.61 KM | |
| Willows Children'S Centre | Children's Centre | 0.89 KM | |
| The Oaks Primary School | Academy Converter | Outstanding | 0.98 KM |
| The Willows Primary School | Academy Converter | Requires improvement | 1.02 KM |
Images
Nearby Streets
| Name | Average Price | Average Sqft | Distance |
|---|---|---|---|
| Cambridge Drive | £ 240,000 | 0 | 0.00 KM |
| Grebe Close | £ 126,667 | 0 | 0.00 KM |
| Worsley Close | £ 0 | 0 | 0.00 KM |
| Pintail Close | £ 120,000 | 0 | 0.00 KM |
| Clump Field | £ 175,000 | 0 | 0.00 KM |
Nearby Transport
| Name | NLC | TLC | Distance |
|---|---|---|---|
| Ipswich | 7217 | IPS | 2.85 KM |
| Westerfield | 7226 | WFI | 6.77 KM |
| Derby Road (Ipswich) | 7212 | DBR | 6.89 KM |
Nearby Listings
| Address | Price | Type | Score | Distance |
|---|---|---|---|---|
| Annbrook Road, Ipswich | £ 210,000 | BUY | 6 / 10 | 0.00 KM |
| Annbrook Road, Ipswich | £ 240,000 | BUY | 6 / 10 | 0.06 KM |
| Sandpiper Road, Ipswich | £ 270,000 | BUY | 7 / 10 | 0.09 KM |
| Dawnbrook Close, Ipswich | £ 300,000 | BUY | 7 / 10 | 0.09 KM |
| Dawnbrook Close, Ipswich | £ 305,000 | BUY | Unknown | 0.10 KM |
Nearby Properties
| Address | Price | Distance |
|---|---|---|
| 1 Annbrook Road | £ 129,995 | 0.06 KM |
| 21 Annbrook Road | £ 139,950 | 0.06 KM |
| 4 Annbrook Road | £ 129,000 | 0.06 KM |
| 20 Annbrook Road | £ 120,000 | 0.06 KM |
| 12 Annbrook Road | £ 88,000 | 0.06 KM |