Lucas Lane, Plymouth, Devon
BR

Lucas Lane, Plymouth, Devon

By Bradleys

£ 260,000

Reviews

3 out of 5 stars

Bradleys says ..

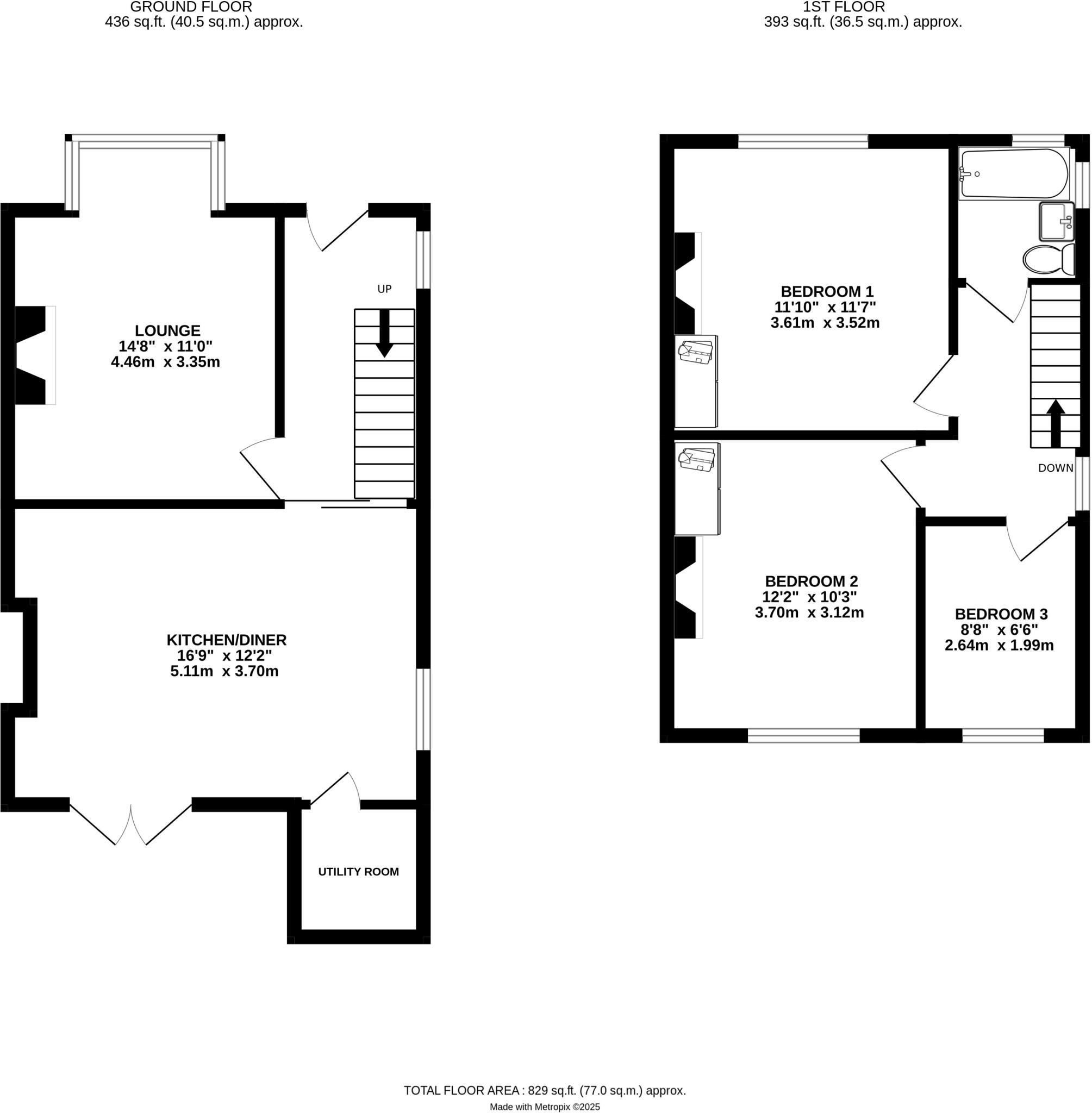
SOUTH FACING REAR GARDEN 3 bedroom semi detached house with kitchen diner, utility room, lounge and family bathroom. The property benefits from an enclosed south facing rear garden with a porcelain patio as well as internally being stylishly decorated with spacious rooms.

Property Oracle says ..

This three-bedroom semi-detached house in Plympton St Mary, Plymouth is listed at £260,000. The property boasts a modern kitchen and bathroom, and benefits from a well-maintained garden. While the plot size is not specified, the garden appears sizable in the provided images. The location is convenient, with nearby schools and Plymouth city centre within reasonable distance. However, the average house price in the area is higher than the list price, and the average price per square foot is also higher than what this property offers. Further, the property is smaller than the average size for the area. This suggests that the price may not fully reflect the market value, although the property itself appears to be in good condition.

Therefore, we give this property 7 / 10. *Disclaimer: This is our option and does constitute a recommendation or financial advice. Do your own research. *

Price
6
Condition
9
Location
7
Land
7
Bedrooms
3
Bathrooms
1
Sqft (est)
829.00

The heatmap indicates the level of crime in the area. The color of the heatmap indicates the crime severity and recency.

Metrics Year-on-Year

Average area value
386,667.00 £
Increased by 24.94 %
from 309,484.00 £
Est sale value
285,176.00 £
Decreased by 6.27 %
from 304,243.00 £
Average area rental value
1,300.00 £/mo
Increased by 8.33 %
from 1,200.00 £/mo
Est letting value
829.00 £/mo
Unchanged by 0.00 %
from 829.00 £/mo
Est rental Yield
4.03 %
Decreased by 13.33 %
from 4.65 %
Crime Rate
8.00 %
Unchanged by 0.00 %
from 8.00 %

Agent Activity

  • Bradleys created the listing.

Nearby Schools

NameTypeOfstedDistance
Boringdon Primary SchoolAcademy Converter0.49 KM
Old Priory Junior AcademyAcademy ConverterRequires improvement0.66 KM
Plympton AcademyAcademy ConverterRequires improvement0.78 KM
Plympton St Mary'S Cofe Infant SchoolAcademy Converter0.79 KM
Plum Tree Children'S CentreChildren's Centre0.93 KM

Images

Picture No. 09 Picture No. 04 Picture No. 13 Picture No. 18 Picture No. 14 Picture No. 21 Picture No. 12 Picture No. 22 Picture No. 23 Picture No. 10 EPC Rating Graph Picture No. 16 Picture No. 06 Picture No. 03 Picture No. 02 Picture No. 05 Picture No. 24 Picture No. 17 Picture No. 20 Picture No. 19 Picture No. 11 Picture No. 07 Picture No. 08

Nearby Streets

NameAverage PriceAverage SqftDistance
Tommys Lane £ 300,00000.00 KM
Longmeadow Close £ 000.00 KM
St Stephen's Place £ 120,00000.00 KM
Stannary Lane £ 000.00 KM
Pinewood Close £ 000.00 KM

Nearby Transport

NameNLCTLCDistance
Plymouth3580PLY9.87 KM

Nearby Listings

AddressPriceTypeScoreDistance
Lucas Lane, Plymouth, Devon £ 260,000BUY7 / 100.00 KM
Lucas Lane, Plymouth, Devon, PL7 £ 265,000BUY6 / 100.07 KM
Cliff Cottage, Colebrook, Plympton, PL7 4AG £ 170,000BUY6 / 100.14 KM
Coles Cottages, Colebrook, Plymouth £ 190,000BUY6 / 100.14 KM
Lucas Lane, Plympton £ 285,000BUY7 / 100.16 KM

Nearby Properties

AddressPriceDistance
87 Lucas Lane £ 143,0000.03 KM
91 Lucas Lane £ 210,0000.03 KM
81 Lucas Lane £ 189,0000.03 KM
89 Lucas Lane £ 64,9500.03 KM
83 Lucas Lane £ 218,0000.03 KM