Adrians says ..
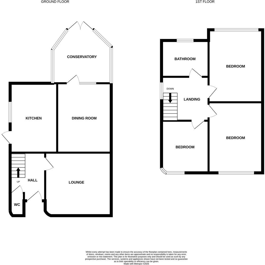
Affording a sizeable rear garden and set back from the road, this established three bedroom semi detached property also boasts the potential to extend subject to the usual planning consents. Currently the house offers an entrance hall with ground floor w.c, two reception rooms plus a kitchen (cont.)
Property Oracle says ..
Therefore, we give this property 6 / 10. *Disclaimer: This is our option and does constitute a recommendation or financial advice. Do your own research. *
- Price
- 6
- Condition
- 6
- Location
- 7
- Land
- 8
- Bedrooms
- 3
- Bathrooms
- 1
- Sqft (est)
- 980.90
The heatmap indicates the level of crime in the area. The color of the heatmap indicates the crime severity and recency.
Metrics Year-on-Year
- Average area value
- 149,800.00 £Decreased by 39.37 %
- Est sale value
- 157,924.90 £Decreased by 30.90 %
- Average area rental value
- 1,131.00 £/moIncreased by 5.60 %
- Est letting value
- 980.90 £/moUnchanged by 0.00 %
- Est rental Yield
- 9.06 %Increased by 74.23 %
- Crime Rate
- 10.00 %Unchanged by 0.00 %
from 247,091.00 £
from 228,549.70 £
from 1,071.00 £/mo
from 980.90 £/mo
from 5.20 %
from 10.00 %
Agent Activity
Adrians created the listing.
Nearby Schools
| Name | Type | Ofsted | Distance |
|---|---|---|---|
| Che1/A Chelmsford Central Family Hub | Children's Centre | 0.89 KM | |
| Chelmsford Hospital School | Other Independent School | Outstanding | 1.12 KM |
| Trinity Road Primary School | Community School | Good | 1.24 KM |
| Meadgate Primary School | Academy Sponsor Led | Good | 1.26 KM |
| Barnes Farm Infant School | Academy Converter | 1.29 KM |
Images
Nearby Streets
| Name | Average Price | Average Sqft | Distance |
|---|---|---|---|
| Buckingham Court | £ 0 | 0 | 0.00 KM |
| Ruskin Road | £ 323,333 | 0 | 0.00 KM |
| The Leys | £ 512,500 | 0 | 0.00 KM |
| Morris Road | £ 0 | 0 | 0.00 KM |
| Regency Close | £ 255,000 | 0 | 0.00 KM |
Nearby Transport
| Name | NLC | TLC | Distance |
|---|---|---|---|
| Chelmsford | 6836 | CHM | 3.07 KM |
Nearby Listings
| Address | Price | Type | Score | Distance |
|---|---|---|---|---|
| Chelmer Road, Chelmsford | £ 600,000 | BUY | 7 / 10 | 0.00 KM |
| Chelmer Road, Chelmsford | £ 725,000 | BUY | 7 / 10 | 0.00 KM |
| Chelmer Road, Chelmsford | £ 450,000 | BUY | 7 / 10 | 0.00 KM |
| Chelmer Road, Chelmsford | £ 550,000 | BUY | 6 / 10 | 0.00 KM |
| Chelmer Road, Chelmsford, CM2 | £ 240,000 | BUY | 7 / 10 | 0.01 KM |
Nearby Properties
| Address | Price | Distance |
|---|---|---|
| 158 Chelmer Road | £ 336,000 | 0.00 KM |
| 122 Chelmer Road | £ 175,000 | 0.00 KM |
| 152 Chelmer Road | £ 152,000 | 0.00 KM |
| 108 Chelmer Road | £ 241,000 | 0.00 KM |
| 132 Chelmer Road | £ 390,000 | 0.00 KM |