Acorn says ..
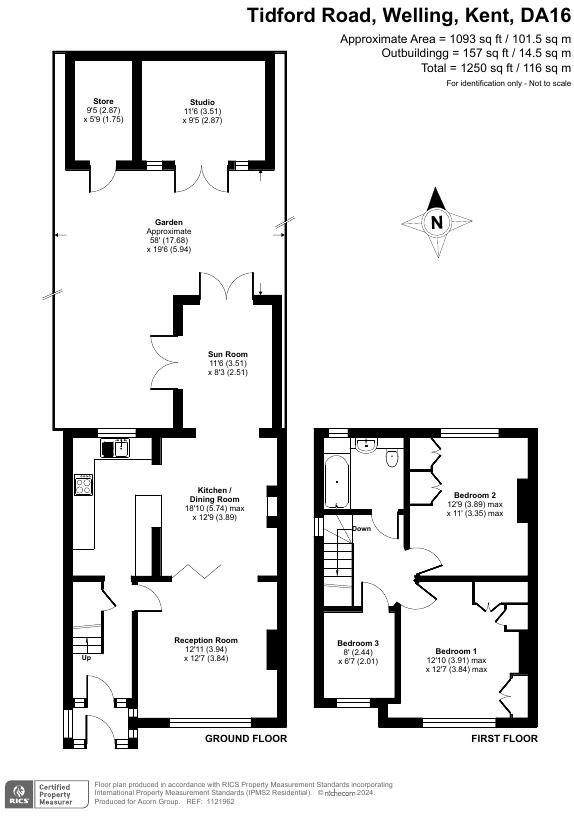
Acorn are delighted to welcome to the market this spacious three bedroom Semi Detached family home situated on a highly popular road in Welling. The accommodation consists of, on the ground floor of entrance porch, front reception room with internal bi-folding doors onto the extended o...
Property Oracle says ..
This is a semi-detached property in Welling, Kent, offering three bedrooms and one bathroom. The house benefits from a modern kitchen and a well-maintained garden with a patio area. While generally in good condition, some areas could benefit from updating. Located close to local amenities, schools, and transportation links, it’s suitable for families. The price is slightly above the area average but reflects the property’s larger size.
Therefore, we give this property 6 / 10. *Disclaimer: This is our option and does constitute a recommendation or financial advice. Do your own research. *
- Price
- 6
- Condition
- 7
- Location
- 7
- Land
- 7
- Bedrooms
- 3
- Bathrooms
- 1
- Sqft (est)
- 2,141.93
The heatmap indicates the level of crime in the area. The color of the heatmap indicates the crime severity and recency.
Metrics Year-on-Year
- Average area value
- 450,500.00 £Decreased by 1.88 %
- Est sale value
- 959,584.64 £Increased by 6.16 %
- Average area rental value
- 1,880.00 £/moDecreased by 0.48 %
- Est letting value
- 2,141.93 £/moUnchanged by 0.00 %
- Est rental Yield
- 5.01 %Increased by 1.42 %
- Crime Rate
- 6.00 %Unchanged by 0.00 %
Agent Activity
Acorn created the listing.
Nearby Schools
| Name | Type | Ofsted | Distance |
|---|---|---|---|
| East Wickham Primary Academy | Academy Converter | Good | 0.44 KM |
| St Stephen'S Catholic Primary School | Voluntary Aided School | Outstanding | 0.68 KM |
| Hook Lane Primary School | Academy Converter | 0.71 KM | |
| Willow Dene School | Academy Special Converter | Good | 1.10 KM |
| Falconwood & Welling Children'S Centre | Children's Centre Linked Site | 1.27 KM |
Images
Nearby Streets
| Name | Average Price | Average Sqft | Distance |
|---|---|---|---|
| Yew Tree Close | £ 455,000 | 0 | 0.00 KM |
| Newton Road | £ 660,000 | 0 | 0.00 KM |
| Radial Path | £ 0 | 0 | 0.00 KM |
| Lime Tree terrace | £ 0 | 0 | 0.00 KM |
| St. Abbs Close | £ 512,500 | 0 | 0.00 KM |
Nearby Transport
| Name | NLC | TLC | Distance |
|---|---|---|---|
| Welling | 5128 | WLI | 0.39 KM |
| Falconwood | 5137 | FCN | 2.34 KM |
| Plumstead | 5208 | PLU | 3.01 KM |
| Abbey Wood | 5131 | ABW | 3.65 KM |
| Sidcup | 5125 | SID | 3.73 KM |
Nearby Listings
| Address | Price | Type | Score | Distance |
|---|---|---|---|---|
| Tidford Road, Welling, Kent | £ 525,000 | BUY | 6 / 10 | 0.00 KM |
| Tidford Road, Welling, Kent | £ 525,000 | BUY | Unknown | 0.00 KM |
| Awliscombe Road, Welling, Kent | £ 550,000 | BUY | 6 / 10 | 0.12 KM |
| Vaughan Road, Welling | £ 675,000 | BUY | 7 / 10 | 0.15 KM |
| Vaughan Road, Welling, Kent, DA16 | £ 550,000 | BUY | 8 / 10 | 0.16 KM |
Nearby Properties
| Address | Price | Distance |
|---|---|---|
| 24 Tidford Road | £ 216,750 | 0.03 KM |
| 16 Tidford Road | £ 400,000 | 0.03 KM |
| 22 Monkton Road | £ 249,995 | 0.11 KM |
| 12 Monkton Road | £ 249,995 | 0.11 KM |
| 25 Monkton Road | £ 231,000 | 0.11 KM |