DA
Halford Close, Herne Bay, CT6 7UN
By David Clarke Estate Agents
£ 425,000
Reviews
3 out of 5 stars
David Clarke Estate Agents says ..
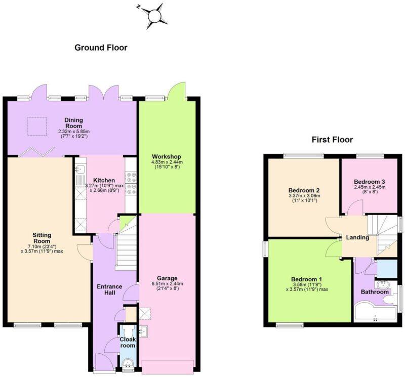
Extended 3-bed detached in Broomfield with open-plan living, tandem garage, gardens & dual driveways. Close to shops, schools & coast, ideal for family living near the seaside.
Property Oracle says ..
Therefore, we give this property 7 / 10. *Disclaimer: This is our option and does constitute a recommendation or financial advice. Do your own research. *
- Price
- 6
- Condition
- 8
- Location
- 7
- Land
- 7
- Bedrooms
- 3
- Bathrooms
- 1
The heatmap indicates the level of crime in the area. The color of the heatmap indicates the crime severity and recency.
Metrics Year-on-Year
- Average area value
- 277,995.00 £Increased by 12.95 %
- Average area rental value
- 1,080.00 £/moDecreased by 3.91 %
- Est rental Yield
- 4.66 %Decreased by 14.96 %
- Crime Rate
- 4.00 %Unchanged by 0.00 %
from 246,113.00 £
from 1,124.00 £/mo
from 5.48 %
from 4.00 %
Agent Activity
David Clarke Estate Agents created the listing.
Nearby Schools
| Name | Type | Ofsted | Distance |
|---|---|---|---|
| Herne Church Of England Infant And Nursery School | Voluntary Controlled School | Outstanding | 0.89 KM |
| Herne Church Of England Junior School | Voluntary Aided School | Outstanding | 1.11 KM |
| Herne Bay Infant School | Community School | Good | 2.13 KM |
| Herne Bay Junior School | Foundation School | Good | 2.13 KM |
| The Poppy Children'S Centre | Children's Centre | 2.58 KM |
Images
Nearby Streets
| Name | Average Price | Average Sqft | Distance |
|---|---|---|---|
| Ashdown Close | £ 375,000 | 0 | 0.00 KM |
| Eastgate Close | £ 450,000 | 0 | 0.00 KM |
| Swale Close | £ 0 | 0 | 0.00 KM |
| Chapel Row | £ 0 | 0 | 0.00 KM |
| Spenser Road | £ 295,000 | 0 | 0.00 KM |
Nearby Transport
| Name | NLC | TLC | Distance |
|---|---|---|---|
| Herne Bay | 5174 | HNB | 3.06 KM |
| Sturry | 5029 | STU | 6.60 KM |
| Chestfield And Swalecliffe | 5200 | CSW | 8.54 KM |
Nearby Listings
| Address | Price | Type | Score | Distance |
|---|---|---|---|---|
| Halford Close, Herne Bay, CT6 7UN | £ 425,000 | BUY | 7 / 10 | 0.00 KM |
| Halford Close, Broomfield, Herne Bay | £ 495,000 | BUY | 7 / 10 | 0.01 KM |
| Dean Croft, Herne Bay | £ 450,000 | BUY | Unknown | 0.05 KM |
| Dean Croft, Herne Bay | £ 350,000 | BUY | 7 / 10 | 0.12 KM |
| Bramblefields Close, Herne Bay | £ 575,000 | BUY | 7 / 10 | 0.12 KM |
Nearby Properties
| Address | Price | Distance |
|---|---|---|
| 6 Halford Close | £ 197,500 | 0.01 KM |
| 5 Halford Close | £ 192,500 | 0.01 KM |
| 2 Halford Close | £ 210,000 | 0.01 KM |
| 3 Halford Close | £ 195,000 | 0.01 KM |
| 8 Halford Close | £ 412,500 | 0.02 KM |