Fairfield Road, Stockton Heath WA4
By Adams Estate Agents
£ 575,000
Reviews
3 out of 5 stars
Adams Estate Agents says ..
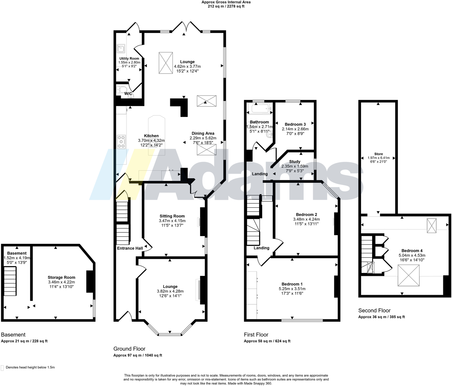
A substantial period semi located in a prime position on Fairfield Road and benefitting from a South facing garden with direct access onto Alexandra Park at the rear and driveway parking for three cars. The well maintained accommodation briefly includes; entrance hall, lounge, living ro...
Property Oracle says ..
This property is a 4-bedroom semi-detached house located on Fairfield Road in Stockton Heath, Warrington. Stockton Heath is a desirable area known for its good schools and convenient access to amenities. The property itself appears to be well-maintained and has undergone some modernisation, while retaining some traditional character. The extension to the rear is a significant addition, increasing living space and providing a modern kitchen and family area. The garden is a good size and provides additional outdoor space. The property is listed at £575,000, which is above the average price for the area but in line with other comparable properties on Fairfield Road. Given the property’s size, location, condition, and additional features, the list price appears reasonable.
Therefore, we give this property 7 / 10. *Disclaimer: This is our option and does constitute a recommendation or financial advice. Do your own research. *
- Price
- 7
- Condition
- 8
- Location
- 9
- Land
- 7
- Bedrooms
- 4
- Bathrooms
- 1
- Sqft (est)
- 2,150.31
- Lot (est)
- 2,281.95
The heatmap indicates the level of crime in the area. The color of the heatmap indicates the crime severity and recency.
Metrics Year-on-Year
- Average area value
- 393,000.00 £Decreased by 15.72 %
- Est sale value
- 969,789.81 £Increased by 37.92 %
- Average area rental value
- 1,388.00 £/moIncreased by 10.60 %
- Est letting value
- 2,150.31 £/mo
- Est rental Yield
- 4.24 %Increased by 31.27 %
- Crime Rate
- 0.00 %
Agent Activity
Adams Estate Agents created the listing.
Nearby Schools
| Name | Type | Ofsted | Distance |
|---|---|---|---|
| St Thomas' Cofe Primary School | Voluntary Aided School | Good | 0.20 KM |
| Our Lady'S Catholic Primary School | Voluntary Aided School | Good | 0.67 KM |
| The Cobbs Infant And Nursery School | Community School | Good | 1.02 KM |
| St Monica'S Catholic Primary School | Voluntary Aided School | Good | 1.10 KM |
| The Cygnets Children'S Centre | Children's Centre Linked Site | 1.12 KM |
Images
Nearby Streets
| Name | Average Price | Average Sqft | Distance |
|---|---|---|---|
| Millhouse Avenue | £ 0 | 0 | 0.00 KM |
| Fairfield Road | £ 575,000 | 0 | 0.00 KM |
| Raymond Avenue | £ 446,667 | 0 | 0.00 KM |
| Rosemary Avenue | £ 325,000 | 0 | 0.00 KM |
| Hawthorn Grove | £ 280,000 | 0 | 0.00 KM |
Nearby Transport
| Name | NLC | TLC | Distance |
|---|---|---|---|
| Warrington Central | 2390 | WAC | 2.78 KM |
| Warrington Bank Quay | 2384 | WBQ | 3.28 KM |
| Padgate | 2387 | PDG | 4.04 KM |
| Birchwood | 2304 | BWD | 6.97 KM |
| Warrington West | 6583 | WAW | 7.29 KM |
Nearby Listings
| Address | Price | Type | Score | Distance |
|---|---|---|---|---|
| Fairfield Road, Stockton Heath WA4 | £ 575,000 | BUY | Unknown | 0.00 KM |
| Fairfield Road, Stockton Heath WA4 | £ 575,000 | BUY | 7 / 10 | 0.00 KM |
| Raymond Avenue, Stockton Heath, Warrington | £ 500,000 | BUY | 8 / 10 | 0.08 KM |
| Raymond Avenue, Stockton Heath, Warrington | £ 475,000 | BUY | 7 / 10 | 0.08 KM |
| Mill House Avenue, Stockton Heath, WA4 | £ 450,000 | BUY | 8 / 10 | 0.16 KM |
Nearby Properties
| Address | Price | Distance |
|---|---|---|
| 69 Fairfield Road | £ 595,000 | 0.01 KM |
| 50 Fairfield Road | £ 340,000 | 0.01 KM |
| 73 Fairfield Road | £ 154,950 | 0.01 KM |
| 57 Fairfield Road | £ 250,000 | 0.01 KM |
| 71 Fairfield Road | £ 124,999 | 0.01 KM |