Ilex Walk, Hayling Island
By Archbold & Edwards
£ 349,995
Reviews
3 out of 5 stars
Archbold & Edwards says ..
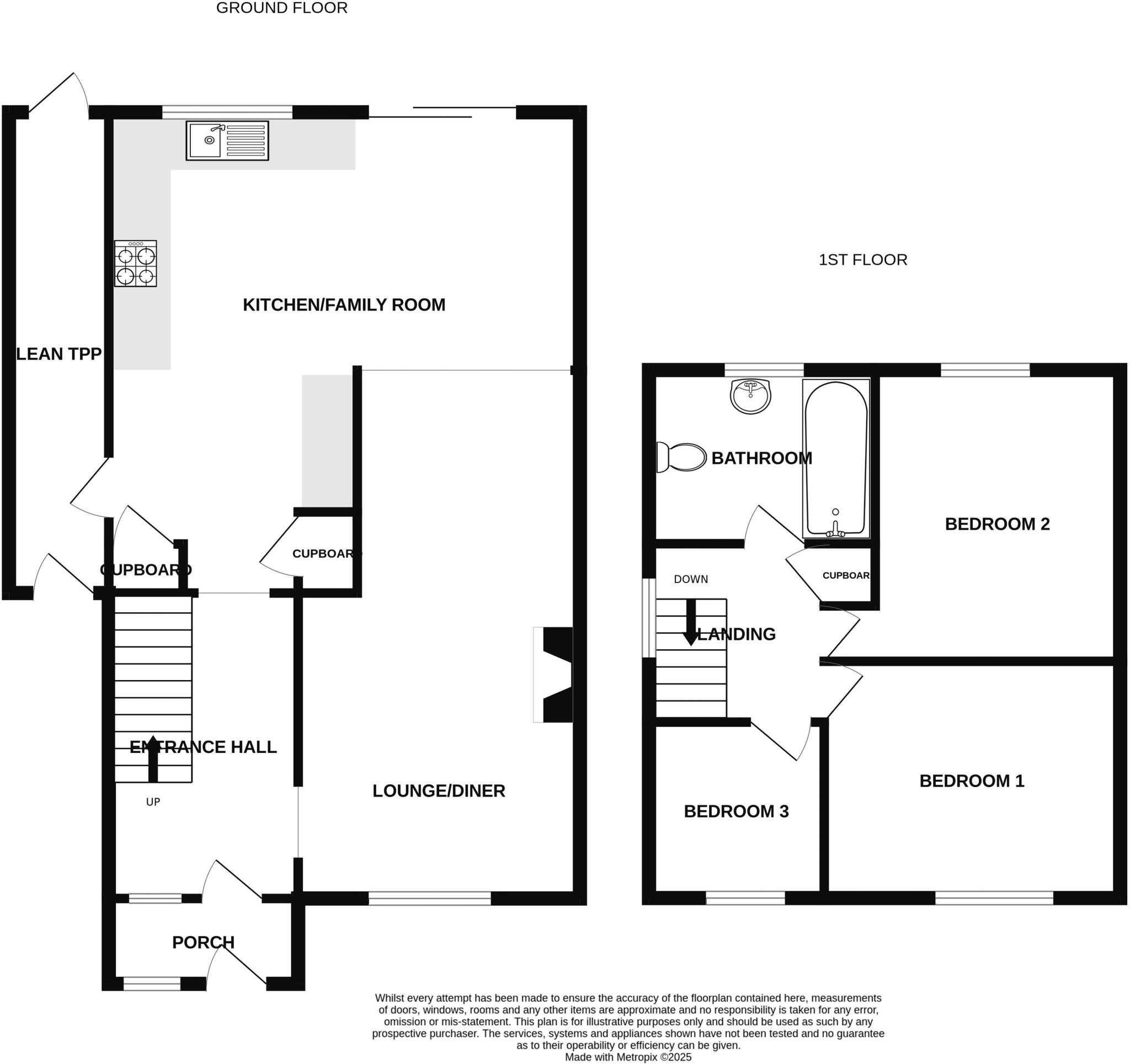
FAMILY SIZED THREE BEDROOM HOME WITYH MODERN OPEN PLAN KITCHEN FAMILY ROOM. A three bedroom extended semi detached house located in Hayling Island, near Havant. This property benefits from double glazing, gas central heating system, driveway parking for multiple vehicles, mature rear garden, loun...
Property Oracle says ..
This 3-bedroom semi-detached house in Hayling Island, Hampshire, is listed at £349,995. The property boasts 785 sqft of living space and benefits from a good-sized garden, including a patio area, trampoline, and children’s play equipment. The interior is presented in good condition, with modern updates to the kitchen and bathrooms. The flooring throughout appears to be recently updated and the decor is modern and neutral. The location is within reasonable proximity to local schools, which are rated ‘Good’ or ‘Outstanding’ by Ofsted. Nearby transportation links include several train stations within approximately 8km.
Therefore, we give this property 7 / 10. *Disclaimer: This is our option and does constitute a recommendation or financial advice. Do your own research. *
- Price
- 7
- Condition
- 9
- Location
- 7
- Land
- 8
- Bedrooms
- 3
- Bathrooms
- 1
- Sqft (est)
- 785.00
The heatmap indicates the level of crime in the area. The color of the heatmap indicates the crime severity and recency.
Metrics Year-on-Year
- Average area value
- 414,227.00 £Increased by 5.18 %
- Est sale value
- 400,350.00 £Increased by 44.48 %
- Average area rental value
- 1,867.00 £/moIncreased by 23.81 %
- Est letting value
- 1,570.00 £/moIncreased by 100.00 %
- Est rental Yield
- 5.41 %Increased by 17.86 %
- Crime Rate
- 27.00 %Unchanged by 0.00 %
Agent Activity
Archbold & Edwards created the listing.
Nearby Schools
| Name | Type | Ofsted | Distance |
|---|---|---|---|
| Mengham Junior School | Community School | Good | 1.38 KM |
| Starfish And The Orchard Children'S Centre | Children's Centre | 1.54 KM | |
| The Hayling College | Foundation School | Good | 1.75 KM |
| Mengham Infant School | Community School | Good | 1.83 KM |
| Mill Rythe Junior School | Community School | Outstanding | 1.89 KM |
Images
Nearby Streets
| Name | Average Price | Average Sqft | Distance |
|---|---|---|---|
| St. Hermans Caravan Estate | £ 0 | 0 | 0.00 KM |
| Norman Road | £ 475,000 | 0 | 0.00 KM |
| Saint Hermans Road | £ 180,833 | 0 | 0.00 KM |
| North Crescent | £ 395,000 | 0 | 0.00 KM |
| Orchard Road | £ 0 | 0 | 0.00 KM |
Nearby Transport
| Name | NLC | TLC | Distance |
|---|---|---|---|
| Warblington | 5264 | WBL | 7.56 KM |
| Emsworth | 5257 | EMS | 7.85 KM |
| Havant | 5532 | HAV | 7.92 KM |
| Bedhampton | 5538 | BDH | 8.41 KM |
| Southbourne | 5263 | SOB | 9.27 KM |
Nearby Listings
| Address | Price | Type | Score | Distance |
|---|---|---|---|---|
| Ilex Walk, Hayling Island | £ 349,995 | BUY | 7 / 10 | 0.00 KM |
| Ilex Walk, Hayling Island, PO11 | £ 350,000 | BUY | 6 / 10 | 0.01 KM |
| Ilex Walk, Hayling Island | £ 300,000 | BUY | 7 / 10 | 0.09 KM |
| Fishery Lane, Hayling Island | £ 500,000 | BUY | 7 / 10 | 0.14 KM |
| Blackthorn Drive, Hayling Island | £ 365,000 | BUY | 7 / 10 | 0.14 KM |
Nearby Properties
| Address | Price | Distance |
|---|---|---|
| 11 Ilex Walk | £ 173,000 | 0.01 KM |
| 21 Ilex Walk | £ 164,000 | 0.01 KM |
| 17 Ilex Walk | £ 51,000 | 0.01 KM |
| 28 Ilex Walk | £ 315,000 | 0.01 KM |
| 1a Ilex Walk | £ 235,000 | 0.01 KM |