William Road, Sutton, Surrey, SM1
By Burn & Warne
£ 325,000
Reviews
2 out of 5 stars
Burn & Warne says ..
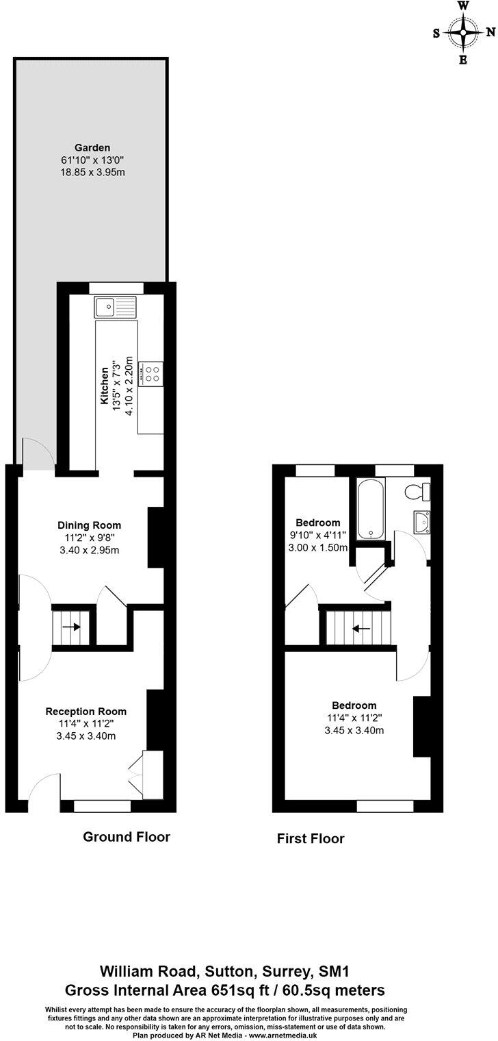
SOLD BY BURN AND WARNE *FREEHOLD HOUSE WITH POTENTIAL TO IMPROVE*TERRACED HOUSE *1 BEDROOM WITH ADDITIONAL STUDY ROOM *TWO RECEPTIONS *UPSTAIRS BATHROOM *REQUIRES INTERNAL UPDATING *DOUBLE GLAZING *GAS CENTRAL HEATING *NO ONWARD CHAIN. Located in popular William Road close to Sutton ma...
Property Oracle says ..
This one-bedroom, one-bathroom property located on William Road, Sutton, Surrey presents a mixed-use opportunity. The location in Sutton North offers several advantages, including proximity to well-regarded primary schools (All Saints Benhilton Cofe Primary School is only 0.14 km away). Several train stations are within reasonable commuting distance. This accessibility and the desirability of the area contribute positively.
However, the property itself requires significant work. The interior images showcase a need for extensive cosmetic improvements and potentially some structural repairs. Walls show damage, and the overall aesthetic points to an outdated design and possibly deficient maintenance. The garden, although present, appears to need landscaping and care.
The lack of precise square footage measurements for the property and surrounding comparative listings limits a precise price-per-square-foot analysis for conclusive value determination. However, the listed price of £325,000, when considering the condition of the property, seems moderately positioned within the range for comparable homes in the vicinity, although other listings in the area show prices ranging between £195,000 and £550,000. The property thus presents a potential investment for someone willing to undertake renovation work, offsetting the financial outlay for improvements against the advantages of an otherwise desirable location.
Therefore, we give this property 5 / 10. *Disclaimer: This is our option and does constitute a recommendation or financial advice. Do your own research. *
- Price
- 6
- Condition
- 4
- Location
- 7
- Land
- 5
- Bedrooms
- 1
- Bathrooms
- 1
- Sqft (est)
- 651.22
The heatmap indicates the level of crime in the area. The color of the heatmap indicates the crime severity and recency.
Metrics Year-on-Year
- Average area value
- 364,000.00 £Decreased by 29.95 %
- Est sale value
- 173,875.74 £Decreased by 53.08 %
- Average area rental value
- 1,700.00 £/moDecreased by 10.62 %
- Est letting value
- 651.22 £/moDecreased by 50.00 %
- Est rental Yield
- 5.60 %Increased by 27.56 %
- Crime Rate
- 1.00 %Unchanged by 0.00 %
Agent Activity
Burn & Warne created the listing.
Nearby Schools
| Name | Type | Ofsted | Distance |
|---|---|---|---|
| All Saints Benhilton Cofe Primary School | Voluntary Aided School | Good | 0.14 KM |
| Robin Hood Junior School | Community School | Good | 0.91 KM |
| Sutton Grammar School | Academy Converter | 0.96 KM | |
| Manor Park Children'S Centre (Sutton Central East) | Children's Centre | 1.14 KM | |
| Manor Park Primary Academy | Academy Converter | 1.14 KM |
Images
Nearby Streets
| Name | Average Price | Average Sqft | Distance |
|---|---|---|---|
| All Saints Road | £ 400,000 | 0 | 0.00 KM |
| Dovercourt Lane | £ 0 | 0 | 0.00 KM |
| Vale Road | £ 0 | 0 | 0.00 KM |
| Bushey Road | £ 0 | 0 | 0.00 KM |
| Wilcox Road | £ 0 | 0 | 0.00 KM |
Nearby Transport
| Name | NLC | TLC | Distance |
|---|---|---|---|
| Sutton Common | 5436 | SUC | 0.43 KM |
| Sutton | 5385 | SUO | 1.52 KM |
| West Sutton | 5293 | WSU | 1.57 KM |
| St Helier | 5290 | SIH | 1.98 KM |
| Morden South | 5291 | MDS | 2.66 KM |
Nearby Listings
| Address | Price | Type | Score | Distance |
|---|---|---|---|---|
| William Road, Sutton, Surrey, SM1 | £ 325,000 | BUY | 5 / 10 | 0.00 KM |
| Stayton Road, Sutton, Surrey, SM1 | £ 575,000 | BUY | 7 / 10 | 0.00 KM |
| Waverley Avenue, Sutton, SM1 | £ 650,000 | BUY | 8 / 10 | 0.00 KM |
| Sutton Court Road, Sutton, Surrey, SM1 | £ 325,000 | BUY | 6 / 10 | 0.00 KM |
| Beauchamp Road, Sutton, SM1 | £ 499,950 | BUY | 6 / 10 | 0.00 KM |
Nearby Properties
| Address | Price | Distance |
|---|---|---|
| 5 All Saints Road | £ 514,000 | 0.06 KM |
| 4 Hunting Gate Mews | £ 400,000 | 0.14 KM |
| 1 Hunting Gate Mews | £ 265,000 | 0.14 KM |
| 17 Hunting Gate Mews | £ 195,000 | 0.14 KM |
| 18 Hunting Gate Mews | £ 230,000 | 0.14 KM |