HE
47a West Road, Nottage Porthcawl CF36 3SN
By Herbert R Thomas
£ 450,000
Reviews
3 out of 5 stars
Herbert R Thomas says ..
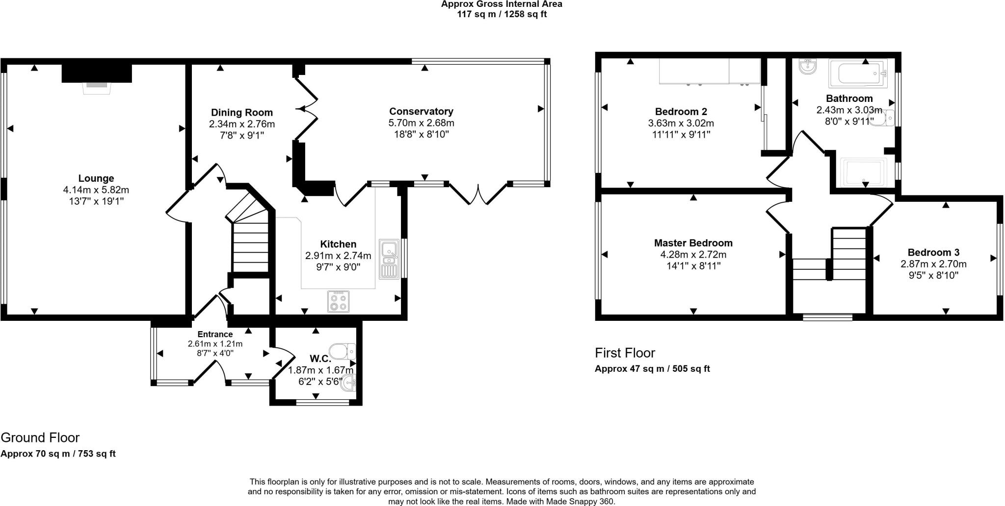
Located within close proximity to Porthcawl beaches, seafront, schools, shops and amenities as well as great commuter access via junction 37 of the M4 and bus links is this charming semi- detached property located off West Road on a private road in Nottage village. The property is entered vi...
Property Oracle says ..
Therefore, we give this property 7 / 10. *Disclaimer: This is our option and does constitute a recommendation or financial advice. Do your own research. *
- Price
- 6
- Condition
- 8
- Location
- 8
- Land
- 7
- Bedrooms
- 3
- Bathrooms
- 2
- Sqft (est)
- 1,259.38
The heatmap indicates the level of crime in the area. The color of the heatmap indicates the crime severity and recency.
Metrics Year-on-Year
- Average area value
- 245,000.00 £Decreased by 2.53 %
- Est sale value
- 173,794.44 £Decreased by 44.13 %
- Average area rental value
- 608.00 £/moDecreased by 26.30 %
- Est letting value
- 0.00 £/mo
- Est rental Yield
- 2.98 %Decreased by 24.37 %
- Crime Rate
- 1.00 %Unchanged by 0.00 %
from 251,358.00 £
from 311,066.86 £
from 825.00 £/mo
from 0.00 £/mo
from 3.94 %
from 1.00 %
Agent Activity
Herbert R Thomas created the listing.
Nearby Schools
| Name | Type | Ofsted | Distance |
|---|---|---|---|
| West Park Primary School | Welsh Establishment | 0.19 KM | |
| Nottage Primary School | Welsh Establishment | 0.94 KM | |
| Porthcawl Comprehensive School | Welsh Establishment | 1.42 KM | |
| Porthcawl Primary School | Welsh Establishment | 1.65 KM | |
| Newton Primary School | Welsh Establishment | 1.66 KM |
Images
Nearby Streets
| Name | Average Price | Average Sqft | Distance |
|---|---|---|---|
| Florence Street | £ 0 | 0 | 0.00 KM |
| Lock's Court | £ 0 | 0 | 0.00 KM |
| Lock's Lane | £ 0 | 0 | 0.00 KM |
| Ffordd Ogwr | £ 0 | 0 | 0.00 KM |
| Steepholm Close | £ 402,500 | 0 | 0.00 KM |
Nearby Transport
| Name | NLC | TLC | Distance |
|---|---|---|---|
| Pyle | 4185 | PYL | 3.86 KM |
Nearby Listings
| Address | Price | Type | Score | Distance |
|---|---|---|---|---|
| 47a West Road, Nottage Porthcawl CF36 3SN | £ 450,000 | BUY | 7 / 10 | 0.00 KM |
| WEST ROAD, NOTTAGE, PORTHCAWL, CF36 3SN | £ 520,000 | BUY | 7 / 10 | 0.13 KM |
| GREENFIELD WAY, NOTTAGE, PORTHCAWL, CF36 3SH | £ 459,000 | BUY | Unknown | 0.13 KM |
| West Road, Porthcawl | £ 385,000 | BUY | Unknown | 0.13 KM |
| GREENFIELD WAY, PORTHCAWL, CF36 3SH | £ 450,000 | BUY | 5 / 10 | 0.15 KM |
Nearby Properties
| Address | Price | Distance |
|---|---|---|
| 22 West Road | £ 416,000 | 0.01 KM |
| 39 West Road | £ 230,000 | 0.01 KM |
| 5 West Road | £ 430,000 | 0.01 KM |
| 54 West Road | £ 505,000 | 0.01 KM |
| 28 West Road | £ 590,000 | 0.01 KM |