Peggs Way, Rooksdown
By The Property Explorer
£ 400,000
Reviews
3 out of 5 stars
The Property Explorer says ..
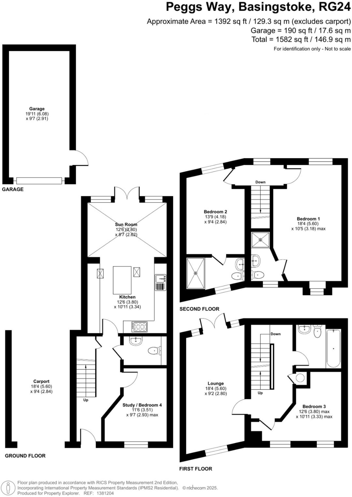
Peggs Way presents a beautifully updated home in a private, southerly facing position with a block-paved driveway offering parking for three cars and access to the car-port and garage. Built in 2013 and fully redecorated within the last year, the property has been enhanced with new Amtico floorin...
Property Oracle says ..
This is a well-presented, modern terraced house in the Rooksdown area of Basingstoke. The property benefits from a modern kitchen, three bathrooms, and a well-maintained garden. The house is located close to several schools and Basingstoke Station. The price seems reasonable given the size and condition of the property, and the fact that it is below the average price per square foot for the area.
Therefore, we give this property 7 / 10. *Disclaimer: This is our option and does constitute a recommendation or financial advice. Do your own research. *
- Price
- 8
- Condition
- 9
- Location
- 7
- Land
- 7
- Bedrooms
- 4
- Bathrooms
- 3
- Sqft (est)
- 1,582.00
The heatmap indicates the level of crime in the area. The color of the heatmap indicates the crime severity and recency.
Metrics Year-on-Year
- Average area value
- 339,353.00 £Decreased by 35.35 %
- Est sale value
- 654,948.00 £Decreased by 15.68 %
- Average area rental value
- 1,419.00 £/moIncreased by 8.32 %
- Est letting value
- 1,582.00 £/moUnchanged by 0.00 %
- Est rental Yield
- 5.02 %Increased by 67.89 %
- Crime Rate
- 9.00 %Unchanged by 0.00 %
Agent Activity
The Property Explorer created the listing.
Nearby Schools
| Name | Type | Ofsted | Distance |
|---|---|---|---|
| The Ashwood Academy | Academy Alternative Provision Sponsor Led | Good | 0.44 KM |
| Winklebury Junior School | Community School | Good | 0.73 KM |
| Winklebury Infant School | Community School | Good | 0.76 KM |
| Saxon Wood School | Community Special School | Good | 1.18 KM |
| Castle Hill Infant School | Community School | Outstanding | 1.45 KM |
Images
Nearby Streets
| Name | Average Price | Average Sqft | Distance |
|---|---|---|---|
| Spinney Mew | £ 300,000 | 0 | 0.00 KM |
| Furzelea Road | £ 450,000 | 0 | 0.00 KM |
| Ashwood Way | £ 0 | 0 | 0.00 KM |
| Nightingale Gardens | £ 240,000 | 0 | 0.00 KM |
| Hampton Court | £ 285,000 | 0 | 0.00 KM |
Nearby Transport
| Name | NLC | TLC | Distance |
|---|---|---|---|
| Basingstoke | 5520 | BSK | 3.41 KM |
| Bramley (Hampshire) | 5500 | BMY | 8.53 KM |
Nearby Listings
| Address | Price | Type | Score | Distance |
|---|---|---|---|---|
| Peggs Way, Rooksdown | £ 400,000 | BUY | 7 / 10 | 0.00 KM |
| Sheepwash Court, Basingstoke, RG24 | £ 630,000 | BUY | 8 / 10 | 0.04 KM |
| Highpath Way, Basingstoke, Hampshire, RG24 | £ 375,000 | BUY | 8 / 10 | 0.05 KM |
| Highpath Way, Basingstoke | £ 375,000 | BUY | 6 / 10 | 0.06 KM |
| Peggs Way, Basingstoke | £ 415,000 | BUY | 6 / 10 | 0.08 KM |
Nearby Properties
| Address | Price | Distance |
|---|---|---|
| 14 Sheepwash Court | £ 315,000 | 0.04 KM |
| 22 Sheepwash Court | £ 380,000 | 0.04 KM |
| 18 Sheepwash Court | £ 297,400 | 0.04 KM |
| 54a Peggs Way | £ 265,000 | 0.08 KM |
| 73 Peggs Way | £ 330,000 | 0.08 KM |