Dorchester Road, Redlands
By Beaumont Jones Estate Agents
£ 470,000
Reviews
3 out of 5 stars
Beaumont Jones Estate Agents says ..
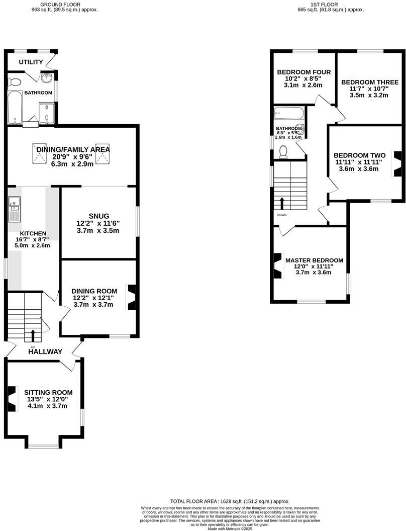
This attractive and substantial four double bedroom detached family home is located in the family friendly and popular area of Redlands. Having been extended to the rear and beautifully presented through-out, this house offers excellent access to well-regarded local schools and easy access to loc...
Property Oracle says ..
This is a detached property located on Dorchester Road, Redlands, Weymouth. It features four bedrooms and two bathrooms, with a total square footage of 1,627.50. The property is listed for £470,000 by Beaumont Jones Estate Agents. The house is situated in a convenient location, close to schools and transportation links. The interior is a mix of modern and traditional styles, with some rooms benefiting from fireplaces. The property includes a garden and off-street parking. Overall, this property offers a good balance of space, location, and amenities for a family home.
Therefore, we give this property 6 / 10. *Disclaimer: This is our option and does constitute a recommendation or financial advice. Do your own research. *
- Price
- 7
- Condition
- 7
- Location
- 7
- Land
- 6
- Bedrooms
- 4
- Bathrooms
- 2
- Sqft (est)
- 1,627.50
The heatmap indicates the level of crime in the area. The color of the heatmap indicates the crime severity and recency.
Metrics Year-on-Year
- Average area value
- 486,667.00 £Increased by 16.46 %
- Est sale value
- 605,430.00 £Increased by 26.53 %
- Average area rental value
- 2,250.00 £/moIncreased by 63.64 %
- Est letting value
- 1,627.50 £/mo
- Est rental Yield
- 5.55 %Increased by 40.51 %
- Crime Rate
- 9.00 %Unchanged by 0.00 %
Agent Activity
Beaumont Jones Estate Agents created the listing.
Nearby Schools
| Name | Type | Ofsted | Distance |
|---|---|---|---|
| Wyvern Academy | Academy Special Converter | Good | 0.31 KM |
| Wey Valley Academy | Academy Converter | 0.39 KM | |
| St Nicholas And St Laurence Church Of England Primary School, Broadwey | Voluntary Aided School | Outstanding | 0.56 KM |
| Radipole Primary School | Community School | Good | 0.78 KM |
| Southill Primary School | Community School | Good | 1.54 KM |
Images
Nearby Streets
| Name | Average Price | Average Sqft | Distance |
|---|---|---|---|
| North Lodge | £ 0 | 0 | 0.00 KM |
| S1/61 | £ 0 | 0 | 0.00 KM |
| S1/133 | £ 0 | 0 | 0.00 KM |
| Greenway Road | £ 0 | 0 | 0.00 KM |
| Greenway Close | £ 425,000 | 0 | 0.00 KM |
Nearby Transport
| Name | NLC | TLC | Distance |
|---|---|---|---|
| Upwey | 5967 | UPW | 1.04 KM |
| Weymouth | 5965 | WEY | 3.12 KM |
| Dorchester West | 5962 | DCW | 8.48 KM |
| Dorchester South | 5961 | DCH | 8.53 KM |
Nearby Listings
| Address | Price | Type | Score | Distance |
|---|---|---|---|---|
| Dorchester Road, Redlands | £ 470,000 | BUY | 6 / 10 | 0.00 KM |
| Dorchester Road, Redlands | £ 425,000 | BUY | 7 / 10 | 0.00 KM |
| Lancaster Road, Redlands | £ 335,000 | BUY | Unknown | 0.13 KM |
| Blenheim Road, Weymouth | £ 425,000 | BUY | 7 / 10 | 0.17 KM |
| Dorchester Road, Weymouth | £ 515,000 | BUY | 8 / 10 | 0.18 KM |
Nearby Properties
| Address | Price | Distance |
|---|---|---|
| 47 Blenheim Road | £ 134,950 | 0.07 KM |
| 3 Lancaster Road | £ 249,999 | 0.11 KM |
| 2 Lancaster Road | £ 213,000 | 0.11 KM |
| 7 Lancaster Road | £ 270,000 | 0.11 KM |
| 5 Lancaster Road | £ 211,000 | 0.11 KM |