The Hawthorns, Caerleon, NP18
By Bluestone Sales and Lettings
£ 150,000
Reviews
4 out of 5 stars
Bluestone Sales and Lettings says ..
*NO OWNARD CHAIN* Welcome to this impressive 2-bed flat in the sought after location of Caerleon providing the perfect balance of tranquillity and convenience. Don't miss out on your viewing today!
Property Oracle says ..
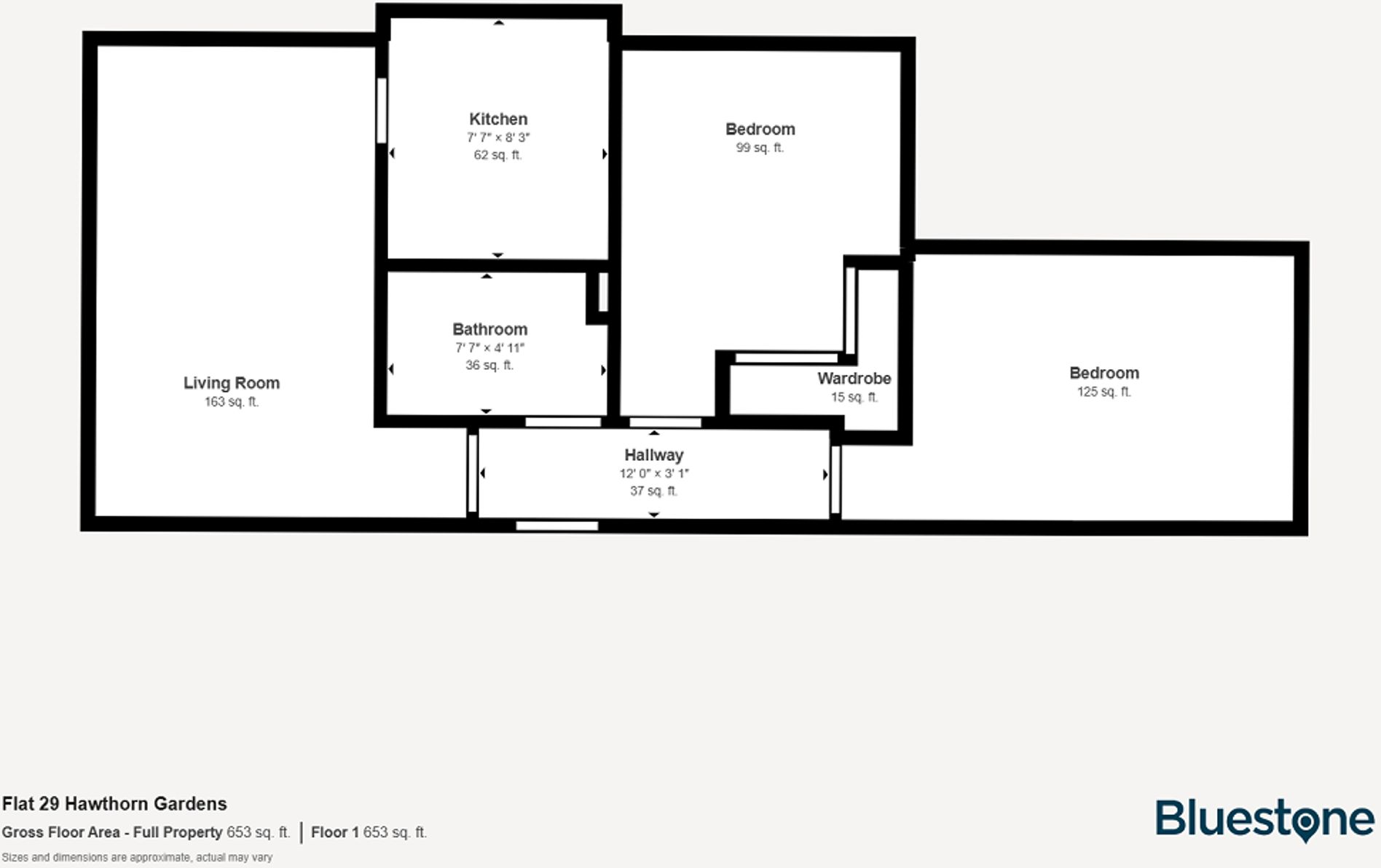
This property is a 2-bedroom flat located in Caerleon, Newport, with a list price of £150,000. The property has a total area of 537 sqft and a plot size of 653 sqft. Based on the images, the property appears to be in good condition and well-maintained. The kitchen and bathroom have modern fittings. The property benefits from communal gardens. Caerleon is a desirable location in South Wales, known for its Roman history and proximity to the River Usk. The average house price in the area is significantly higher than the list price of this property, suggesting it could represent good value for money. However, more information on the specifics of the property and its location would be needed for a more complete assessment.
Therefore, we give this property 8 / 10. *Disclaimer: This is our option and does constitute a recommendation or financial advice. Do your own research. *
- Price
- 9
- Condition
- 8
- Location
- 9
- Land
- 7
- Bedrooms
- 2
- Bathrooms
- 1
- Sqft (est)
- 537.00
- Lot (est)
- 653.00
The heatmap indicates the level of crime in the area. The color of the heatmap indicates the crime severity and recency.
Metrics Year-on-Year
- Average area value
- 360,833.00 £Decreased by 13.57 %
- Est sale value
- 188,487.00 £Decreased by 9.07 %
- Average area rental value
- 1,178.00 £/moIncreased by 8.17 %
- Est letting value
- 537.00 £/moUnchanged by 0.00 %
- Est rental Yield
- 3.92 %Increased by 25.24 %
- Crime Rate
- 6.00 %Unchanged by 0.00 %
Agent Activity
Bluestone Sales and Lettings marked this listing as sold.
Bluestone Sales and Lettings created the listing.
Nearby Schools
| Name | Type | Ofsted | Distance |
|---|---|---|---|
| Caerleon Comprehensive School | Welsh Establishment | 0.61 KM | |
| Ysgol Gymraeg Nant Gwenlli | Welsh Establishment | 1.51 KM | |
| St Julian'S School | Welsh Establishment | 2.93 KM | |
| St Gabriel'S R.C. Primary School | Welsh Establishment | 3.14 KM | |
| Somerton Primary School | Welsh Establishment | 3.17 KM |
Images
Nearby Streets
| Name | Average Price | Average Sqft | Distance |
|---|---|---|---|
| Llew-a-Dor Cwrt | £ 400,000 | 0 | 0.00 KM |
| Norman Terrace | £ 0 | 0 | 0.00 KM |
| Lansdowne Road | £ 220,000 | 0 | 0.00 KM |
| Cold Bath Road | £ 375,000 | 0 | 0.00 KM |
| College Crescent | £ 0 | 0 | 0.00 KM |
Nearby Transport
| Name | NLC | TLC | Distance |
|---|---|---|---|
| Newport (South Wales) | 3674 | NWP | 5.87 KM |
| Cwmbran | 3738 | CWM | 8.28 KM |
Nearby Listings
| Address | Price | Type | Score | Distance |
|---|---|---|---|---|
| The Hawthorns, Caerleon, NP18 | £ 150,000 | BUY | 8 / 10 | 0.00 KM |
| Hawthorn Gardens, The Hawthorns | £ 150,000 | BUY | 6 / 10 | 0.02 KM |
| The Hawthorns, Newport, NP18 | £ 500,000 | BUY | 7 / 10 | 0.09 KM |
| The Hawthorns, Caerleon, NP18 | £ 375,000 | BUY | 6 / 10 | 0.10 KM |
| The Hawthorns, Caerleon, NP18 | £ 500,000 | BUY | 7 / 10 | 0.10 KM |
Nearby Properties
| Address | Price | Distance |
|---|---|---|
| Glenhaven | £ 300,000 | 0.10 KM |
| Brynderi | £ 411,500 | 0.10 KM |
| Glen Plas | £ 650,000 | 0.10 KM |
| 11 The Hawthorns | £ 388,000 | 0.10 KM |
| 4 The Hawthorns | £ 355,000 | 0.10 KM |