Gatewick Lane, Milton Keynes, MK7
By Griffin Property Co.
£ 475,000
Reviews
3 out of 5 stars
Griffin Property Co. says ..
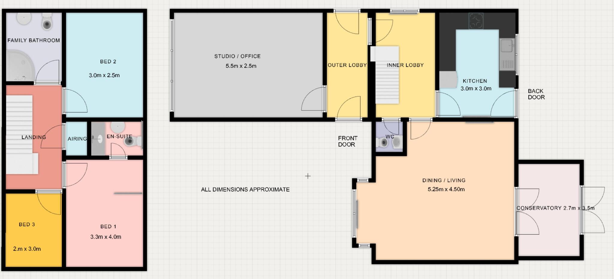
A three bedroom detached house with a studio / Home Office, and off street parking for three cars and an enclosed rear garden with a patio, located in the Caldecotte area of Milton Keynes. Located just around the corner from the wonderful Caldecotte Lake, this brick under tile property has lots of a
Property Oracle says ..
The property is a 3-bedroom, 3-bathroom house with a total area of 888.29 sqft and is listed at £475,000. The property includes a garden. Considering the photos provided, the property appears to be in good condition. The interior is well-maintained and presented, with modern updates to the bathrooms and kitchen. There is no visible evidence of significant repairs or renovations needed. The property benefits from its location in Milton Keynes. Nearby, there are good schools such as Heronsgate School and Heronshaw School, both within a short distance. Transportation links are also convenient, with Bow Brickhill train station just 0.29 km away. The list price of £475,000 is slightly below the average price for the area (£484,186). However, the property’s size (888.29 sqft) is considerably smaller than the average for the area (1,250 sqft). The average price per sqft in the area is £387, while this property’s price per sqft is approximately £535. While the property is presented well, the smaller size and higher price per sqft compared to the local average suggest that the list price may be slightly on the higher side. However, the desirability of the location and the good condition of the property could justify this. More information on comparable properties of similar size in the immediate vicinity would be needed to make a more definitive assessment.
Therefore, we give this property 7 / 10. *Disclaimer: This is our option and does constitute a recommendation or financial advice. Do your own research. *
- Price
- 7
- Condition
- 8
- Location
- 8
- Land
- 7
- Bedrooms
- 3
- Bathrooms
- 3
- Sqft (est)
- 888.29
The heatmap indicates the level of crime in the area. The color of the heatmap indicates the crime severity and recency.
Metrics Year-on-Year
- Average area value
- 749,409.00 £Increased by 52.94 %
- Est sale value
- 681,318.43 £Increased by 72.75 %
- Average area rental value
- 1,371.00 £/moDecreased by 7.80 %
- Est letting value
- 888.29 £/moUnchanged by 0.00 %
- Est rental Yield
- 2.20 %Decreased by 39.56 %
- Crime Rate
- 14.00 %Unchanged by 0.00 %
Agent Activity
Griffin Property Co. created the listing.
Nearby Schools
| Name | Type | Ofsted | Distance |
|---|---|---|---|
| Heronsgate School | Academy Converter | Good | 1.07 KM |
| Heronshaw School | Academy Converter | Outstanding | 1.13 KM |
| Bow Brickhill Cofe Va Primary School | Voluntary Aided School | Good | 1.77 KM |
| Walton High | Academy Converter | Good | 1.87 KM |
| Kents Hill School | Academy Converter | Good | 2.13 KM |
Images
Nearby Streets
| Name | Average Price | Average Sqft | Distance |
|---|---|---|---|
| Rosemary Court | £ 900,000 | 0 | 0.00 KM |
| Celandine Court | £ 775,000 | 0 | 0.00 KM |
| Walton Road | £ 0 | 0 | 0.00 KM |
| Galley Lane | £ 574,579 | 0 | 0.00 KM |
| A4146 | £ 558,495 | 0 | 0.00 KM |
Nearby Transport
| Name | NLC | TLC | Distance |
|---|---|---|---|
| Bow Brickhill | 1381 | BWB | 0.29 KM |
| Fenny Stratford | 1377 | FEN | 2.15 KM |
| Bletchley | 1360 | BLY | 4.46 KM |
| Woburn Sands | 1539 | WOB | 4.99 KM |
| Aspley Guise | 1380 | APG | 7.40 KM |
Nearby Listings
| Address | Price | Type | Score | Distance |
|---|---|---|---|---|
| Gatewick Lane, Milton Keynes, MK7 | £ 475,000 | BUY | 7 / 10 | 0.00 KM |
| Longhedge, Caldecotte, Milton Keynes | £ 375,000 | BUY | 8 / 10 | 0.07 KM |
| Gatewick Lane, Caldecotte, Milton Keynes | £ 485,000 | BUY | 7 / 10 | 0.07 KM |
| Gatewick Lane, Caldecotte, Milton Keynes, Buckinghamshire, MK7 | £ 550,000 | BUY | Unknown | 0.10 KM |
| Longhedge, Caldecotte, Milton Keynes | £ 375,000 | BUY | 7 / 10 | 0.14 KM |
Nearby Properties
| Address | Price | Distance |
|---|---|---|
| 43 Longhedge | £ 250,000 | 0.08 KM |
| 3 Longhedge | £ 284,000 | 0.08 KM |
| 38 Longhedge | £ 135,000 | 0.08 KM |
| 12 Longhedge | £ 361,000 | 0.08 KM |
| 35 Longhedge | £ 108,500 | 0.08 KM |