JA
Grassy Lane, Sevenoaks, Kent, TN13
By Jackson-Stops
£ 1,700,000
Reviews
3 out of 5 stars
Jackson-Stops says ..
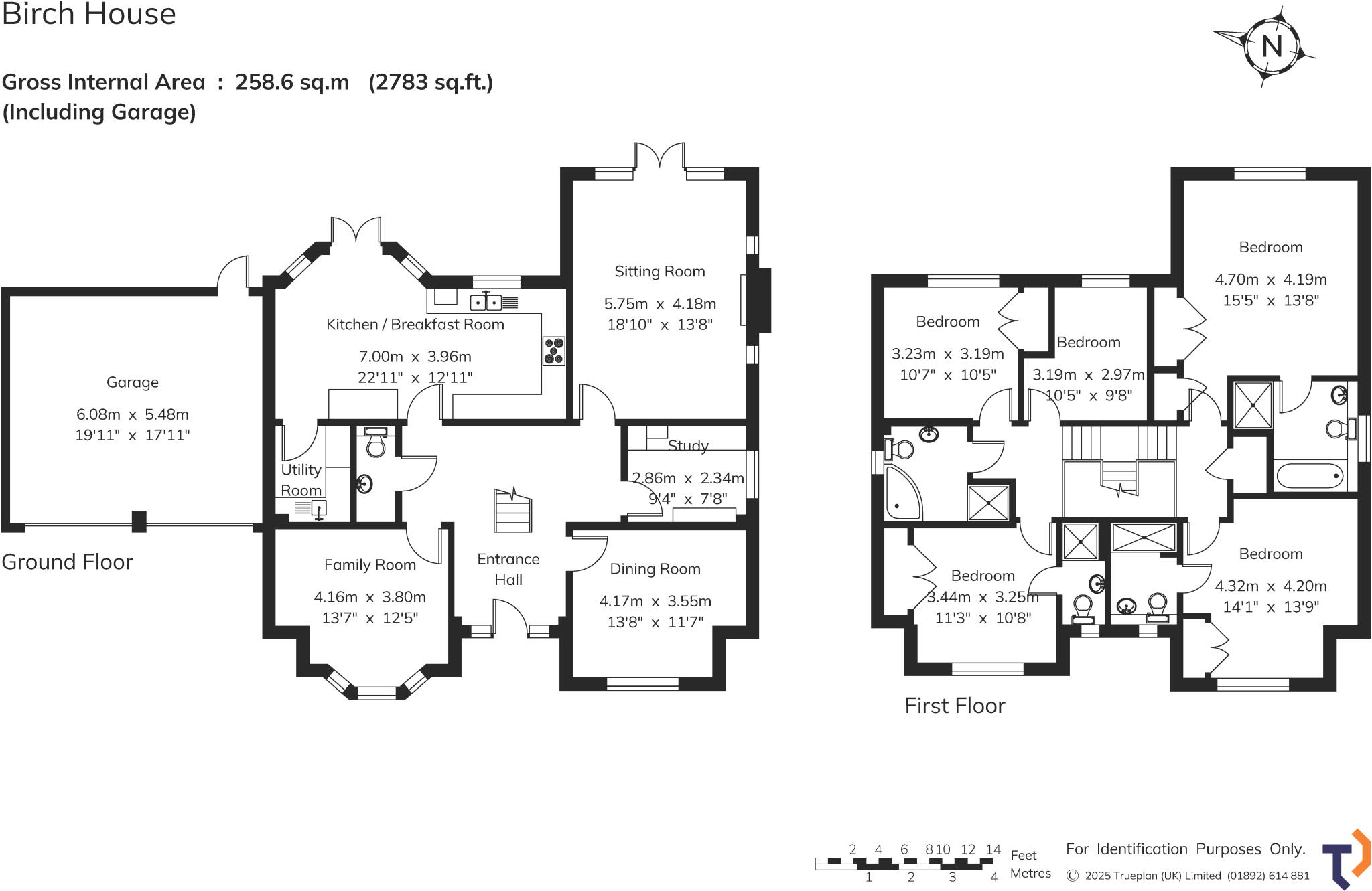
A spacious well-presented executive family house of over 2780 sq ft with a secluded rear garden, situated in a sought-after road within 0.7 miles of Sevenoaks High Street, school and Knole park DESCRIPTION Sp...
Property Oracle says ..
Therefore, we give this property 7 / 10. *Disclaimer: This is our option and does constitute a recommendation or financial advice. Do your own research. *
- Price
- 7
- Condition
- 7
- Location
- 8
- Land
- 8
- Bedrooms
- 5
- Bathrooms
- 4
- Sqft (est)
- 1,897.89
The heatmap indicates the level of crime in the area. The color of the heatmap indicates the crime severity and recency.
Metrics Year-on-Year
- Average area value
- 1,145,000.00 £Increased by 51.85 %
- Est sale value
- 1,514,516.22 £Increased by 52.58 %
- Average area rental value
- 1,717.00 £/moDecreased by 6.07 %
- Est letting value
- 1,897.89 £/moUnchanged by 0.00 %
- Est rental Yield
- 1.80 %Decreased by 38.14 %
- Crime Rate
- 1.00 %Unchanged by 0.00 %
from 754,053.00 £
from 992,596.47 £
from 1,828.00 £/mo
from 1,897.89 £/mo
from 2.91 %
from 1.00 %
Agent Activity
Jackson-Stops created the listing.
Nearby Schools
| Name | Type | Ofsted | Distance |
|---|---|---|---|
| Solefield School | Other Independent School | 0.58 KM | |
| Sevenoaks School | Other Independent School | 0.79 KM | |
| St Thomas' Catholic Primary School, Sevenoaks | Academy Converter | 0.79 KM | |
| West Heath School | Other Independent Special School | Outstanding | 1.00 KM |
| The New Beacon School | Other Independent School | 1.16 KM |
Images
Nearby Streets
| Name | Average Price | Average Sqft | Distance |
|---|---|---|---|
| Wellmeade Drive | £ 0 | 0 | 0.00 KM |
| St Nicholas Drive | £ 2,350,000 | 0 | 0.00 KM |
| SU21 | £ 0 | 0 | 0.00 KM |
| South Park | £ 0 | 0 | 0.00 KM |
| Austen Drive | £ 1,000,000 | 0 | 0.00 KM |
Nearby Transport
| Name | NLC | TLC | Distance |
|---|---|---|---|
| Sevenoaks | 5124 | SEV | 1.61 KM |
| Bat And Ball | 5090 | BBL | 3.00 KM |
| Dunton Green | 5102 | DNG | 4.10 KM |
| Otford | 5071 | OTF | 5.60 KM |
| Hildenborough | 5236 | HLB | 7.03 KM |
Nearby Listings
| Address | Price | Type | Score | Distance |
|---|---|---|---|---|
| Grassy Lane, Sevenoaks, Kent, TN13 | £ 1,700,000 | BUY | 7 / 10 | 0.00 KM |
| Grassy Lane, Sevenoaks, Kent, TN13 | £ 1,575,000 | BUY | Unknown | 0.01 KM |
| Grassy Lane, Sevenoaks, Kent, TN13 | £ 2,675,000 | BUY | 7 / 10 | 0.15 KM |
| Glebe Lane, Sevenoaks, TN13 | £ 1,250,000 | BUY | 7 / 10 | 0.25 KM |
| Oak Lane, Sevenoaks, TN13 | £ 425,000 | BUY | 6 / 10 | 0.34 KM |
Nearby Properties
| Address | Price | Distance |
|---|---|---|
| 19 Grassy Lane | £ 760,000 | 0.03 KM |
| Rosemount | £ 625,000 | 0.03 KM |
| 21a Grassy Lane | £ 840,000 | 0.03 KM |
| Woodlands | £ 1,175,000 | 0.08 KM |
| Borrowdale | £ 1,250,000 | 0.08 KM |