CH
Church Grove, Barnstaple, Devon, EX32
By Chequers
£ 190,000
Reviews
3 out of 5 stars
Chequers says ..
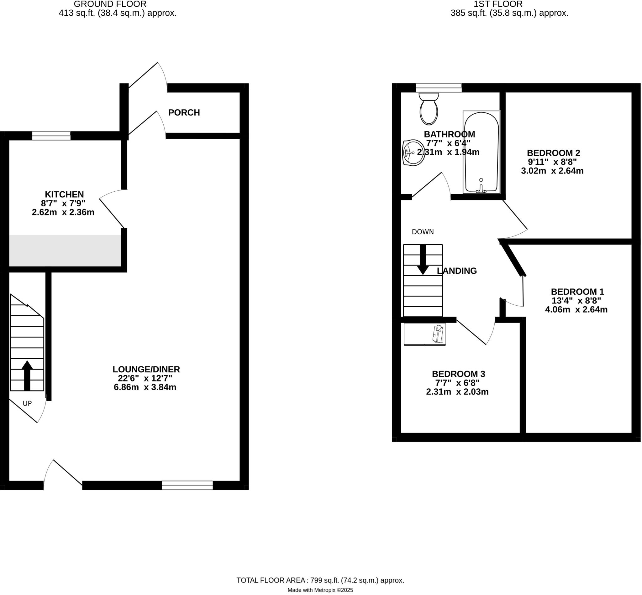
If you are looking for a property in the highly sought after area of Newport, Barnstaple then look no further that this spacious three bedroom terrace property.Close to local amenities and a short walk to the town centre.
Property Oracle says ..
Therefore, we give this property 6 / 10. *Disclaimer: This is our option and does constitute a recommendation or financial advice. Do your own research. *
- Price
- 6
- Condition
- 7
- Location
- 7
- Land
- 5
- Bedrooms
- 3
- Bathrooms
- 1
- Sqft (est)
- 650.03
The heatmap indicates the level of crime in the area. The color of the heatmap indicates the crime severity and recency.
Metrics Year-on-Year
- Average area value
- 311,242.00 £Decreased by 1.54 %
- Est sale value
- 201,509.30 £Increased by 28.10 %
- Average area rental value
- 592.00 £/moIncreased by 6.09 %
- Est letting value
- 0.00 £/mo
- Est rental Yield
- 2.28 %Increased by 7.55 %
- Crime Rate
- 7.00 %Unchanged by 0.00 %
from 316,102.00 £
from 157,307.26 £
from 558.00 £/mo
from 0.00 £/mo
from 2.12 %
from 7.00 %
Agent Activity
Chequers created the listing.
Nearby Schools
| Name | Type | Ofsted | Distance |
|---|---|---|---|
| The Park Community School | Academy Converter | 0.32 KM | |
| Newport Community School Primary Academy | Academy Converter | Outstanding | 0.54 KM |
| The Lampard Community School | Foundation Special School | Good | 0.86 KM |
| Ashleigh Cofe Primary School | Academy Converter | 1.04 KM | |
| Eden Park Academy | Academy Converter | 1.05 KM |
Images
Nearby Streets
| Name | Average Price | Average Sqft | Distance |
|---|---|---|---|
| Eddy's Lane | £ 0 | 0 | 0.00 KM |
| Congram's Close | £ 0 | 0 | 0.00 KM |
| Trafalgar Gardens | £ 265,000 | 0 | 0.00 KM |
| Burlington Close | £ 0 | 0 | 0.00 KM |
| Jingles Place | £ 0 | 0 | 0.00 KM |
Nearby Transport
| Name | NLC | TLC | Distance |
|---|---|---|---|
| Barnstaple | 5725 | BNP | 1.72 KM |
| Chapelton (Devon) | 5820 | CPN | 6.57 KM |
Nearby Listings
| Address | Price | Type | Score | Distance |
|---|---|---|---|---|
| Church Grove, Barnstaple, EX32 | £ 190,000 | BUY | 6 / 10 | 0.00 KM |
| Church Grove, Barnstaple, Devon, EX32 | £ 190,000 | BUY | 6 / 10 | 0.00 KM |
| Church Grove, Barnstaple, Devon, EX32 | £ 195,000 | BUY | 7 / 10 | 0.00 KM |
| Church Grove, Barnstaple, Devon, EX32 | £ 190,000 | BUY | 7 / 10 | 0.04 KM |
| Barnstaple, EX32 | £ 185,000 | BUY | Unknown | 0.05 KM |
Nearby Properties
| Address | Price | Distance |
|---|---|---|
| The Garden Close | £ 190,000 | 0.04 KM |
| Close Court | £ 208,000 | 0.04 KM |
| 5 Prospect Place | £ 250,000 | 0.07 KM |
| 2 Prospect Place | £ 300,000 | 0.07 KM |
| 3 Prospect Place | £ 160,000 | 0.07 KM |