J W Wood says ..
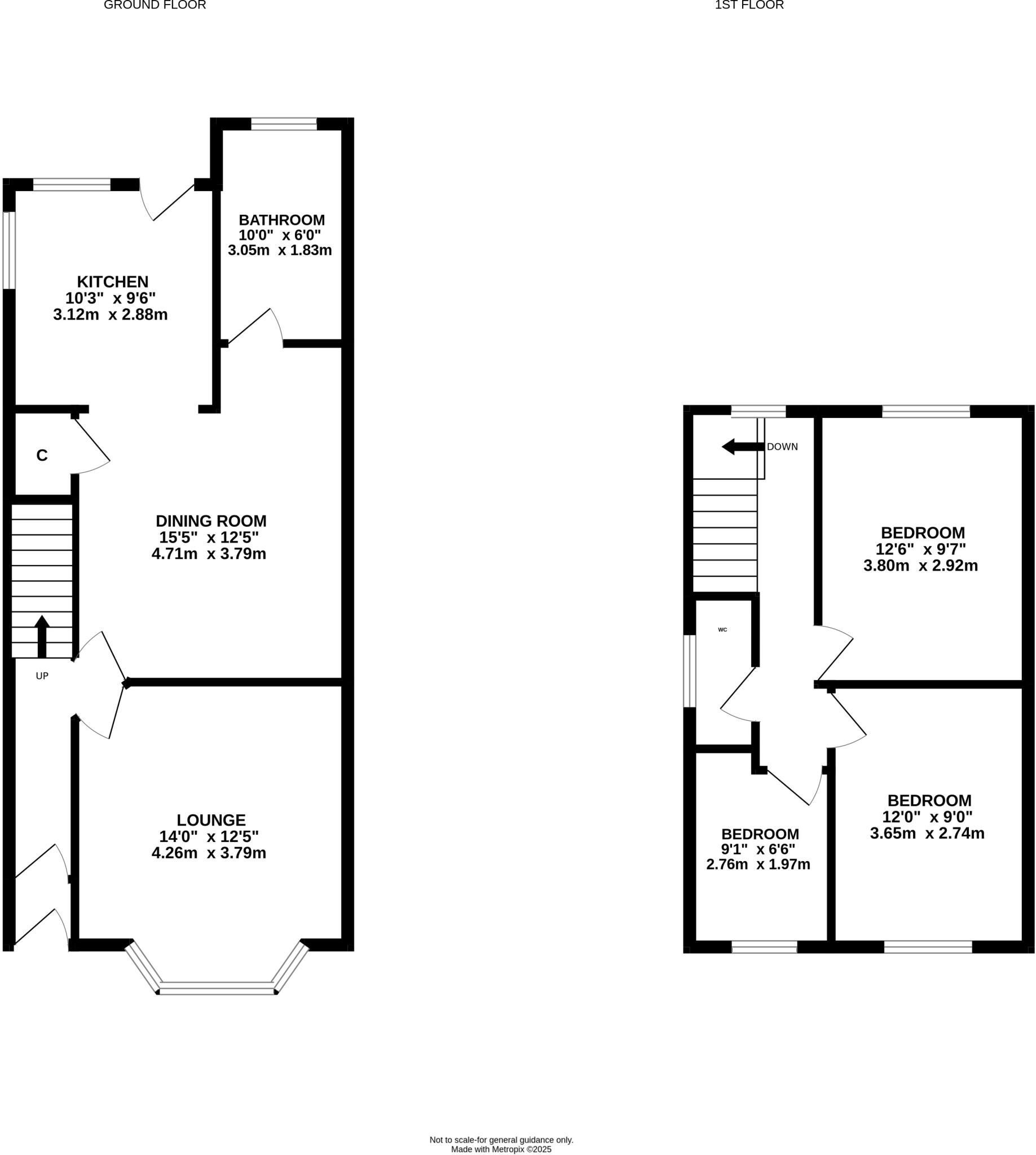
Occupying a very convenient location close to local shops and schools, this is a fabulous, extremely well presented, extended and much improved semi-detached house which has undergone and extensive programme of refurbishment to offer a home of outstanding quality. Completely renovated ...
Property Oracle says ..
This three-bedroom semi-detached house on Alwyn Road, Darlington, is listed at £185,000. The property has recently undergone a full renovation, boasting a modern kitchen and bathroom. The interior is presented in excellent condition with modern flooring and neutral decor. The exterior also appears well-maintained. The property benefits from a garden. However, the plot size is not specified. While the average price per square foot in the area is £271, this property is listed at a lower price per square foot, suggesting it might represent good value for money, especially given its recent renovation. The location is convenient, with nearby schools and transportation links. However, further investigation into the specific quality of local schools and the proximity to amenities would be beneficial.
Therefore, we give this property 7 / 10. *Disclaimer: This is our option and does constitute a recommendation or financial advice. Do your own research. *
- Price
- 8
- Condition
- 9
- Location
- 7
- Land
- 6
- Bedrooms
- 3
- Bathrooms
- 1
- Sqft (est)
- 1,061.07
The heatmap indicates the level of crime in the area. The color of the heatmap indicates the crime severity and recency.
Metrics Year-on-Year
- Average area value
- 343,750.00 £Increased by 10.06 %
- Est sale value
- 306,649.23 £Increased by 14.68 %
- Average area rental value
- 900.00 £/moDecreased by 14.61 %
- Est letting value
- 0.00 £/mo
- Est rental Yield
- 3.14 %Decreased by 22.47 %
- Crime Rate
- 4.00 %Unchanged by 0.00 %
Agent Activity
J W Wood created the listing.
Nearby Schools
| Name | Type | Ofsted | Distance |
|---|---|---|---|
| Harrowgate Hill Primary School | Community School | Requires improvement | 0.41 KM |
| Longfield Academy | Academy Sponsor Led | 0.63 KM | |
| Northwood Primary School | Academy Sponsor Led | Good | 1.23 KM |
| Rise Carr College | Pupil Referral Unit | Good | 1.31 KM |
| St Bede'S Catholic Primary School | Academy Converter | Good | 1.35 KM |
Images
Nearby Streets
| Name | Average Price | Average Sqft | Distance |
|---|---|---|---|
| Melrose Avenue | £ 177,500 | 0 | 0.00 KM |
| Back Bowman Street | £ 0 | 0 | 0.00 KM |
| Bay Tree Road | £ 127,500 | 0 | 0.00 KM |
| Kent Close | £ 0 | 0 | 0.00 KM |
| Lytham Road | £ 0 | 0 | 0.00 KM |
Nearby Transport
| Name | NLC | TLC | Distance |
|---|---|---|---|
| North Road (Darlington) | 7895 | NRD | 1.67 KM |
| Darlington | 7877 | DAR | 3.33 KM |
| Heighington | 7887 | HEI | 6.34 KM |
| Newton Aycliffe | 7834 | NAY | 8.37 KM |
| Dinsdale | 7897 | DND | 9.88 KM |
Nearby Listings
| Address | Price | Type | Score | Distance |
|---|---|---|---|---|
| Alwyn Road, Darlington, DL3 | £ 185,000 | BUY | 7 / 10 | 0.00 KM |
| Alwyn Road, Darlington, Durham, DL3 | £ 170,000 | BUY | 7 / 10 | 0.01 KM |
| Alwyn Road, Darlington, DL3 | £ 175,000 | BUY | 6 / 10 | 0.01 KM |
| Alwyn Road, Darlington, DL3 | £ 200,000 | BUY | 7 / 10 | 0.06 KM |
| Alwyn Road, Darlington | £ 179,950 | BUY | 6 / 10 | 0.08 KM |
Nearby Properties
| Address | Price | Distance |
|---|---|---|
| 8 Alwyn Road | £ 115,000 | 0.01 KM |
| 27 Alwyn Road | £ 139,500 | 0.01 KM |
| 29 Alwyn Road | £ 105,000 | 0.01 KM |
| 11 Alwyn Road | £ 134,000 | 0.01 KM |
| 34 Alwyn Road | £ 155,000 | 0.01 KM |