Bowthorn Road, Cleator Moor, CA25
By Lillingtons Estate Agents
£ 125,000
Reviews
2 out of 5 stars
Lillingtons Estate Agents says ..
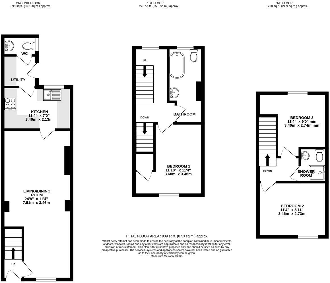
Here is a traditional terraced home that offers a lot more than you expect! Located close to the centre of Cleator Moor the property is offered chain free and includes three bedrooms split over two floors, a first floor roll-top bathroom plus a useful top floor shower room, an open plan living...
Property Oracle says ..
The property is a 3-bedroom terraced house located in Cleator Moor, Cumbria. The list price is £125,000. Considering the average price per sqft in the area is £546 and this property has 939.69 sqft, one might expect a price closer to £513,000. However, the actual list price is significantly lower. The property appears to be in reasonable condition, though some modernisation may be desirable. The bathrooms have recently been updated, but the rest of the property shows signs of age. There is no garden. The location is in Cleator Moor, a town in West Cumbria. While the area has some amenities, it’s a relatively small town and may not appeal to all buyers. The proximity to several primary schools rated ‘Good’ or ‘Outstanding’ by Ofsted could be a positive for families. Train stations are within a reasonable driving distance, but the exact commute times would need to be verified. Given the lower-than-average price, the property might represent good value for money, especially for first-time buyers or investors looking for a renovation project. However, the lack of outdoor space is a drawback. The final assessment depends on the buyer’s priorities and preferences.
Therefore, we give this property 5 / 10. *Disclaimer: This is our option and does constitute a recommendation or financial advice. Do your own research. *
- Price
- 8
- Condition
- 6
- Location
- 5
- Land
- 1
- Bedrooms
- 3
- Bathrooms
- 2
- Sqft (est)
- 939.69
The heatmap indicates the level of crime in the area. The color of the heatmap indicates the crime severity and recency.
Metrics Year-on-Year
- Average area value
- 436,667.00 £Increased by 9.99 %
- Est sale value
- 504,613.53 £Increased by 46.72 %
- Average area rental value
- 1,625.00 £/moIncreased by 11.23 %
- Est letting value
- 939.69 £/moUnchanged by 0.00 %
- Est rental Yield
- 4.47 %Increased by 1.13 %
- Crime Rate
- 13.00 %Unchanged by 0.00 %
Agent Activity
Lillingtons Estate Agents created the listing.
Nearby Schools
| Name | Type | Ofsted | Distance |
|---|---|---|---|
| St Patrick'S Catholic Primary School | Voluntary Aided School | Good | 1.98 KM |
| Moor Row Community Primary School | Community School | Good | 2.08 KM |
| Montreal Cofe Primary School | Voluntary Controlled School | Good | 2.31 KM |
| Cleator Moor Nursery School | Local Authority Nursery School | Outstanding | 2.40 KM |
| The Whitehaven Academy | Academy Sponsor Led | 3.60 KM |
Images
Nearby Streets
| Name | Average Price | Average Sqft | Distance |
|---|---|---|---|
| Eskdale Close | £ 0 | 0 | 0.00 KM |
| Chrysler Grove | £ 0 | 0 | 0.00 KM |
| Dale Close | £ 0 | 0 | 0.00 KM |
| Ember Lane | £ 409,950 | 0 | 0.00 KM |
| The Mill | £ 0 | 0 | 0.00 KM |
Nearby Transport
| Name | NLC | TLC | Distance |
|---|---|---|---|
| Corkickle | 2049 | CKL | 6.29 KM |
| Whitehaven | 2048 | WTH | 7.22 KM |
| Parton | 2032 | PRN | 7.66 KM |
| St Bees | 2002 | SBS | 8.00 KM |
| Nethertown | 2047 | NRT | 8.87 KM |
Nearby Listings
| Address | Price | Type | Score | Distance |
|---|---|---|---|---|
| Bowthorn Road, Cleator Moor, CA25 | £ 125,000 | BUY | 5 / 10 | 0.00 KM |
| Eskdale Close, Cleator Moor, CA25 | £ 150,000 | BUY | 7 / 10 | 0.09 KM |
| Bowthorn Road, Cleator Moor, CA25 | £ 99,000 | BUY | 6 / 10 | 0.10 KM |
| Leconfield Street, Cleator Moor, CA25 | £ 80,000 | BUY | 6 / 10 | 0.11 KM |
| Leconfield Street, Cleator Moor, Cumbria | £ 60,000 | BUY | 5 / 10 | 0.11 KM |
Nearby Properties
| Address | Price | Distance |
|---|---|---|
| 53 Bowthorn Road | £ 53,500 | 0.02 KM |
| 11 Bowthorn Road | £ 59,500 | 0.02 KM |
| 27 Bowthorn Road | £ 90,000 | 0.02 KM |
| 71 Bowthorn Road | £ 81,500 | 0.02 KM |
| 37 Bowthorn Road | £ 90,000 | 0.02 KM |