Thirlmere Drive, St. Albans, Hertfordshire
By Collinson Hall
£ 600,000
Reviews
3 out of 5 stars
Collinson Hall says ..
A superb opportunity to purchase this SPACIOUS THREE BEDROOM semi-detached family home, close to EXCELLENT schooling and LOCAL AMENITIES.
Property Oracle says ..
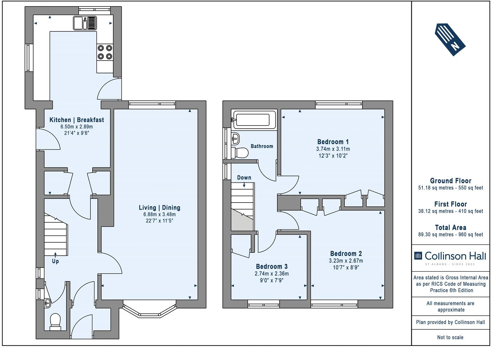
This three-bedroom semi-detached house in St. Albans is located on Thirlmere Drive, within the Cunningham area. The property benefits from being close to several highly-rated primary and secondary schools, with Windermere Primary School being just 0.14km away. Transport links are also convenient, with St Albans City train station approximately 2.31km away. The property itself appears to be in reasonable condition, although some modernisation would likely enhance its value. The kitchen and bathroom, in particular, show their age. The presence of a garden is a positive feature. However, the plot size is not specified, limiting a precise assessment of its land value. Compared to the average price per square foot in the area (£592), the listed price of £600,000 for a 961.22 sqft property seems slightly above average, potentially reflecting the desirable location and the presence of a garden. Nearby comparable properties range in price, with some selling for significantly less, indicating that the asking price might be slightly optimistic.
Therefore, we give this property 6 / 10. *Disclaimer: This is our option and does constitute a recommendation or financial advice. Do your own research. *
- Price
- 6
- Condition
- 6
- Location
- 8
- Land
- 7
- Bedrooms
- 3
- Bathrooms
- 1
- Sqft (est)
- 961.22
The heatmap indicates the level of crime in the area. The color of the heatmap indicates the crime severity and recency.
Metrics Year-on-Year
- Average area value
- 856,250.00 £Increased by 15.74 %
- Est sale value
- 682,466.20 £Increased by 21.37 %
- Average area rental value
- 2,000.00 £/moDecreased by 15.25 %
- Est letting value
- 961.22 £/moUnchanged by 0.00 %
- Est rental Yield
- 2.80 %Decreased by 26.89 %
- Crime Rate
- 7.00 %Unchanged by 0.00 %
Agent Activity
Collinson Hall marked this listing as sold.
Collinson Hall created the listing.
Nearby Schools
| Name | Type | Ofsted | Distance |
|---|---|---|---|
| Windermere Primary School | Community School | Good | 0.14 KM |
| Camp Primary And Nursery School | Community School | Good | 0.46 KM |
| Samuel Ryder Academy | Academy Sponsor Led | Good | 0.54 KM |
| Cunningham Hill Infant School | Community School | Outstanding | 0.74 KM |
| Cunningham Hill Junior School | Community School | Outstanding | 0.74 KM |
Images
Nearby Streets
| Name | Average Price | Average Sqft | Distance |
|---|---|---|---|
| Buttermere Close | £ 0 | 0 | 0.00 KM |
| Swallow Lane | £ 0 | 0 | 0.00 KM |
| Lynton Avenue | £ 850,000 | 0 | 0.00 KM |
| Guildford Road | £ 0 | 0 | 0.00 KM |
| Cranwell Close | £ 0 | 0 | 0.00 KM |
Nearby Transport
| Name | NLC | TLC | Distance |
|---|---|---|---|
| St Albans City | 1548 | SAC | 2.31 KM |
| St Albans Abbey | 1562 | SAA | 3.81 KM |
| Park Street | 1561 | PKT | 4.04 KM |
| How Wood (Hertfordshire) | 1563 | HWW | 4.90 KM |
| Radlett | 1546 | RDT | 6.48 KM |
Nearby Listings
| Address | Price | Type | Score | Distance |
|---|---|---|---|---|
| Thirlmere Drive, St. Albans, Hertfordshire | £ 600,000 | BUY | 6 / 10 | 0.00 KM |
| Drakes Drive, St. Albans | £ 180,000 | BUY | 7 / 10 | 0.12 KM |
| Caravan Site, St. Albans | £ 260,000 | BUY | 7 / 10 | 0.12 KM |
| Catham Close, St. Albans, AL1 5QT | £ 600,000 | BUY | Unknown | 0.14 KM |
| Windermere Avenue, St. Albans | £ 765,000 | BUY | 6 / 10 | 0.15 KM |
Nearby Properties
| Address | Price | Distance |
|---|---|---|
| 54 Thirlmere Drive | £ 285,000 | 0.01 KM |
| 34 Thirlmere Drive | £ 430,000 | 0.01 KM |
| 22 Thirlmere Drive | £ 606,250 | 0.01 KM |
| 24 Thirlmere Drive | £ 269,000 | 0.01 KM |
| 50 Thirlmere Drive | £ 480,000 | 0.01 KM |