Baliol Road, Tankerton, Whitstable
By Kent Estate Agencies
£ 445,000
Reviews
3 out of 5 stars
Kent Estate Agencies says ..
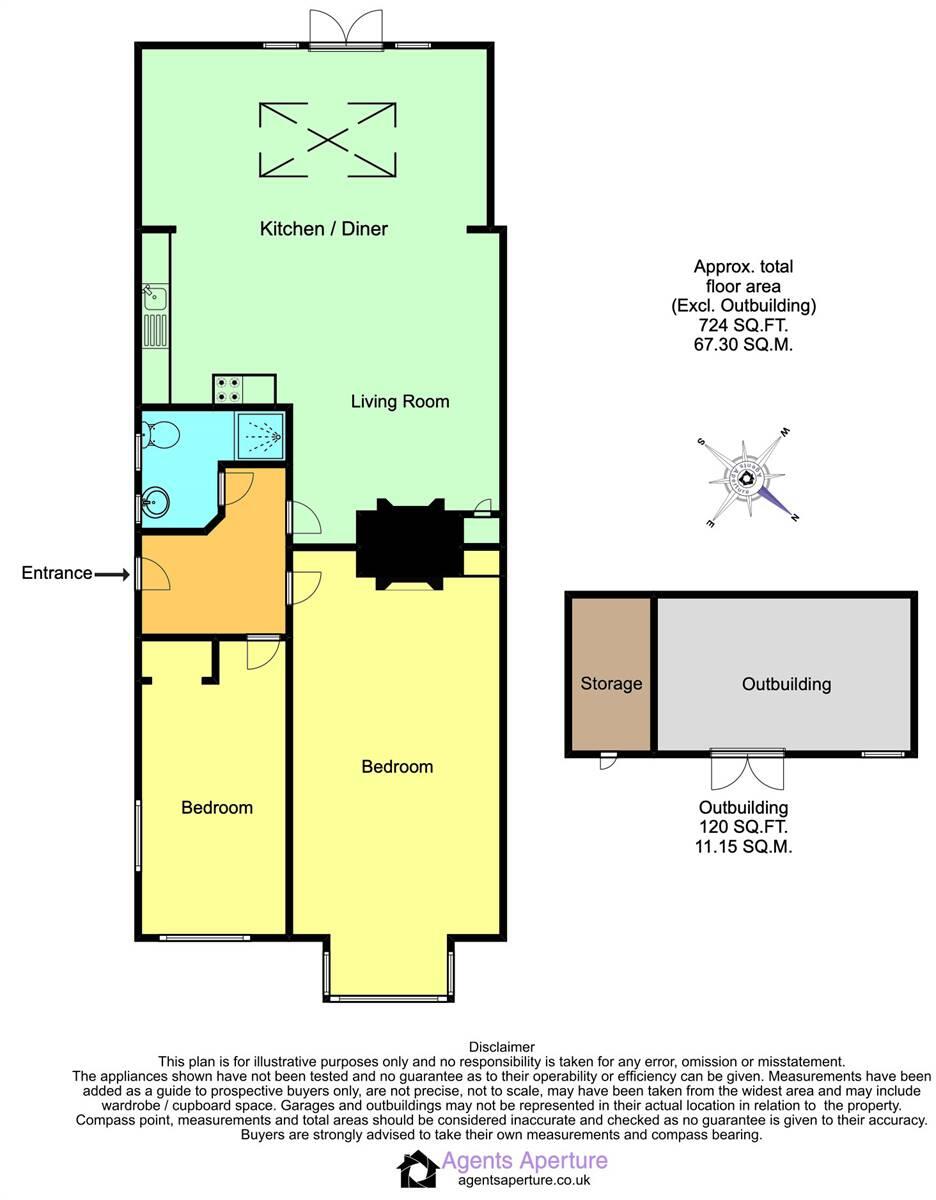
Ideally situated just a short stroll from Tankerton's charming parade of shops, restaurants and cafés, this beautifully presented semi-detached bungalow offers both comfort and convenience. The property boasts a delightful westerly-facing rear garden complete with a log cabin and benefit...
Property Oracle says ..
Therefore, we give this property 6 / 10. *Disclaimer: This is our option and does constitute a recommendation or financial advice. Do your own research. *
- Price
- 4
- Condition
- 7
- Location
- 8
- Land
- 6
- Bedrooms
- 2
- Bathrooms
- 2
- Sqft (est)
- 724.41
The heatmap indicates the level of crime in the area. The color of the heatmap indicates the crime severity and recency.
Metrics Year-on-Year
- Average area value
- 975,000.00 £Increased by 29.96 %
- Est sale value
- 551,276.01 £Increased by 57.56 %
- Average area rental value
- 1,098.00 £/moDecreased by 33.70 %
- Est letting value
- 0.00 £/moDecreased by 100.00 %
- Est rental Yield
- 1.35 %Decreased by 49.06 %
- Crime Rate
- 5.00 %Unchanged by 0.00 %
from 750,202.00 £
from 349,890.03 £
from 1,656.00 £/mo
from 724.41 £/mo
from 2.65 %
from 5.00 %
Agent Activity
Kent Estate Agencies created the listing.
Nearby Schools
| Name | Type | Ofsted | Distance |
|---|---|---|---|
| St Mary'S Catholic Primary School, Whitstable | Academy Converter | Good | 0.26 KM |
| Westmeads Community Infant School | Community School | Outstanding | 0.71 KM |
| The Whitstable School | Academy Converter | 1.10 KM | |
| Whitstable And Seasalter Endowed Church Of England Junior School | Voluntary Aided School | Outstanding | 1.16 KM |
| Isp Polar Re Start Centre | Other Independent Special School | 1.17 KM |
Images
Nearby Streets
| Name | Average Price | Average Sqft | Distance |
|---|---|---|---|
| Tower Road | £ 0 | 0 | 0.00 KM |
| Northwood Road | £ 449,995 | 0 | 0.00 KM |
| Juniper Close | £ 595,000 | 0 | 0.00 KM |
| Linden Avenue | £ 555,000 | 0 | 0.00 KM |
| Old Millfield Works | £ 0 | 0 | 0.00 KM |
Nearby Transport
| Name | NLC | TLC | Distance |
|---|---|---|---|
| Whitstable | 5196 | WHI | 0.48 KM |
| Chestfield And Swalecliffe | 5200 | CSW | 3.42 KM |
| Herne Bay | 5174 | HNB | 9.05 KM |
| Canterbury West | 5007 | CBW | 9.58 KM |
Nearby Listings
| Address | Price | Type | Score | Distance |
|---|---|---|---|---|
| Baliol Road, Tankerton, Whitstable | £ 445,000 | BUY | 6 / 10 | 0.00 KM |
| Baliol Road, Whitstable, Kent | £ 231,500 | BUY | 8 / 10 | 0.03 KM |
| Baliol Road, Whitstable, Kent | £ 400,000 | BUY | 6 / 10 | 0.04 KM |
| Baliol Road, Whitstable, Kent | £ 375,000 | BUY | Unknown | 0.04 KM |
| Baliol Road, Whitstable, CT5 | £ 375,000 | BUY | 7 / 10 | 0.06 KM |
Nearby Properties
| Address | Price | Distance |
|---|---|---|
| 19 Baliol Road | £ 154,950 | 0.03 KM |
| 21 Baliol Road | £ 272,500 | 0.03 KM |
| 17 Baliol Road | £ 315,000 | 0.03 KM |
| 13 Baliol Road | £ 400,000 | 0.03 KM |
| 1 Baliol Road | £ 229,995 | 0.03 KM |