RO
Oakfield Park Road, Wilmington, Kent, DA1
By Robinson Jackson
£ 375,000
Reviews
3 out of 5 stars
Robinson Jackson says ..
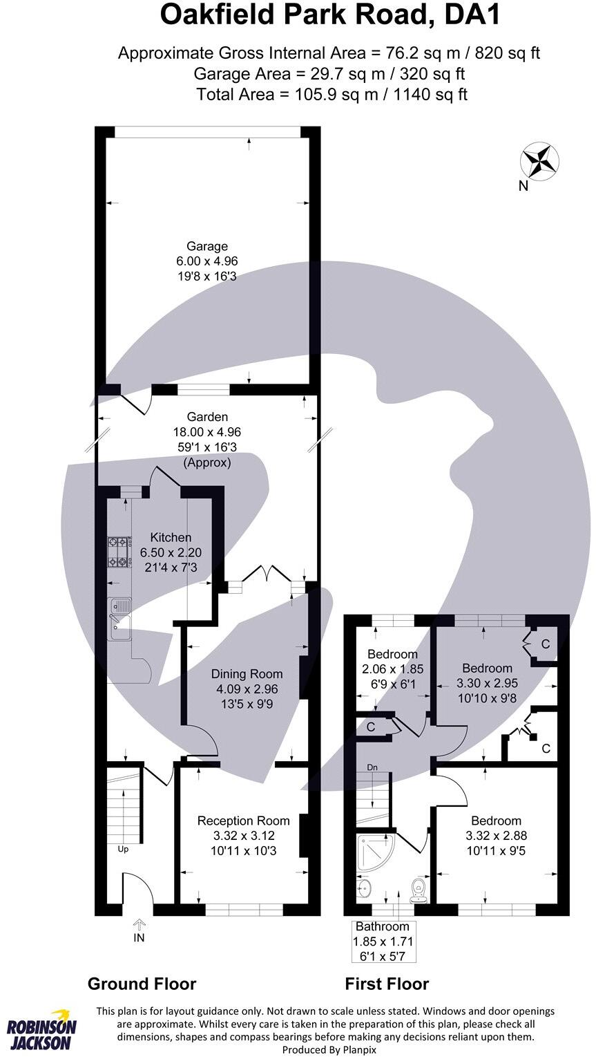
Guide Price £375,000-£400,000 Robinson Jackson are proud to present this fantastic opportunity to purchase a three-bedroom mid-terraced home, ideally located on the ever-popular Oakfield Park Road in the heart of Wilmington. Benefiting from a detached garage to the rear and...
Property Oracle says ..
Therefore, we give this property 7 / 10. *Disclaimer: This is our option and does constitute a recommendation or financial advice. Do your own research. *
- Price
- 9
- Condition
- 6
- Location
- 7
- Land
- 7
- Bedrooms
- 3
- Bathrooms
- 1
- Sqft (est)
- 1,139.90
The heatmap indicates the level of crime in the area. The color of the heatmap indicates the crime severity and recency.
Metrics Year-on-Year
- Average area value
- 457,741.00 £Decreased by 8.07 %
- Est sale value
- 516,374.70 £Increased by 27.25 %
- Average area rental value
- 1,925.00 £/moIncreased by 39.09 %
- Est letting value
- 1,139.90 £/mo
- Est rental Yield
- 5.05 %Increased by 51.20 %
- Crime Rate
- 2.00 %Unchanged by 0.00 %
from 497,913.00 £
from 405,804.40 £
from 1,384.00 £/mo
from 0.00 £/mo
from 3.34 %
from 2.00 %
Agent Activity
Robinson Jackson created the listing.
Nearby Schools
| Name | Type | Ofsted | Distance |
|---|---|---|---|
| Oakfield Children'S Centre | Children's Centre | 0.11 KM | |
| Oakfield Primary Academy | Academy Converter | Good | 0.11 KM |
| North Kent College | Further Education | Good | 1.10 KM |
| Westgate Primary School | Academy Sponsor Led | Good | 1.14 KM |
| Dartford Science & Technology College | Foundation School | Good | 1.39 KM |
Images
Nearby Streets
| Name | Average Price | Average Sqft | Distance |
|---|---|---|---|
| Trafalgar Road | £ 0 | 0 | 0.00 KM |
| Princes Road | £ 0 | 0 | 0.00 KM |
| Heath Street | £ 0 | 0 | 0.00 KM |
| Highfield Road | £ 0 | 0 | 0.00 KM |
| Gordon Road | £ 300,000 | 0 | 0.00 KM |
Nearby Transport
| Name | NLC | TLC | Distance |
|---|---|---|---|
| Dartford | 5101 | DFD | 1.79 KM |
| Crayford | 5100 | CRY | 4.05 KM |
| Farningham Road | 5105 | FNR | 4.33 KM |
| Slade Green | 5154 | SGR | 4.56 KM |
| Purfleet | 7453 | PFL | 6.01 KM |
Nearby Listings
| Address | Price | Type | Score | Distance |
|---|---|---|---|---|
| Oakfield Park Road, Wilmington, Kent, DA1 | £ 375,000 | BUY | 7 / 10 | 0.00 KM |
| Oakfield Park Road, Wilmington, Dartford, Kent, DA1 | £ 600,000 | BUY | 5 / 10 | 0.03 KM |
| Oakfield Park Road, Dartford, Kent | £ 314,000 | BUY | Unknown | 0.03 KM |
| Oakfield Park Road, Dartford, Kent | £ 475,000 | BUY | 5 / 10 | 0.03 KM |
| Oakfield Park Road, Wilmington, Kent, DA1 | £ 375,000 | BUY | 5 / 10 | 0.04 KM |
Nearby Properties
| Address | Price | Distance |
|---|---|---|
| 5 Oakfield Park Road | £ 375,000 | 0.03 KM |
| 67 Oakfield Park Road | £ 270,000 | 0.03 KM |
| 69 Oakfield Park Road | £ 320,000 | 0.03 KM |
| 49 Oakfield Park Road | £ 420,000 | 0.03 KM |
| 39 Oakfield Park Road | £ 365,000 | 0.03 KM |