Burnside Avenue, Fleetwood, FY7
By The Square Room
£ 220,000
Reviews
3 out of 5 stars
The Square Room says ..
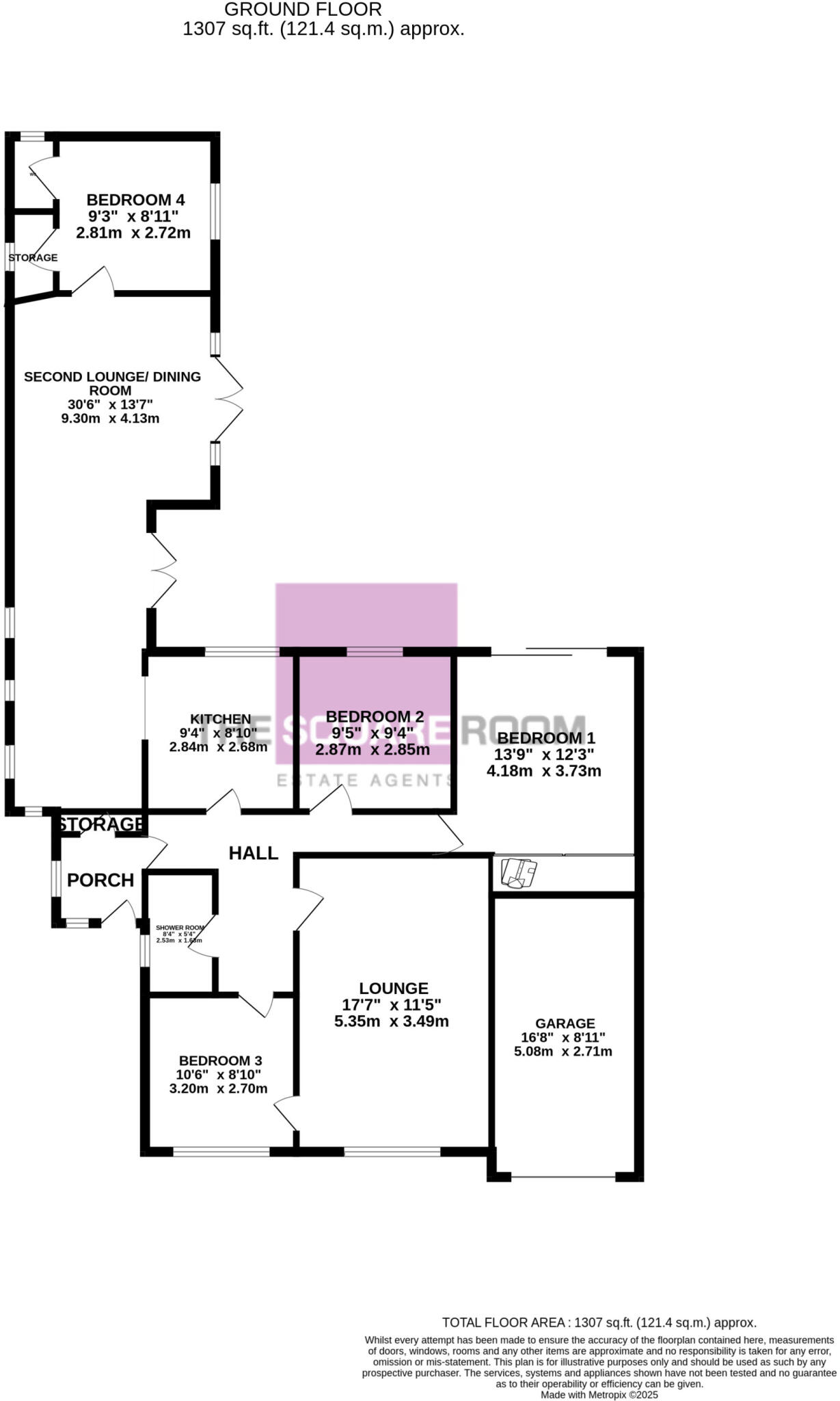
** NO CHAIN ** EXTENDED SEMI DETACHED TRUE BUNGALOW - IDEALLY LOCATED FOR THE SEA FRONT, TRANSPORT LINKS & AMENITIES - FOUR GENEROUS BEDROOMS - SPACIOUS LOUNGE/ DINING ROOM - BATHROOM - COMBI BOILER - GARAGE - DRIVEWAY PARKING FOR FOUR VEHICLES - PRIVATE REAR GARDEN -
Property Oracle says ..
This property is a 4-bedroom bungalow located in Fleetwood, Lancashire. The property benefits from a good-sized garden and is within reasonable distance of local schools and transport links. The interior of the property appears dated and would likely benefit from some modernisation. The asking price is below the average price for the area, however, given the condition and the lack of information about the square footage, it is difficult to definitively assess the value for money.
Therefore, we give this property 7 / 10. *Disclaimer: This is our option and does constitute a recommendation or financial advice. Do your own research. *
- Price
- 7
- Condition
- 6
- Location
- 7
- Land
- 8
- Bedrooms
- 4
- Bathrooms
- 1
- Lot (est)
- 1,307.00
The heatmap indicates the level of crime in the area. The color of the heatmap indicates the crime severity and recency.
Metrics Year-on-Year
- Average area value
- 506,126.00 £Decreased by 9.26 %
- Average area rental value
- 1,463.00 £/moDecreased by 1.55 %
- Est rental Yield
- 3.47 %Increased by 8.44 %
- Crime Rate
- 4.00 %Unchanged by 0.00 %
Agent Activity
The Square Room created the listing.
Nearby Schools
| Name | Type | Ofsted | Distance |
|---|---|---|---|
| West View Children'S Centre | Children's Centre | 0.54 KM | |
| Charles Saer Community Primary School | Community School | Good | 0.71 KM |
| Larkholme Primary School | Community School | Good | 1.16 KM |
| Fleetwood High School | Foundation School | Requires improvement | 1.25 KM |
| Cardinal Allen Catholic High School, Fleetwood | Voluntary Aided School | Good | 1.39 KM |
Images
Nearby Streets
| Name | Average Price | Average Sqft | Distance |
|---|---|---|---|
| Burnside Avenue | £ 0 | 0 | 0.00 KM |
| Greendale Close | £ 0 | 0 | 0.00 KM |
| Princes Way | £ 285,000 | 0 | 0.00 KM |
| Tarn Court | £ 225,000 | 0 | 0.00 KM |
| Birkbeck Place | £ 0 | 0 | 0.00 KM |
Nearby Transport
| Name | NLC | TLC | Distance |
|---|---|---|---|
| Layton (Lancs) | 2669 | LAY | 8.61 KM |
| Poulton-Le-Fylde | 2671 | PFY | 9.30 KM |
| Blackpool North | 2739 | BPN | 9.91 KM |
Nearby Listings
| Address | Price | Type | Score | Distance |
|---|---|---|---|---|
| Burnside Avenue, Fleetwood, FY7 | £ 220,000 | BUY | 7 / 10 | 0.00 KM |
| BUTTERMERE AVENUE - FLEETWOOD - FY7 8QG | £ 185,000 | BUY | 7 / 10 | 0.10 KM |
| Buttermere Avenue, Fleetwood, FY7 | £ 200,000 | BUY | 7 / 10 | 0.10 KM |
| BUTTERMERE AVENUE - FLEETWOOD - FY7 8QG | £ 180,000 | BUY | 7 / 10 | 0.10 KM |
| Buttermere Avenue, Fleetwood, FY7 | £ 185,000 | BUY | 6 / 10 | 0.10 KM |
Nearby Properties
| Address | Price | Distance |
|---|---|---|
| 7 Burnside Avenue | £ 129,000 | 0.03 KM |
| 14 Burnside Avenue | £ 59,250 | 0.03 KM |
| 2 Burnside Avenue | £ 153,000 | 0.03 KM |
| 22 Burnside Avenue | £ 150,000 | 0.03 KM |
| 11 Burnside Avenue | £ 87,000 | 0.03 KM |