CH
Burford, Tenbury Wells, Worcestershire, WR15
By Chancellors
£ 240,000
Reviews
3 out of 5 stars
Chancellors says ..
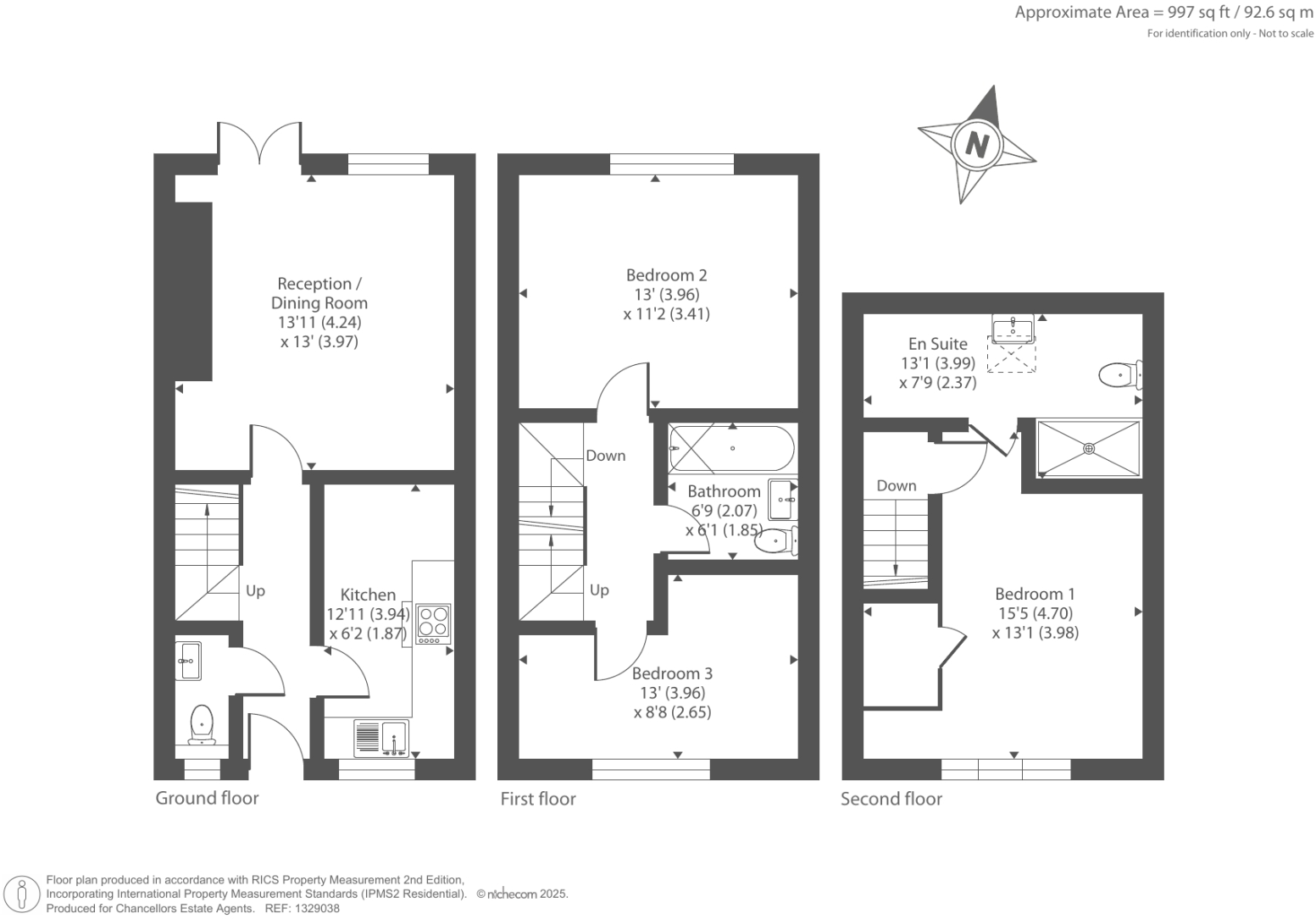
Located within Tenbury Wells is this well presented three bedroom mid-terrace property set across three floors offering private driveway parking for multiple vehicles and a private rear garden.
Property Oracle says ..
Therefore, we give this property 7 / 10. *Disclaimer: This is our option and does constitute a recommendation or financial advice. Do your own research. *
- Price
- 8
- Condition
- 8
- Location
- 7
- Land
- 7
- Bedrooms
- 3
- Bathrooms
- 2
- Sqft (est)
- 1,201.58
The heatmap indicates the level of crime in the area. The color of the heatmap indicates the crime severity and recency.
Metrics Year-on-Year
- Average area value
- 243,278.00 £Decreased by 3.15 %
- Est sale value
- 376,094.54 £Increased by 28.81 %
- Average area rental value
- 1,186.00 £/moIncreased by 12.42 %
- Est letting value
- 1,201.58 £/moUnchanged by 0.00 %
- Est rental Yield
- 5.85 %Increased by 16.07 %
- Crime Rate
- 8.00 %Unchanged by 0.00 %
from 251,196.00 £
from 291,983.94 £
from 1,055.00 £/mo
from 1,201.58 £/mo
from 5.04 %
from 8.00 %
Agent Activity
Chancellors created the listing.
Nearby Schools
| Name | Type | Ofsted | Distance |
|---|---|---|---|
| Burford Cofe Primary School | Academy Converter | Requires improvement | 0.68 KM |
| Tenbury Cofe Primary School | Academy Converter | Good | 0.95 KM |
| Tenbury High Ormiston Academy | Academy Sponsor Led | Good | 1.29 KM |
| Clee Hill Community Academy | Academy Converter | Good | 6.37 KM |
Images
Nearby Streets
| Name | Average Price | Average Sqft | Distance |
|---|---|---|---|
| Riverside | £ 500,000 | 0 | 0.00 KM |
| Swan Court | £ 0 | 0 | 0.00 KM |
| Malt House Mews | £ 0 | 0 | 0.00 KM |
| Old School Lane | £ 277,000 | 0 | 0.00 KM |
| Market Street | £ 0 | 0 | 0.00 KM |
Nearby Listings
| Address | Price | Type | Score | Distance |
|---|---|---|---|---|
| Burford, Tenbury Wells, Worcestershire, WR15 | £ 240,000 | BUY | 7 / 10 | 0.00 KM |
| Old Bowling Green Close, Tenbury Wells, Worcestershire | £ 225,000 | BUY | Unknown | 0.01 KM |
| Old Bowling Green Close, Burford, Tenbury Wells | £ 300,000 | BUY | 7 / 10 | 0.02 KM |
| Castlemead Burford, Tenbury Wells, WR15 | £ 375,000 | BUY | Unknown | 0.18 KM |
| Burford, Tenbury Wells, WR15 8AH | £ 425,000 | BUY | 6 / 10 | 0.32 KM |
Nearby Properties
| Address | Price | Distance |
|---|---|---|
| 6 Old Bowling Green Close | £ 155,500 | 0.01 KM |
| 5 Old Bowling Green Close | £ 136,000 | 0.01 KM |
| 10 Old Bowling Green Close | £ 210,000 | 0.01 KM |
| 8 Old Bowling Green Close | £ 163,500 | 0.01 KM |
| 15 Old Bowling Green Close | £ 167,500 | 0.01 KM |