Hemyock, Cullompton
SO

Hemyock, Cullompton

By Southgate Estates

£ 1,175,000

Reviews

3 out of 5 stars

Southgate Estates says ..

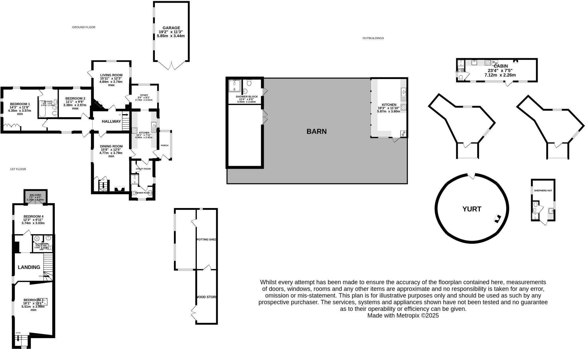
An exceptional opportunity to obtain a smallholding of around 21 acres, currently run as a successful Christian outdoor education centre, with a charming four bedroom period cottage. Ideally located just outside of the sought-after village of Hemyock in the Blackdown Hills, this property enjoys a...

Property Oracle says ..

This detached property in Hemyock, Cullompton, offers a blend of rural charm and modern living. The house features four bedrooms and two bathrooms, with a total square footage of 1,973.46. The property benefits from a large plot of land, including a barn, shepherd’s huts and a yurt, offering diverse opportunities for outdoor activities and potential income generation. The interior combines traditional elements with modern updates, creating a comfortable living space. While the location provides a peaceful countryside setting, it remains within a reasonable distance of local schools and amenities. However, the price per square foot is notably higher than the area average, which may be a point of consideration for potential buyers.

Therefore, we give this property 7 / 10. *Disclaimer: This is our option and does constitute a recommendation or financial advice. Do your own research. *

Price
6
Condition
7
Location
7
Land
9
Bedrooms
4
Bathrooms
2
Sqft (est)
1,973.46

The heatmap indicates the level of crime in the area. The color of the heatmap indicates the crime severity and recency.

Metrics Year-on-Year

Average area value
285,000.00 £
Decreased by 22.84 %
from 369,362.00 £
Est sale value
586,117.62 £
Decreased by 4.81 %
from 615,719.52 £
Average area rental value
1,300.00 £/mo
Decreased by 22.39 %
from 1,675.00 £/mo
Est letting value
1,973.46 £/mo
Unchanged by 0.00 %
from 1,973.46 £/mo
Est rental Yield
5.47 %
Increased by 0.55 %
from 5.44 %
Crime Rate
0.00 %
from 0.00 %

Agent Activity

  • Southgate Estates created the listing.

Nearby Schools

NameTypeOfstedDistance
Hemyock Primary SchoolAcademy ConverterGood3.65 KM
Churchstanton Primary SchoolCommunity SchoolGood7.93 KM
Culmstock Primary SchoolCommunity SchoolGood8.17 KM
Awliscombe Church Of England Primary SchoolVoluntary Aided SchoolGood8.69 KM
Broadhembury Church Of England Primary SchoolVoluntary Controlled SchoolGood8.87 KM

Images

Sevilles Croft Front Dining Room Feature Window Outbuildings Land Cabin Land Land Veranda Living Room Cabin Land Bedroom 4 Bedroom 3 Bedroom 1 Fireplace Kitchen Outlook Dining Room Veranda Land Land Land Land Land Cabin Shepherd Hut Yurt Garden Land Front

Nearby Streets

NameAverage PriceAverage SqftDistance
Park Lane £ 635,00000.00 KM
Park Close £ 675,00000.00 KM

Nearby Listings

AddressPriceTypeScoreDistance
Hemyock, Cullompton £ 1,175,000BUY7 / 100.00 KM
Hemyock, Cullompton, Devon £ 1,500,000BUYUnknown0.49 KM
Hemyock, Cullompton £ 525,000BUY5 / 100.69 KM
Dunkeswell Abbey, Honiton £ 225,000BUYUnknown1.12 KM
Dunkeswell, Honiton £ 750,000BUYUnknown1.78 KM

Nearby Properties

AddressPriceDistance
1 Park Close £ 178,0001.12 KM