12 Hectorage Road, Tonbridge, Kent TN9 2DP
SA

12 Hectorage Road, Tonbridge, Kent TN9 2DP

By Savills

£ 315,000

Reviews

2 out of 5 stars

Savills says ..

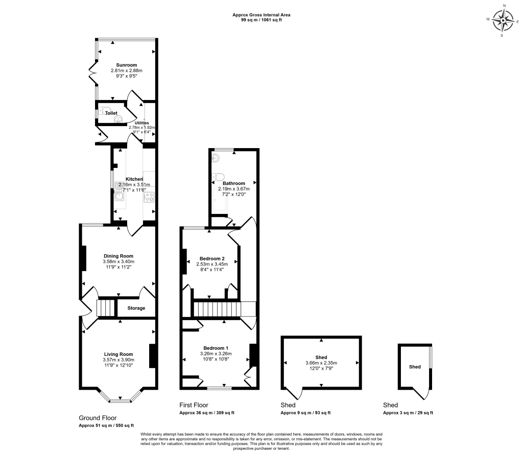
Auction Sale - 30/07/2025 - To book viewings, view the legal pack and register to bid please refer to the full sales particulars on the Savills Auctions website A freehold two store semi-detached house, close to the town centre. In need of modernisation. Vacant

Property Oracle says ..

This semi-detached property is located in Tonbridge, Kent, and is listed with Savills. The property is situated in close proximity to several schools, including Royal Rise Primary School and Hillview School For Girls. Tonbridge railway station is also nearby, providing convenient access to transportation. The listing price is £315,000. The average price in the area is £456,000. Based on the images, the property appears to be in need of renovation. The interior shows signs of wear and tear, including dated wallpaper and fixtures. The property has a garden, but it appears overgrown and in need of maintenance. Given the condition of the property and the need for renovation, the price may represent a good opportunity for buyers looking to add value. However, prospective buyers should factor in the cost of renovations when considering the overall investment.

Therefore, we give this property 5 / 10. *Disclaimer: This is our option and does constitute a recommendation or financial advice. Do your own research. *

Price
7
Condition
4
Location
7
Land
5
Bedrooms
2
Bathrooms
0

The heatmap indicates the level of crime in the area. The color of the heatmap indicates the crime severity and recency.

Metrics Year-on-Year

Average area value
456,000.00 £
Increased by 25.16 %
from 364,328.00 £
Average area rental value
1,667.00 £/mo
Increased by 20.45 %
from 1,384.00 £/mo
Est rental Yield
4.39 %
Decreased by 3.73 %
from 4.56 %
Crime Rate
6.00 %
Unchanged by 0.00 %
from 6.00 %

Agent Activity

  • Savills created the listing.

Nearby Schools

NameTypeOfstedDistance
Royal Rise Primary SchoolAcademy Sponsor LedGood0.08 KM
Hillview School For GirlsAcademy ConverterGood0.35 KM
Weald Of Kent Grammar SchoolAcademy Converter0.59 KM
Tonbridge Grammar SchoolAcademy ConverterOutstanding0.87 KM
South Tonbridge Children'S CentreChildren's Centre1.15 KM

Images

12 Hectorage Road, Tonbridge, Kent TN9 2DP 12 Hectorage Road, Tonbridge, Kent TN9 2DP 12 Hectorage Road, Tonbridge, Kent TN9 2DP 12 Hectorage Road, Tonbridge, Kent TN9 2DP 12 Hectorage Road, Tonbridge, Kent TN9 2DP 12 Hectorage Road, Tonbridge, Kent TN9 2DP 12 Hectorage Road, Tonbridge, Kent TN9 2DP 12 Hectorage Road, Tonbridge, Kent TN9 2DP 12 Hectorage Road, Tonbridge, Kent TN9 2DP 12 Hectorage Road, Tonbridge, Kent TN9 2DP 12 Hectorage Road, Tonbridge, Kent TN9 2DP 12 Hectorage Road, Tonbridge, Kent TN9 2DP 12 Hectorage Road, Tonbridge, Kent TN9 2DP 12 Hectorage Road, Tonbridge, Kent TN9 2DP 12 Hectorage Road, Tonbridge, Kent TN9 2DP 12 Hectorage Road, Tonbridge, Kent TN9 2DP 12 Hectorage Road, Tonbridge, Kent TN9 2DP 12 Hectorage Road, Tonbridge, Kent TN9 2DP 12 Hectorage Road, Tonbridge, Kent TN9 2DP 12 Hectorage Road, Tonbridge, Kent TN9 2DP

Nearby Streets

NameAverage PriceAverage SqftDistance
Pembury Road £ 995,00000.00 KM
Morley Road £ 300,00000.00 KM
Tannery Road £ 000.00 KM
Lyons Crescent £ 330,35700.00 KM
High Street £ 260,50000.00 KM

Nearby Transport

NameNLCTLCDistance
Tonbridge5229TON1.11 KM
High Brooms5235HIB4.45 KM
Hildenborough5236HLB6.51 KM
Tunbridge Wells5230TBW6.87 KM
Leigh (Kent)5294LIH7.79 KM

Nearby Listings

AddressPriceTypeScoreDistance
12 Hectorage Road, Tonbridge, Kent TN9 2DP £ 315,000BUY5 / 100.00 KM
Hectorage Road, Tonbridge, Kent £ 375,000BUY7 / 100.00 KM
Hectorage Road, Tonbridge £ 475,000BUY6 / 100.06 KM
Hectorage Road, Tonbridge, TN9 £ 450,000BUY7 / 100.08 KM
Royal Rise, Tonbridge, TN9 2DQ £ 475,000BUY7 / 100.09 KM

Nearby Properties

AddressPriceDistance
72b Hectorage Road £ 200,0000.00 KM
48 Hectorage Road £ 175,0000.00 KM
38 Hectorage Road £ 200,0000.00 KM
46 Hectorage Road £ 270,0000.00 KM
62 Hectorage Road £ 275,5000.00 KM